2 Bedrooms, Offers over £110,000
79 Hamilton Street, Barnhill, Dundee DD5 2NQ
211
Features & Description
Property Description
Situated within the highly desirable picturesque area of Barnhill, this well appointed, south facing first floor apartment forms part of a block of only 4 properties. The property is conveniently located for local shopping facilities and public transport giving direct access to the centre of Broughty Ferry which offers a wide range of restaurants, coffee shops and train station.
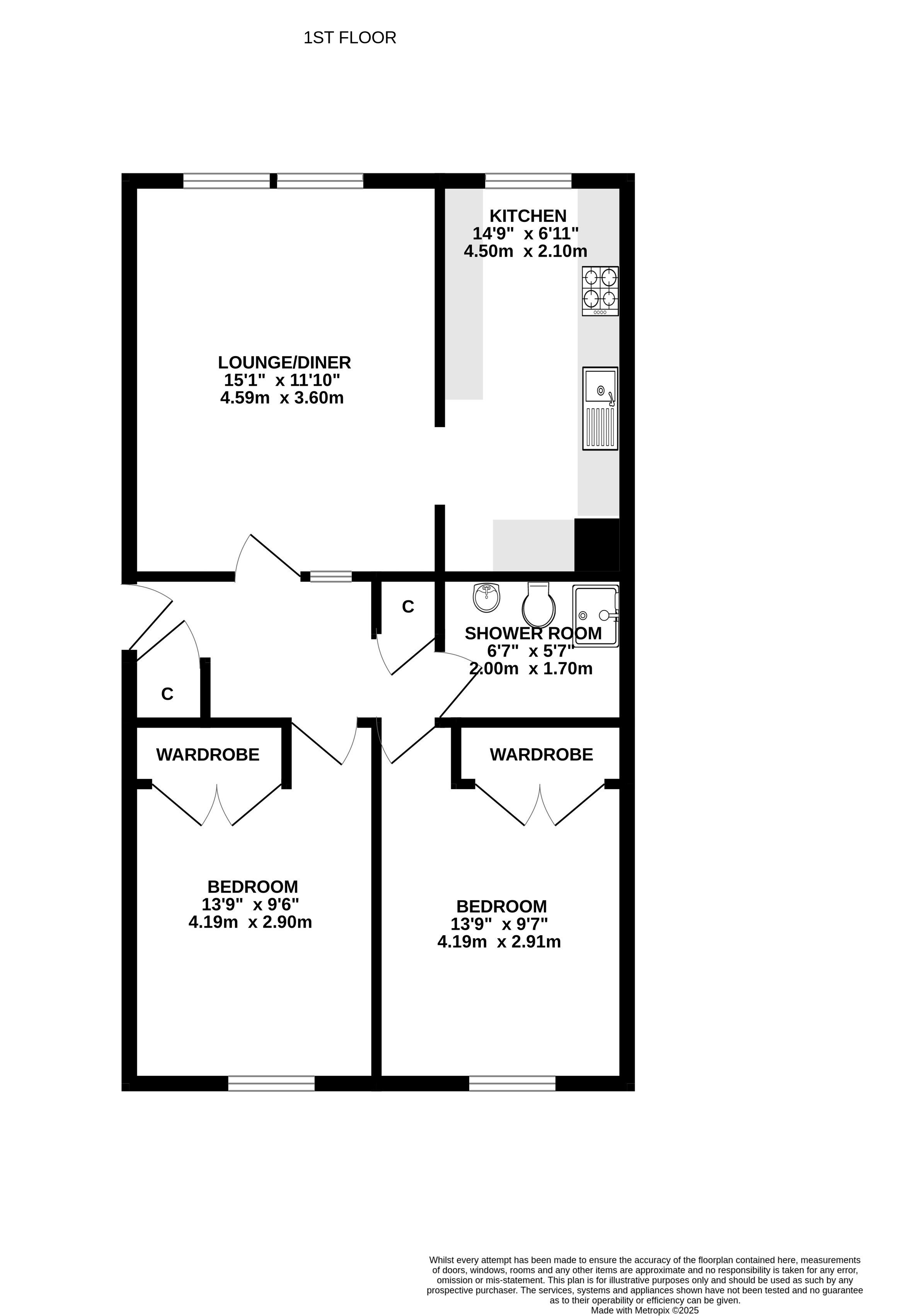
The property, which benefits from double glazing and gas central heating, comprises hall with most accommodation leading off, two storage cupboards, hatch giving access to attic space, bright south facing lounge with ample space for occasional furniture, door leading to kitchen which is fitted with both wall mounted and base units, south facing window, oven, hob, and extractor, two well appointed double bedrooms and shower room.
Externally there is a communal drying area on the first floor landing and private storage area on the ground floor.
Viewing is highly recommended.
Read moreKey Features
Spacious 1st Floor Apartment
Popular Residential Area
Convenient For Local Amenities
Hall, South Facing Lounge
Fitted Kitchen, 2 Double Bedrooms
Shower room
Double Glazing & Gas CH
Communal Drying Area
Viewing highly recommended
- Council Tax: Band B
- Freehold













