Offers Over £145,000
Plot 6, Stannochy Farm, Brechin, Angus DD9 6SQ
Features & Description
Property Description
Exceptional Opportunity – Serviced Building Plots with Planning Permission in Brechin
We are delighted to offer seven individual serviced building plots, each with full planning permission for a single detached dwelling, beautifully located on the outskirts of the historic Cathedral city of Brechin.
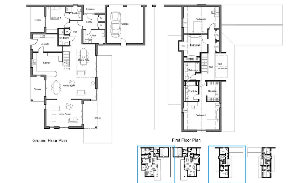
Each plot features full planning permission for a unique, architect-designed home, thoughtfully integrated into the natural rural landscape. Three of the plots incorporate elements of the existing farm steading, blending character with contemporary living. All designs have been carefully considered to create spacious, high-quality family homes.
Individual house designs tailored to each plot
Full planning permission granted
Serviced plots ready for development
Stunning countryside views
Convenient access to Brechin and surrounding areas
Detailed architectural drawings are available for each home, showcasing the exceptional quality, finish, and attention to detail.
Plot 5 RESERVED
Read moreKey Features
Detailed architectural drawings showcase the quality, finish, and craftsmanship of each home
Bespoke House Designs
Serviced Plots Ready for immediate Development
Full Planning Approval
Excellent access to Brechin & Surrounding Areas
980 m² / 0.0980 hectares








