4 Bedrooms, Offers over £425,000
8 Rodger Street, Cellardyke, Anstruther KY10 3HU
421
Features & Description
Property Description
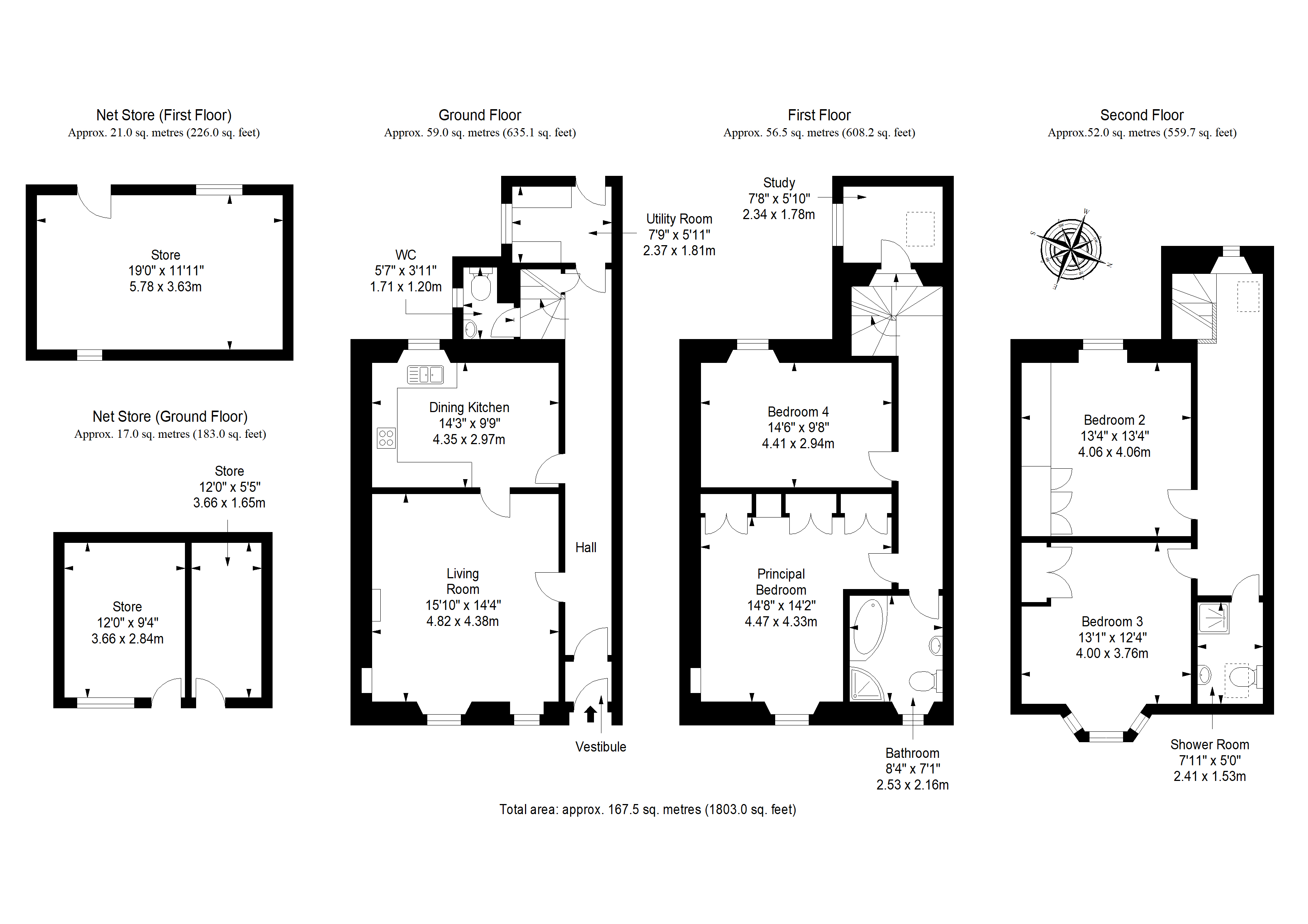
Welcome to a charming terraced townhouse in the sought-after coastal village of Cellardyke, offering four double bedrooms and stylish modern interiors throughout. The accommodation comprises a spacious living room featuring a focal fireplace and press shelving, alongside an attractive dining kitchen ideal for family living and entertaining. Further versatility is provided by a study area, while the bedrooms comprise a main bedroom with built-in wardrobes, and three additional double bedrooms. Completing the home is a four-piece bathroom with vanity storage, plus a shower room, a WC and a utility room. Externally, the property benefits from a private, enclosed rear garden and sunny courtyard, and on-street parking.
Extras: All fitted floor and window coverings, and integrated appliances are included.
Read moreKey Features
Terraced townhouse in Cellardyke
Vestibule and hall with WC and utility room
Spacious living room with a focal fireplace and press shelving
Well-appointed dining kitchen
Sunny study
Four Bedrooms
Bathroom; Shower Room
GCH; DG; EPC - D
Private rear garden with two stores
On-street parking
- Council Tax: Band D
- Freehold





















