3 Bedrooms, Offers Over £205,000
7 West Path, Carnoustie DD7 7BX
312
Features & Description
Property Description
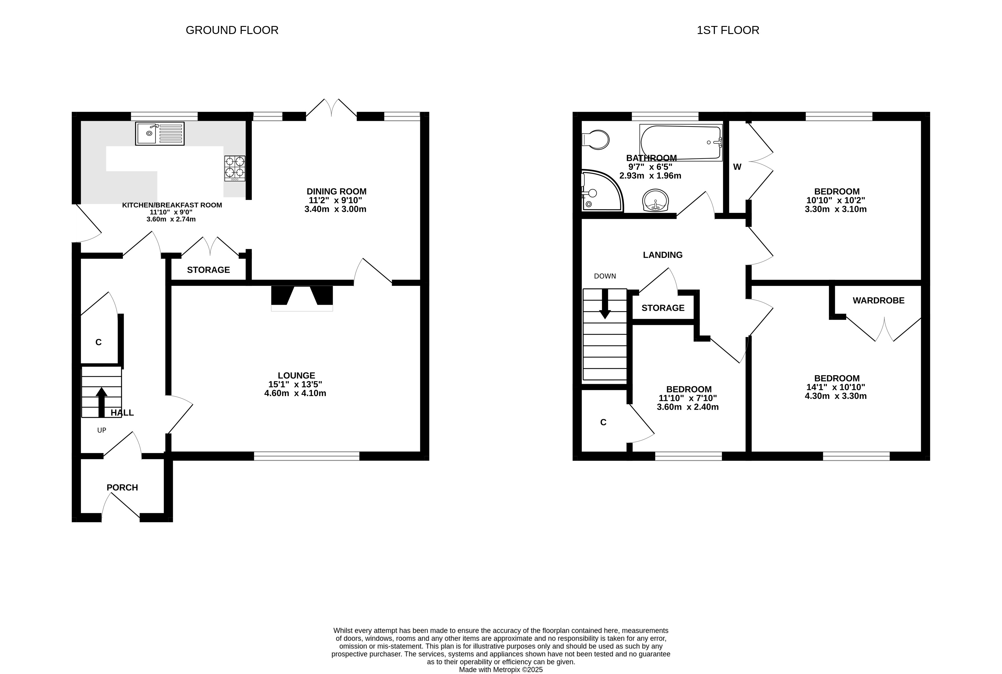
This well-presented and modernised three bedroom semi-detached villa is located within a popular residential area, and within walking distance of educational amenities, public transport, and a wide variety of shopping facilities.
The spacious property includes upgraded windows, doors, radiators and shower, accommodation comprises entrance hall, lounge, dining room with double glazed doors leading to rear garden, fitted kitchen, upper hall, three well appointed bedrooms with fitted wardrobes and family bathroom.
Externally, the house benefits from a side driveway with parking, front garden, and a generous enclosed rear garden.
Viewing is highly recommended to appreciate this ideal family home.
Read moreKey Features
Attractive Semi Detached Villa
Popular Residential Area
Convenient For Local Amenities
Hall; Lounge
Dining Room
Fitted Kitchen
3 Bedrooms
Family Bathroom
GCH; DG; EPC - C
Gardens & Driveway
- Council Tax: Band D
- Freehold


















