Development Site, Stevens Yard, Shepherds Loan, Dundee DD2 1UN
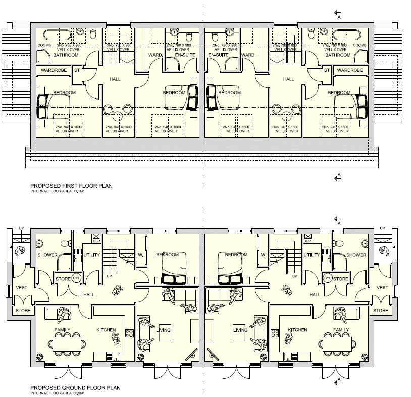
This is a very rare opportunity to purchase a building plot within this thriving area of Dundee. The plot is located in the prestigious and much sought after West End of the City. It is ideally placed for straightforward access to Dundee University Campus, Ninewells Teaching Hospital, Technology Park and is well within a comfortable walking distance to the City Centre and the Riverside. There are social and leisure amenities as well as a varied selection of shopping outlets close by on the Perth Road. Magdalen Green and its iconic bandstand are at the foot of the hill opposite Shepherds Loan. The site is an open site and lies to the north of the impressive Highmill Court. There is detailed planning permission in place for two large semi detached dwellings and designated private car parking for up to 5 vehicles. The owner holds recently commissioned reports relating to the site, including plans and costings, which are available to view on request. For more information contact the New Build Team Thorntons 01382 200099
Read moreNew Build Essentials
Whether you're a first time buyer or you're looking to move on Help to Buy could be the answer.
Secure a New Build Home at an agreed Fixed Price from Plan
Where to look for New Build Property and advertise houses & sites for sale.

