5 Bedrooms, Offers over £185,000
2/2, 3, Dudhope Street, Dundee DD1 1JZ
521
Features & Description
Property Description
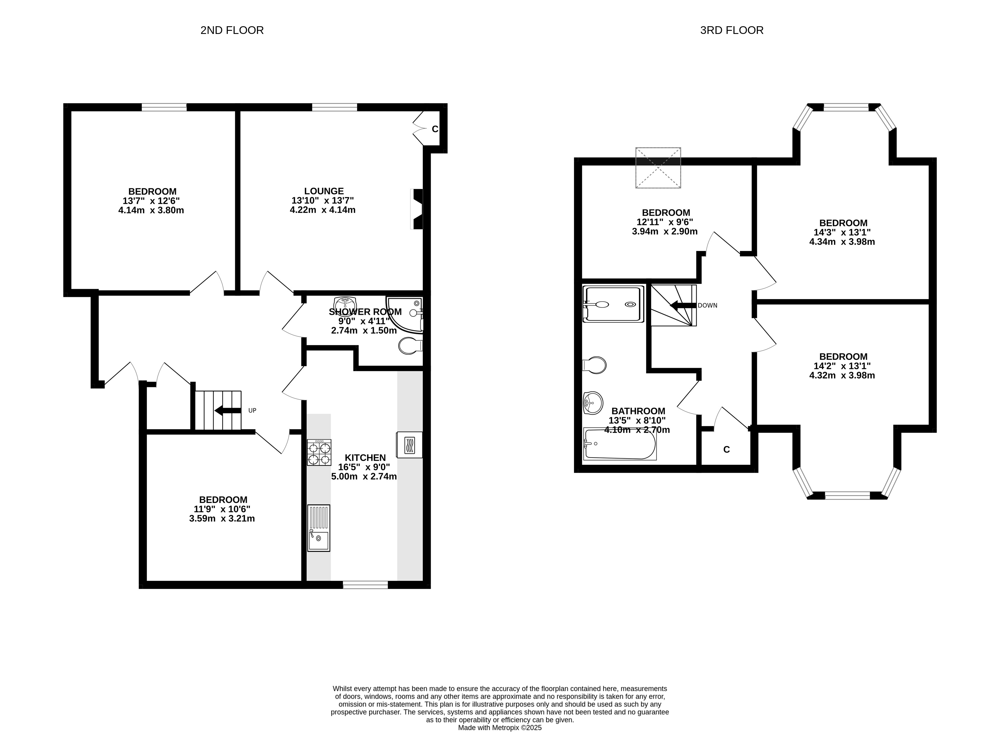
This spacious five-bedroom Grade B listed maisonette is set over two levels in a popular residential area located in the heart of Dundee, Dudhope Street offers excellent access to city centre amenities and both the University of Dundee and Abertay University. The area is convenient for local shops, Dudhope Park which is a large green space ideal for outdoor leisure, and is within walking distance restaurants, shopping centres, bars and cafes.
The property includes a bright lounge/diner, a dining kitchen, a family bathroom, shower room, five well appointed bedrooms offering flexible accommodation ideal for sharers or larger households. The property which benefits from gas central heating retains many attractive original features and holds a current HMO licence.
Property comes as seen, fully furnished.
Viewing is highly recommended.
Read moreKey Features
5 Bedroom Maisonette
Excellent Central Location
Grade B Listed Building
Lounge/Diner
Dining Kitchen
Bathroom + Shower Room
GCH; EPC - C
HMO Licence
Views of the River Tay
Viewing Highly Recommended
- Council Tax: Band C
- Freehold


















