5 Bedrooms, Offers Over £148,500
17c, Loons Road, Dundee DD3 6AA
511
Features & Description
Property Description
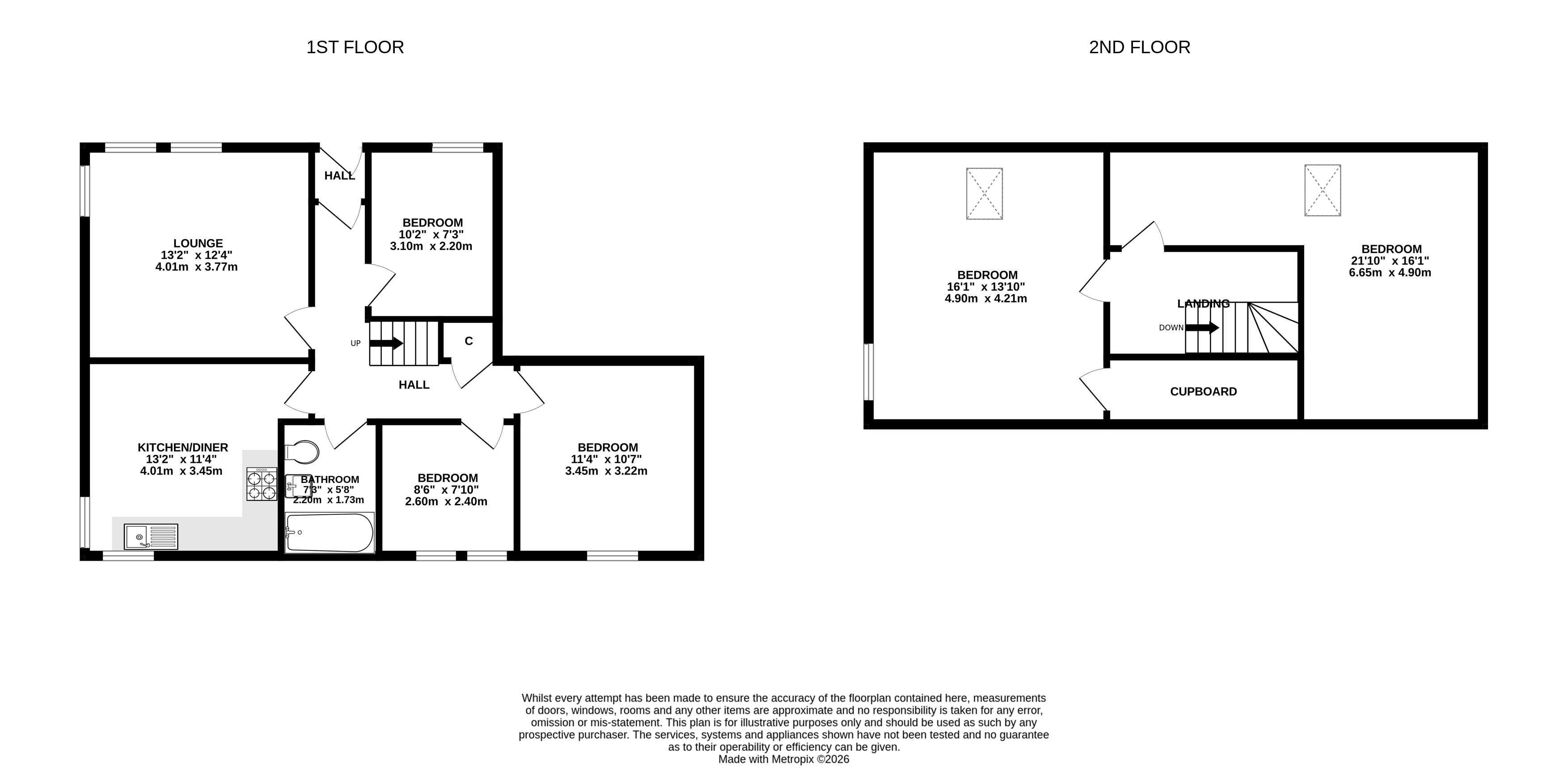
Spacious first floor and attic maisonette, situated within a popular residential area, convenient for a wide range of local amenities including public transport giving direct access to Dundee city centre.
The accommodation is over two levels and comprises hall with stairs leading to upper floor, bright spacious lounge with both rear and side facing window, ample space for occasional furniture, dining/kitchen with both wall and base units, oven, hob, extractor space for dining table, two windows, three bedrooms, family bathroom, two additional bedroom on the upper floor.
Externally there is a large communal garden to the rear.
Internal viewing is essential to enable potential buyers to fully appreciate the extent of accommodation within this generously proportioned home.
Read moreKey Features
1st & Attic Floor Maisonette
Popular Residential Area
Convenient For Local Amenities
Hall, Lounge, Dining Kitchen
Five Bedrooms
Family Bathroom
Viewing highly recommended
Communal Garden Area To Rear
Ideal Family Home
EPC - E
- Council Tax: Band B
- Freehold














