3 Bedrooms, Offers Over £250,000
49 Albany Terrace, Dundee DD3 6HR
321
Features & Description
Property Description
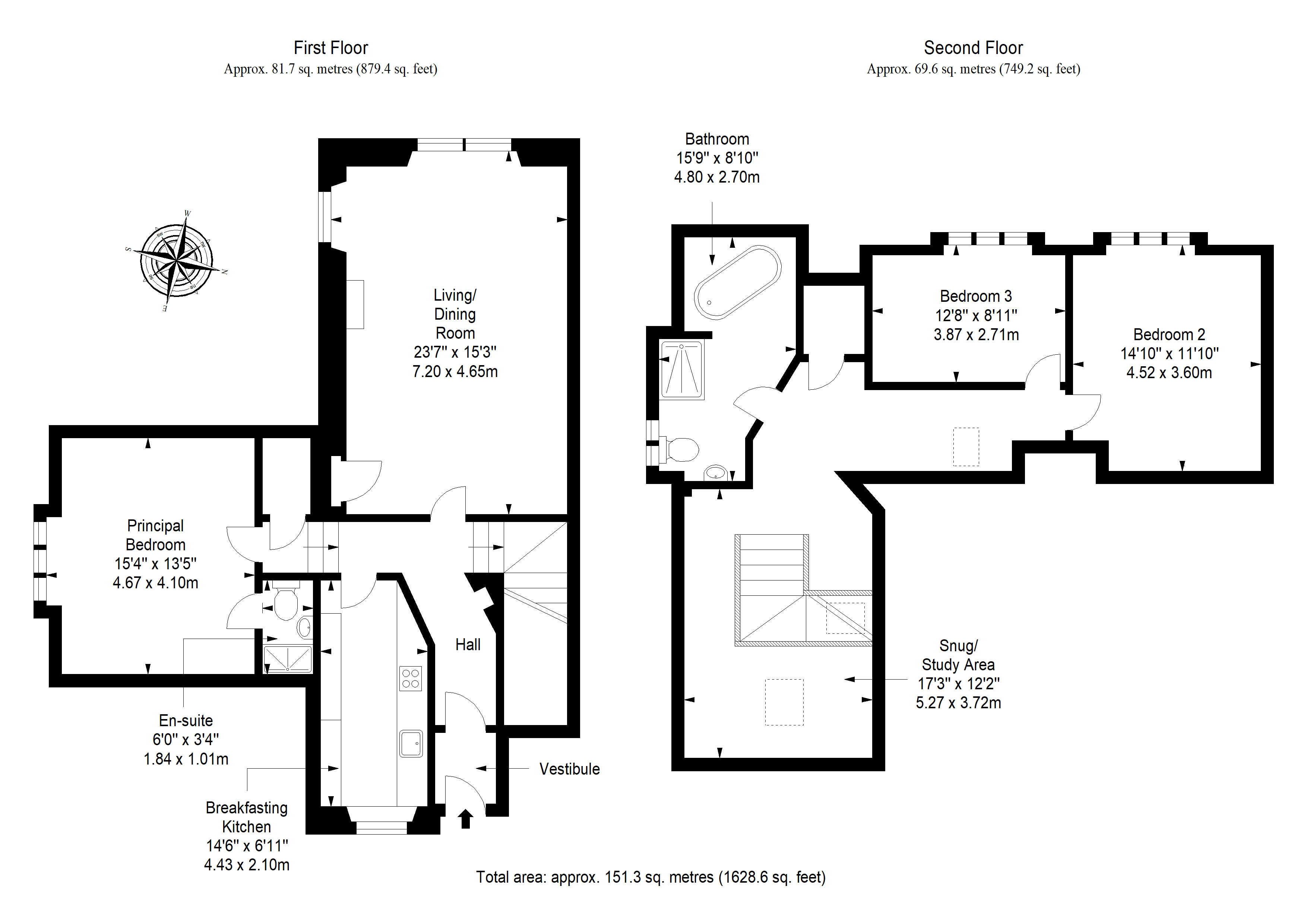
Set on the second and third floors of a handsome period building in Dundee, this double upper apartment blends modern fixtures with charming original details. The home boasts a sunny dual-aspect reception room, with a log burner and press storage, and a galley-style kitchen with contemporary cabinetry and integrated appliances. The accommodation further includes a sun-facing main bedroom with an en-suite, two more west-facing bedrooms, and a skylit snug/study area with storage. A stylish four-piece family bathroom with mirrored vanity storage and a clawfoot tub completes the interior. Outside, there is a private rear garden with raised decking, a summer house, and on- street parking.
Extras: All fitted floor and window coverings, light fittings, and integrated appliances are included.
Read moreKey Features
Double upper apartment in Dundee
Private main entrance
Sunny dual-aspect living/dining room with log burner
Modern galley-style kitchen
Three Bedrooms ( 1 en-suite)
Versatile skylit snug/study area with storage
Four-piece family bathroom
Private rear garden with a summer house and raised decking
On-street parking
GCH; DG; EPC - D
- Council Tax: Band E
- Freehold




















