1 Bedroom, Offers Over £45,000
G/R, 16, Isla Street, Dundee DD3 7HT
111
Features & Description
Property Description
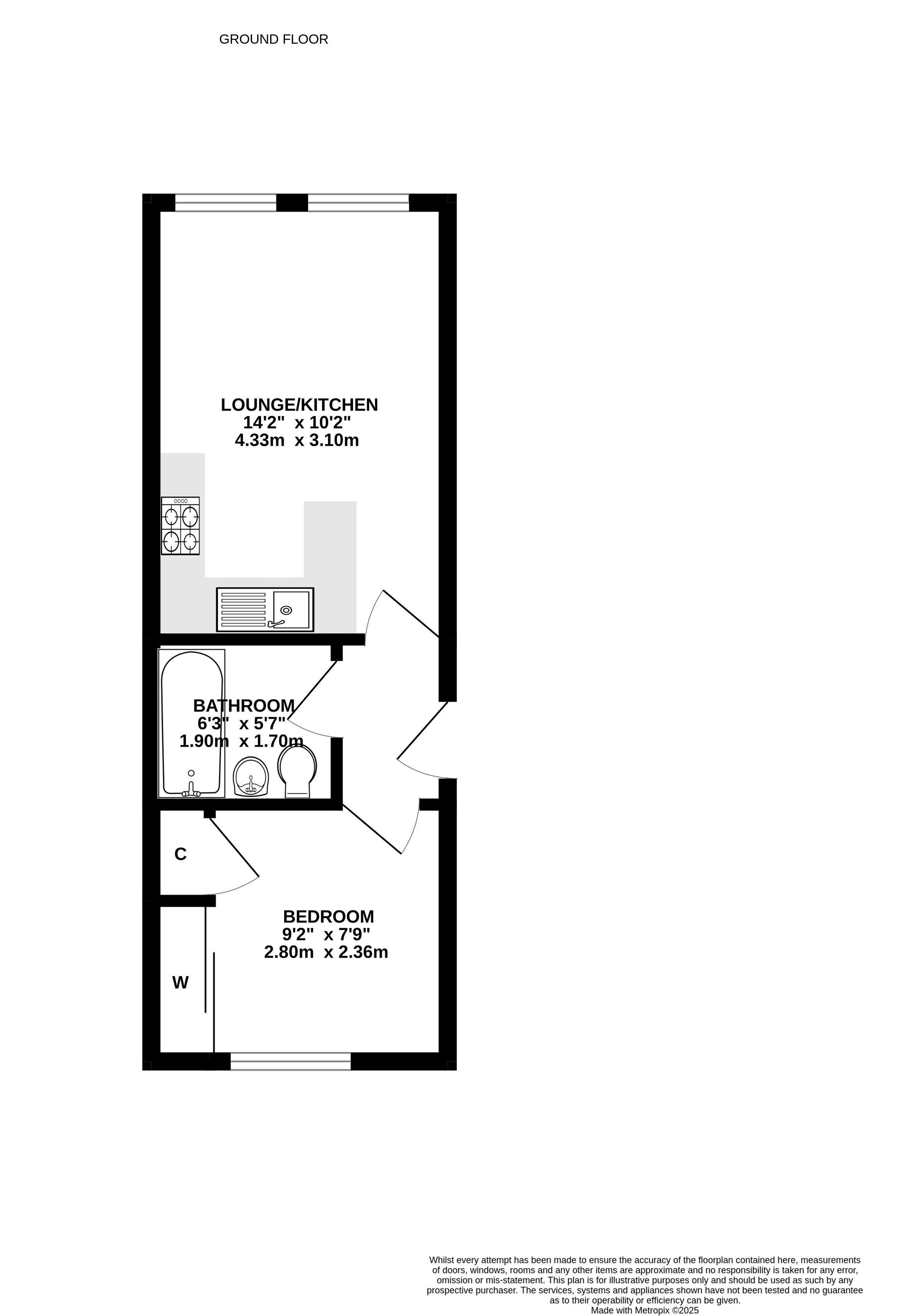
This is an excellent opportunity to purchase a ground-floor apartment in a popular residential location. Isla Street is ideally placed for a wide range of amenities including shops, schooling, leisure facilities and excellent commuter transport links.
The subject property offers comfortable accommodation which comprises: bright open plan lounge/kitchen with a range of wall and base units, bathroom with three-piece suite and a well-proportioned double bedroom with storage facilities.
Practical attributes include electric heating, double glazing and storage facilities.
Externally the property benefits from on-street parking and communal garden grounds.
This is an ideal buy-to-let investment or first-time buyers.
Read moreKey Features
Popular Location
Ground Floor Apartment
Open plan lounge/kitchen
Double Bedroom
Bathroom
Shared Garden grounds
Electric Heating & DG
On-street parking
EPC D
- Council Tax: Band B
- Freehold








