2 Bedrooms, Offers Over £100,000
13 Milton Street, Monifieth, Dundee DD5 4QF
211
Features & Description
Property Description
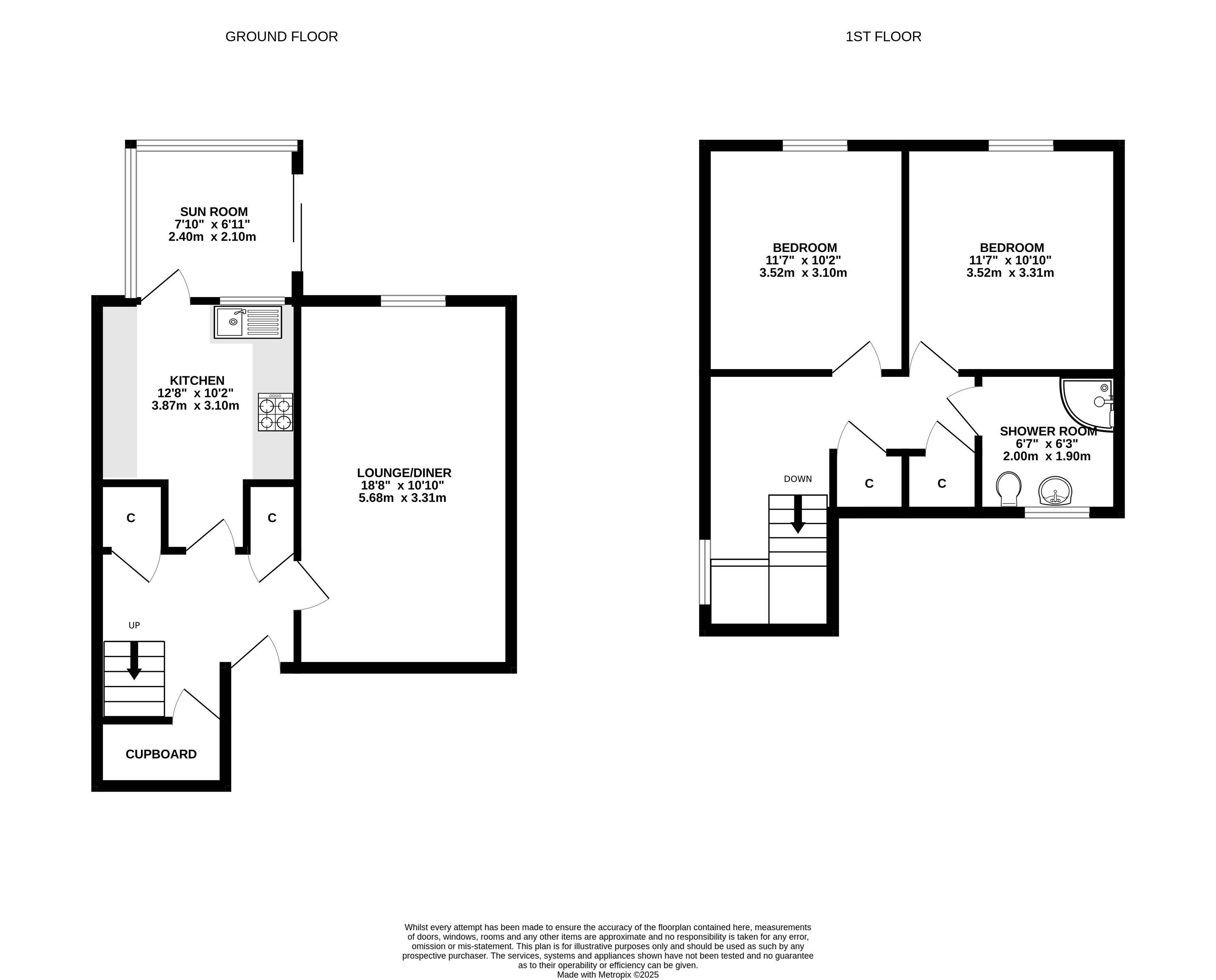
This is an excellent opportunity to purchase a mid terraced villa situated within a popular residential area. The location is ideal for local amenities including: health centre, schools, beach, golf courses, train station, and commuter bus routes into Dundee and beyond.
The subject property which benefits from double glazing and gas central heating, offers well proportioned accommodation over two levels, comprising: entrance hallway, lounge, kitchen, single glazed conservatory, shower room and two double bedrooms.
Externally there is an enclosed rear garden with lawn and timber shed.
NB This property will have restricted lending and would be more suitable as a cash purchase.
Viewing is highly recommended.
Read moreKey Features
Mid Terraced Villa
Hall; Lounge
Kitchen
Single Glazed Conservatory
Two Bedrooms
Shower Room
GCH; DG; EPC - D
Enclosed Garden & Shed
Restricted Lending, Cash Purchase
Viewing Highly Recommended
- Council Tax: Band B
- Freehold














