5 Bedrooms, Offers over £1,250,000
Scottcraig House, Elie KY9 1ER
563
Features & Description
Property Description
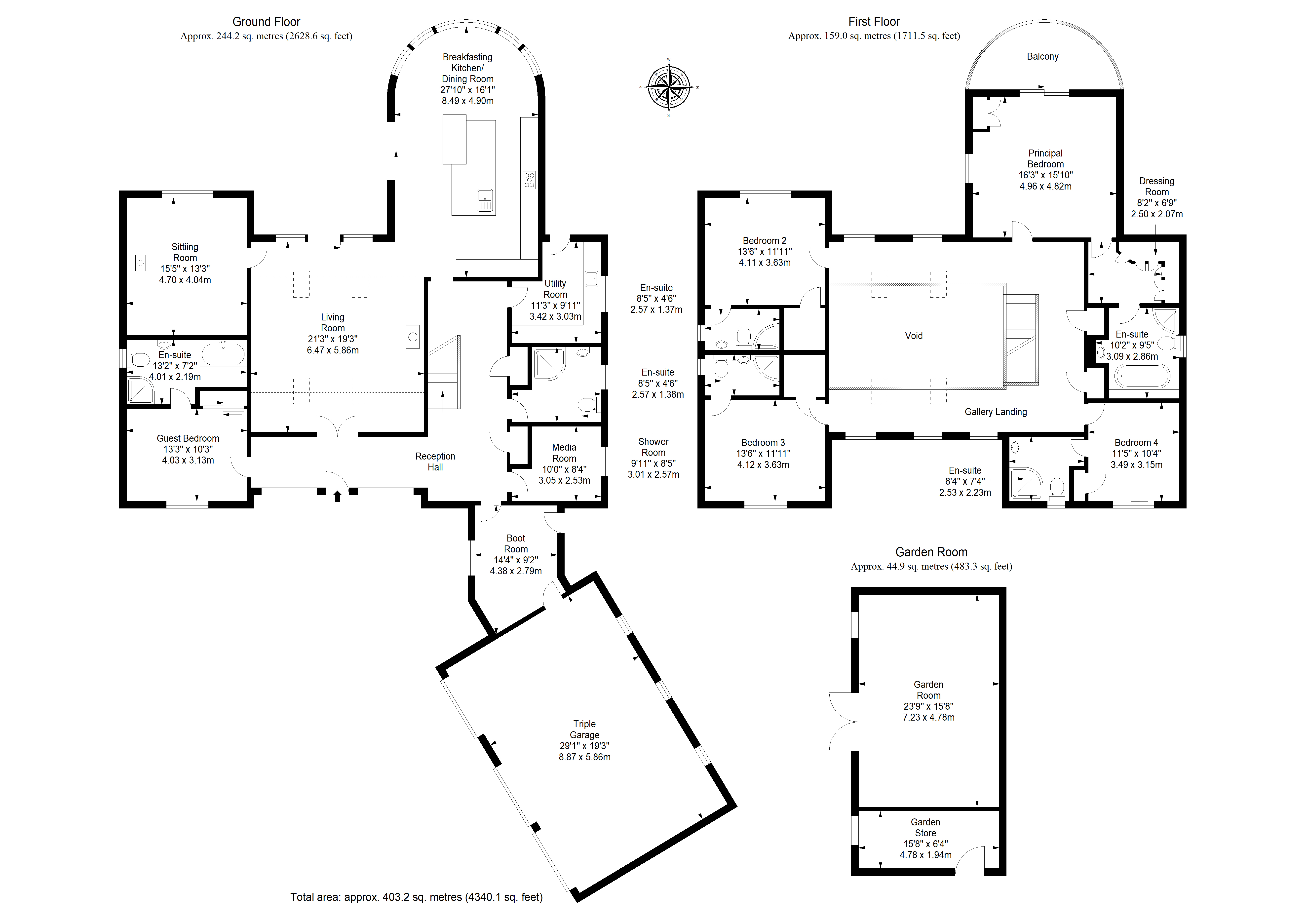
Set within the prestigious Elie Estate, Scottcraig House is an exceptional contemporary residence, thoughtfully designed to blend modern Scottish architecture with outstanding craftsmanship and eco-efficient performance. Completed in 2017 by Andrew Davie Homes, this bespoke home offers five beautifully appointed bedrooms, six bathrooms and a carefully curated layout extending over two levels.
A striking reception hall sets an immediate sense of arrival, where a sculptural oak staircase and abundant natural light introduce the quality and scale that define the home. At its heart lies a breathtaking double-height living space, where full-height glazing, exposed timber detailing and a feature stone wall create a dramatic yet welcoming environment, seamlessly connecting the interior with the surrounding gardens.
The open-plan kitchen and dining area is designed for both refined entertaining and relaxed family living, featuring sleek, high-specification finishes, a substantial central island and direct access to a sunlit terrace. A separate sitting room offers a more intimate setting, ideal for quiet retreat.
Upstairs, a galleried landing enhances the home’s architectural elegance, leading to four generous en-suite bedrooms. The principal suite is particularly impressive, complete with a dressing room and private balcony. A fifth bedroom on the ground floor provides flexible accommodation, perfectly suited to guests or multigenerational living.
Set within private landscaped grounds, the property further benefits from a sweeping driveway and a triple integrated garage. In one of the East Neuk’s most sought-after coastal settings, Scottcraig House offers a rare combination of privacy, space and understated luxury.
Read moreKey Features
Contemporary and immaculate, executive family home
Magnificent living room with double height ceiling
Private sitting room with woodburning stove
Large dining area with lovely garden views
German Schüller kitchen with integrated appliances
Discreet utility room with garden access
Five generous double en-suite bedrooms
Stylish guest shower/powder room
Three integral garages with automated doors
West-facing landscaped rear garden with large patio
- Freehold


















































