3 Bedrooms, Offers Over £120,000
17 Jeanfield Crescent, Forfar DD8 1JR
311
Features & Description
Property Description
Thorntons are delighted to bring to the market, 17 Jeanfield Crescent, Forfar, a semi detached villa set in an established residential area in the town of Forfar.
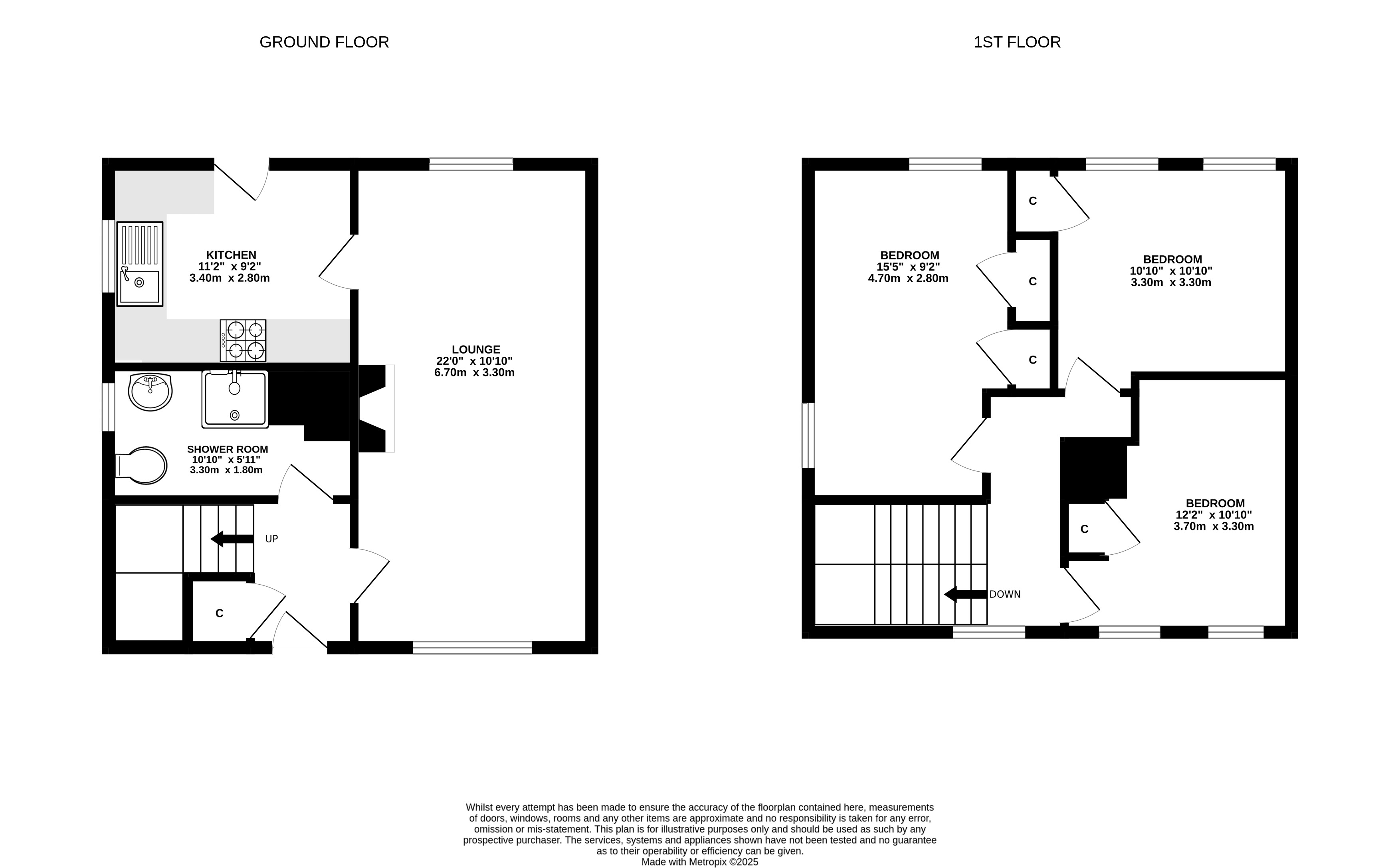
The accommodation comprises: Entrance Hallway, Lounge, Kitchen, 3 Bedrooms and Shower Room.
Whilst some cosmetic upgrading is required, this property provides an exceptional opportunity for purchasers to create a home designed to their own taste and style.
Practical attributes include double glazing, gas central heating and a driveway for off street parking.
There are areas of garden to the front and rear with a greenhouse.
The property is conveniently located for easy access to the town of Forfar which offers a range of shops, services, schools and amenities and is popular with commuters and provides convenient distance to the Dundee/Aberdeen A90 dual carriageway which connects to major routes north and south.
Early viewing is highly recommended
Read moreKey Features
Semi - Detached Villa
Spacious Lounge with open fire
3 bedrooms
Kitchen with glazed door to rear garden
Shower Room
Gardens, Driveway & Greenhouse
Requires Modernisation and Upgrading
Early Viewing is Recommended
Ideal 1st Time Purchase or Rental Investment
- Council Tax: Band B
- Freehold



















