Offers Over £598,000
Kemphills Farmhouse, Farm Buildings and approx 10 Acres. Kemphills, Kirkbuddo, Forfar DD8 2NR
Features & Description
Property Description
Kemphills Farmhouse, Farm Buildings & Approx. 10 Acres of Arable Land
Location: Rural Angus, close to Dundee
Overview
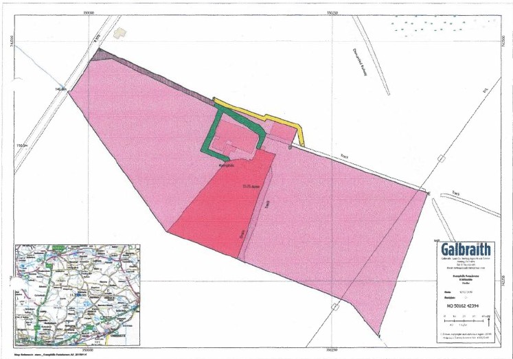
Kemphills presents a rare and exciting opportunity to acquire a substantial rural property in the heart of Angus, just a short drive from Dundee. This versatile holding comprises a traditional detached farmhouse requiring complete refurbishment, a range of farm buildings, and approximately 10 acres of productive arable land.
Development Potential
The property benefits from planning permission for the demolition of existing farm buildings and the construction of four new dwellings, making it an ideal prospect for developers or investors seeking to create high-quality homes in a desirable countryside setting.
Current Income
Part of the existing farm buildings are currently leased, generating an annual rental income of approximately £27,000, providing an immediate return while future plans are implemented.
Key Features
Detached farmhouse with scope for full renovation (: 20/00464/FULL)
Range of farm buildings with redevelopment potential
Planning permission for 4 new dwellings
Approximately 10 acres of arable farmland
Existing rental income of around £27,000 per annum
Attractive rural location with easy access to Dundee and major transport links
Location Highlights
Situated in the picturesque Angus countryside, Kemphills offers the perfect blend of rural tranquility and convenience. Dundee, with its excellent amenities, schools, and transport connections, is just a short distance away, while the surrounding area boasts stunning landscapes, outdoor pursuits, and a strong sense of community.
Ideal For:
Developers seeking a multi-unit residential project
Buyers looking for a renovation opportunity
Agricultural investors or lifestyle purchasers
Read moreKey Features
Fantastic development opportunity
New electricity supply
Fine southerly aspect
Around 10 Acres
Planning for additional Housing
Great revenue from Part of Farm Buildings
Lovely location
Viewing strictly through selling agents
Services close by
- Freehold











