4 Bedrooms, Offers Over £400,000
Bellfield Farmhouse, Markinch, Glenrothes KY7 6NZ
412
Features & Description
Property Description
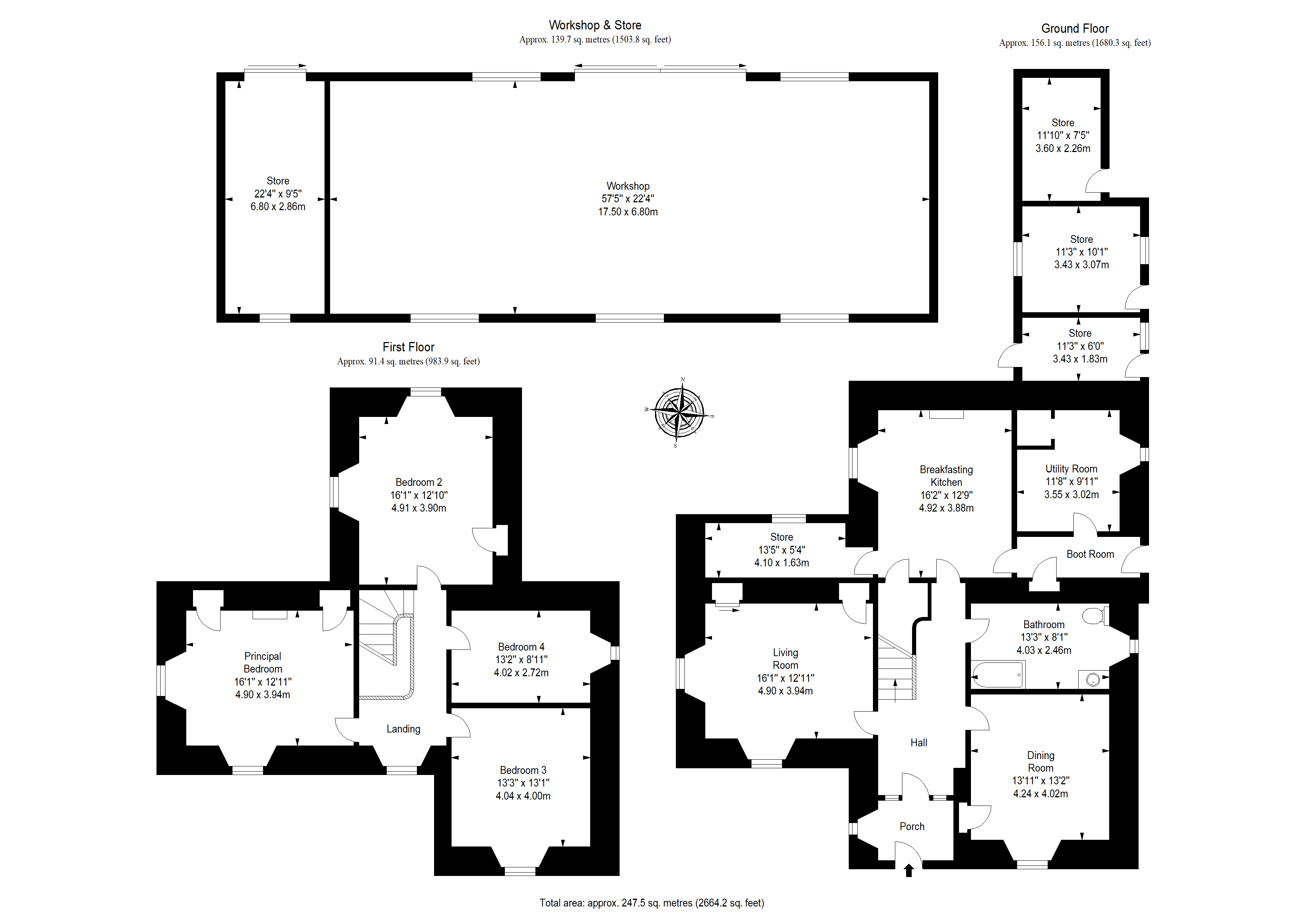
This traditional detached farmhouse is nestled in the picturesque Fife countryside, enjoying far-reaching views—just five minutes by car from the thriving village of Markinch, which offers a good range of everyday shops, a primary school, and a train station. The four-bedroom residence retains its elegant period character while offering excellent scope for modernisation and development. Well-proportioned throughout, the property features four double bedrooms, two south-facing reception rooms, a bright breakfasting kitchen, a large utility room, and a bathroom. The home also benefits from excellent internal and external storage, while the generous grounds boast sunny gardens, a paddock, a driveway, and a detached garage/workshop.
Extras: The property is sold as seen.
Read moreKey Features
Traditional detached farmhouse in a scenic setting
Two south-facing reception rooms
Breakfasting kitchen with a utility room, a store, and external access via a boot room
Four double bedrooms
Bright and airy bathroom
Generous gardens with a sunny aspect
Adjoining paddock
Private multi-vehicle driveway
Detached workshop/garage and store
GCH; DG; EPC - F
- Council Tax: Band F
- Freehold















