4 Bedrooms, Offers Over £380,000
18 Ruighard Place, Inverness IV3 8DZ
432
Features & Description
Property Description
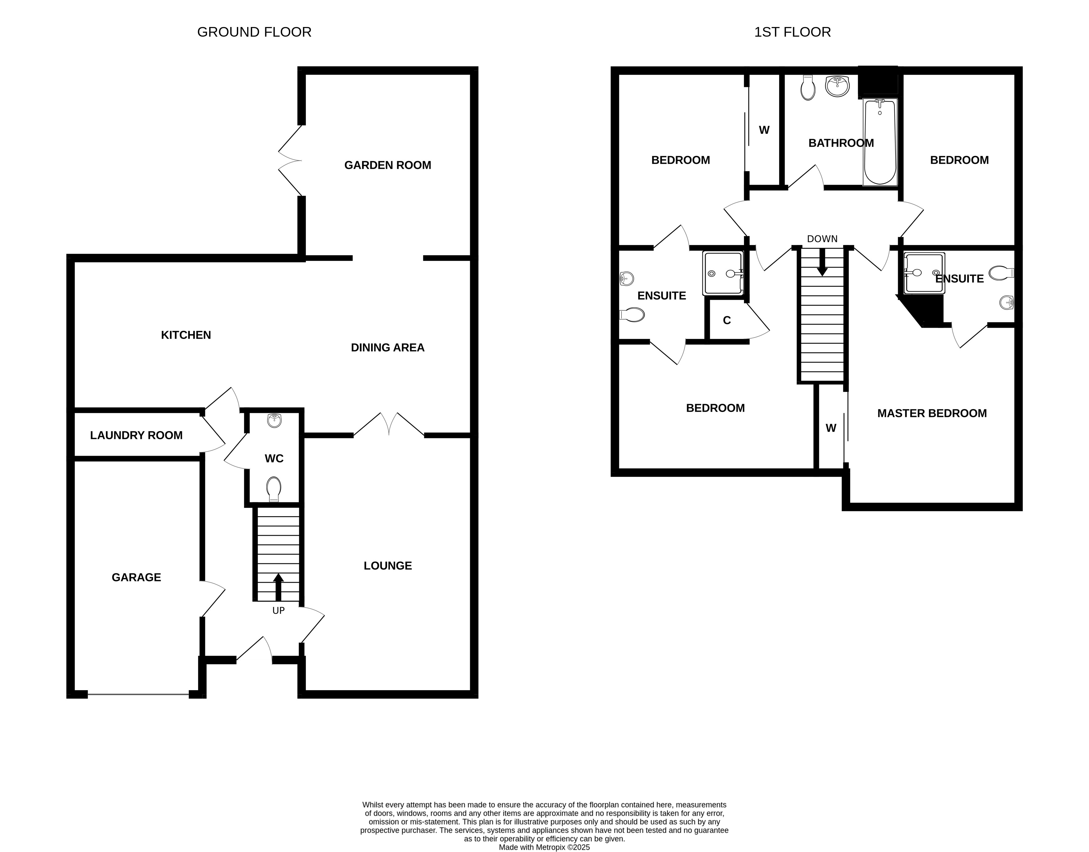
Discover this stunning detached villa, perfectly positioned within the exclusive and newly established Ruighard Place in the Great Glen development of Inverness. Built by Robertson Homes in the highly sought-after ‘Ivory Garden Room’ design, this immaculate property is in walk-in condition. The home boasts a contemporary interior with a neutral palette and high-quality finishes throughout. The thoughtfully designed layout offers both style and functionality, ideal for modern family living. The welcoming lounge is filled with natural light through large front-facing windows. At the heart of the home, the impressive open-plan kitchen/dining area with garden room is perfect for everyday living and entertaining. The modern fitted kitchen features generous storage, ample worktop space and premium Smeg integrated appliances, including double oven, multi-zone induction hob, extractor, self-defrosting fridge/freezer and dishwasher. The dining area offers generous space, easily accommodating a large table for up to eight guests, and flows seamlessly into the bright cathedral roofed garden room overlooking the private rear garden and woodland beyond. Additional ground floor highlights include a newly fitted utility room with convenient WC. Upstairs, you’ll find four generously proportioned double bedrooms and elegant bathroom. The spacious Principle Suite boasts a modern en-suite shower room and double fitted wardrobes. Bedroom two offers fitted storage and sharing a Jack & Jill shower room with bedroom three, makes it ideal for guests or children. Excellent storage solutions including warm airing cupboard shelving enhance the home’s practicality. The South-West facing rear garden is fully enclosed with double fencing and backs onto tranquil woodland, offering privacy and a peaceful outlook. Mainly laid to lawn it is complemented by both a patio and decked area—perfect for outdoor dining and entertaining. A block-paved driveway provides parking for two vehicles and leads to the integral garage. This beautiful family home will appeal to discerning buyers seeking a contemporary, high-quality property in a prime location. Early viewing is highly recommended.
Location: Situated on Inverness’s desirable west side, the property is located within the newly established Great Glen development. The area offers excellent local amenities including a general store, pharmacy and convenient dining and takeaway outlets. Families can benefit from nearby Kinmylies Primary School for nursery and primary education, with secondary schooling at Charleston Academy. Leisure options are close at hand, with the 18-hole Kings Club Golf Course, An Talla Restaurant by the Caledonian Canal and Farm Ness, a beloved family-friendly destination. Regular bus services provide convenient access to Inverness city centre which offers an extensive range of shopping, dining, and recreational facilities. For outdoor enthusiasts, access to the Great Glen Way and Mountain Biking can be enjoyed just minutes from the property within the surrounding woodland of Craig Dunain and Craig Phadraig. Inverness boasts excellent transport links by road and rail and is served by Inverness Airport, offering national and international connections.
Services: Mains gas, electricity, water and drainage. Telephone, satellite and broadband.
Included in the sale: All fitted floor coverings, fixtures and fittings and Perfect Fit window blinds. Integrated appliances including double oven, induction hob, extractor, dishwasher and fridge/freezer.
Maintenance Charges: Factoring fees are approximately £240 per annum.
Rooms
- Garden Room: 3.00m x 3.64m (9' 10" x 11' 11")
- Bathroom: 2.67m x 2.35m (8' 9" x 7' 9")
- Bedroom 4: 2.49m x 3.56m (8' 2" x 11' 8")
- Bedroom 3: 2.60m x 3.77m (8' 6" x 12' 4")
- Bedroom 2: 3.73m x 3.00m (12' 3" x 9' 10")
- Ensuite: 1.49m x 2.48m (4' 11" x 8' 2")
- Bedroom 1: 3.64m x 4.00m (11' 11" x 13' 1")
- WC: 1.07m x 2.25m (3' 6" x 7' 5")
- Utility Room: 1.09m x 2.28m (3' 7" x 7' 6")
- Kitchen: 4.85m x 2.75m (15' 11" x 9' 0")
- Day Room: 3.55m x 3.58m (11' 8" x 11' 9")
- Lounge: 3.58m x 5.57m (11' 9" x 18' 3")
Key Features
4 bedroom Detached Family Home
Immaculately presented throughout
Desirable modern development
Lounge, kitchen/diner, garden room, utility, WC, principle ensuite, Jack & Jill shower room and bathroom
Private garden, integral garage with drive for 2 cars
EPC Band C
Council Tax Band F
Floor area: 155m²
Annual factoring: approx. £240
- Council Tax: Band F
- Freehold























