11 Bedrooms, Offers Over £249,000
126 High Street, Kinross KY13 8DA
1143
Features & Description
Property Description
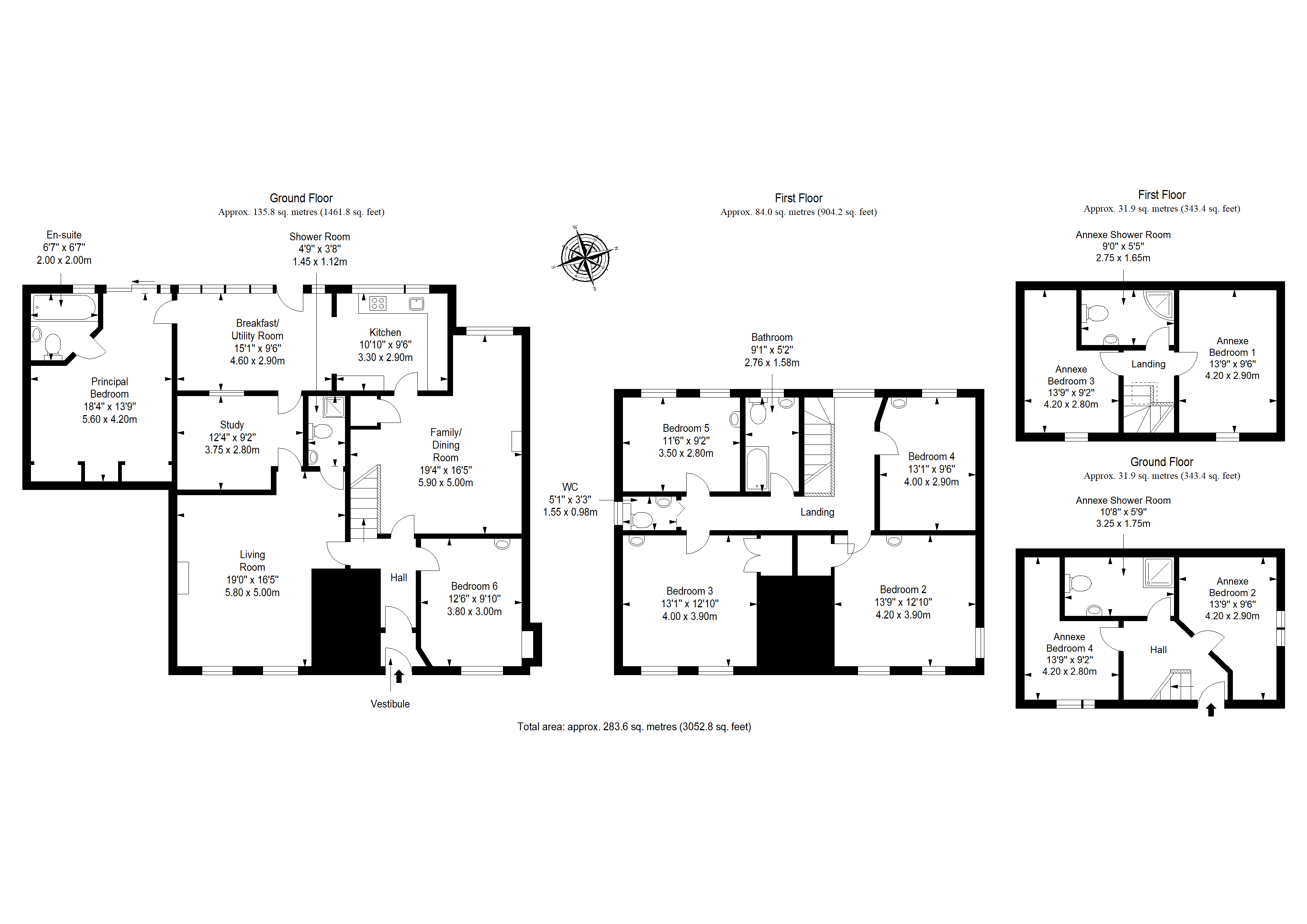
A former guest house in the charming burgh of Kinross, this traditional lower double villa offers six/seven bedrooms, versatile living areas, and multiple bath/shower-rooms, complemented by a detached annexe with four bedrooms and two shower rooms. The property also benefits from a corner plot with a generous garden and private parking, all set in a central location within easy reach of amenities and attractions, including shops, schools, and the enchanting Perthshire countryside.
Spacious family home with annexe – in the heart of Kinross
Enjoying a prime central position in the historic county town of Kinross, this substantial extended home with its separate two-storey annexe provides outstanding space and flexibility. Kinross itself sits in a scenic loch-side setting and, adjacent to the M90, is ideally placed for swift travel – just 20 minutes to Perth, and under an hour to both Edinburgh and Dundee, each with airport connections.
Together, the two properties present exciting potential for modernisation and development. They can easily accommodate a large family, facilitate multi-generational living, or, subject to permissions, provide rental income or a renewed hospitality venture. For buyers seeking an investment with adaptability and opportunity, this is an exceptional prospect.
Versatile living spaces – one with an en-suite
A traditionally tiled vestibule and adjoining entrance hall flow into two reception rooms, both well-illuminated by double windows. The living room features an elegant fireplace with an electric fire and the unusual benefit of an en-suite shower room, making it a flexible option for additional sleeping quarters. The second reception room provides space for both dining and relaxed seating, with useful storage and a direct connection to the kitchen. A third ground-floor living space, enhanced by wood-style flooring, neutral décor, and fitted shelving, offers the ideal home study or snug.
Light-filled kitchen and large utility room
Overlooking the garden, the kitchen is appointed in a tasteful modern style, with sleek white cabinets, wood-toned worktops, and a mosaic-tiled splashback. A deep Belfast sink, an under-counter dishwasher, a freestanding gas cooker (and space for an upright fridge freezer) are included. Adjoining is a bright utility room with garden access. Subject to permissions, it could be incorporated into the kitchen to create an impressive open-plan dining hub.
Principal suite with garden access
The ground-floor principal bedroom boasts a bespoke wardrobe system, neutral décor with modern wood-style flooring, and sliding patio doors opening directly onto the garden. Its aqua-panelled en-suite bathroom features a WC, vanity basin, and bath with overhead shower.
Further bedrooms
Five additional bedrooms are arranged across the ground and upper floors, all light-filled (most with double windows) and each equipped with a handy washbasin. Two also have storage.
Additional bathroom and WC
Located off the airy, first-floor landing are a bright family bathroom, with a shower-over-bath, and a further handy WC.
Separate annexe
Detached to the rear, the two-storey annexe offers four flexible bedrooms and two shower rooms, with interiors in neutral and wood tones. It presents excellent potential for independent living, rental, or business use, subject to permissions.
Garden and private parking
The rear garden is a delightful outdoor space with paved seating areas, a central lawn, established borders, and a water feature. A side driveway provides private parking and direct access to the annexe, with scope to add gates for extra security.
Extras: The sale includes all fitted flooring, selected window coverings, standard light fittings, dishwasher, and cooker. Some smart features and video doorbell will not be included.
Area
Kinross
Conveniently positioned just off the M90, the historic town of Kinross offers all the benefits of a small-town lifestyle. Kinross is set on the edge of Loch Leven, which is renowned for its outstanding wildlife and heritage attractions, which include a medieval castle and an RSPB nature reserve. The thriving High Street hosts a wealth of amenities, including a family bakery and an award-winning butcher. The stunning Kinross-shire countryside offers no shortage of outdoor pursuits, from hiking and cycling to golf and equestrian. Sport and fitness enthusiasts are very well catered for, with a leisure centre, curling rink, rugby/hockey grounds, and a tennis club in Kinross. The property falls within the catchment area for Kinross Primary School and Kinross High School. The M90 allows swift travel to Perth and Edinburgh, while Kinross park-and-ride provides convenient public transport links.
Read moreKey Features
Generous two-storey lower villa (former guest house)
Versatile living room with double windows, fireplace, and en-suite shower room
Bright family/dining room with storage and kitchen access
Light-filled kitchen and large utility room with garden access
Cosy multi-purpose study
Principal suite with storage, bright bathroom, and garden access
Five further double bedrooms – each with a washbasin (two with storage)
Bright family bathroom and additional separate WC
Detached Annexe with four bedrooms & two shower rooms
Generous mature rear garden & driveway
- Council Tax: Band F
- Freehold
































