4 Bedrooms, Offers Over £145,000
49 Hillrise, Kirriemuir DD8 4JR
432
Features & Description
Property Description
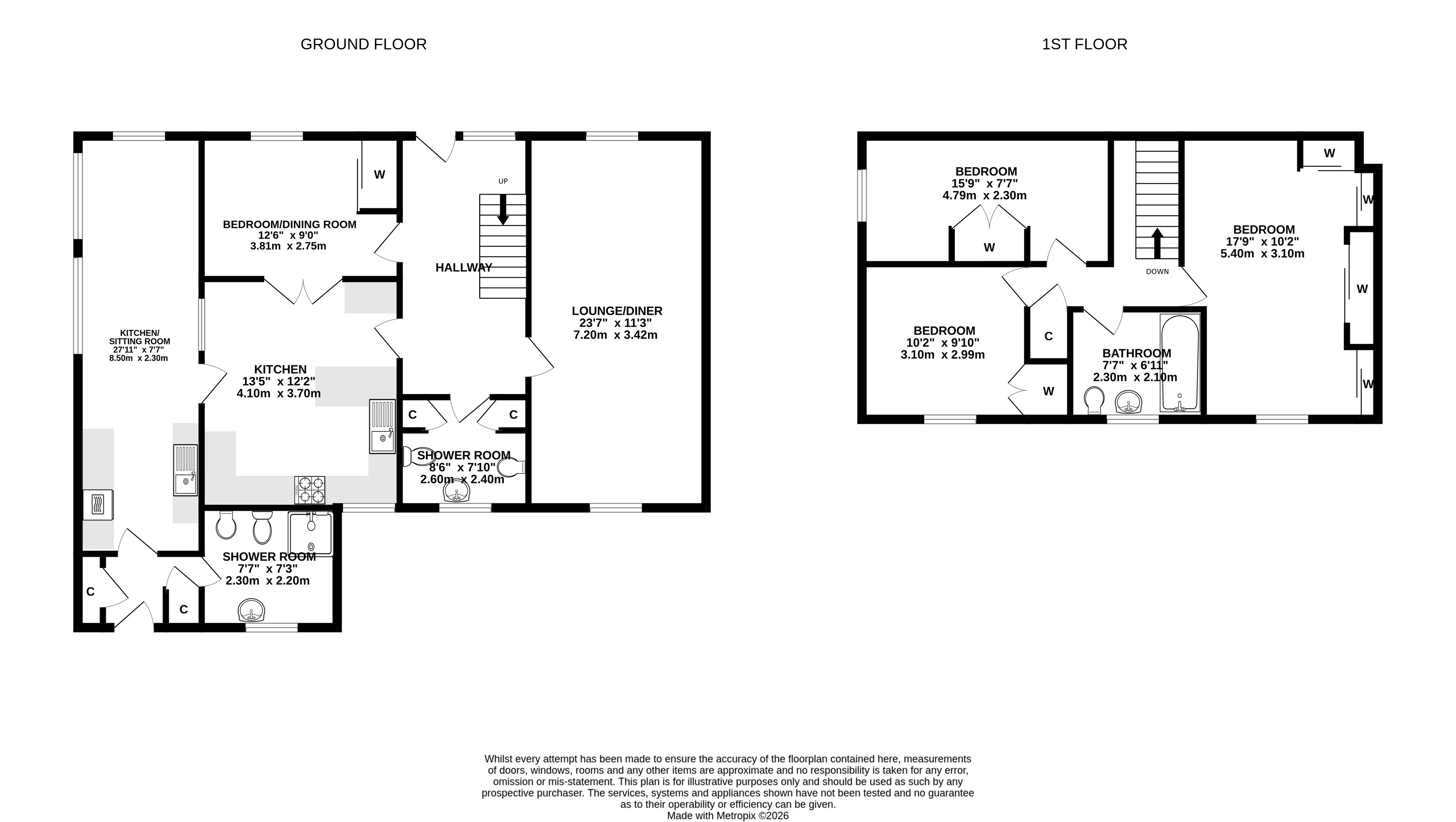
Thorntons are delighted to bring to the market, No. 49 Hillrise, a spacious semi detached villa with an open outlook, within easy walking distance of all local amenities and services including Northmuir Primary School, the town centre of Kirriemuir, and local bus routes.
The property provides well-proportioned family accommodation over two levels and benefits from gas-fired central heating and double glazing.
The ground floor includes an entrance hall, lounge with dual aspect windows, generously sized kitchen, a further kitchen / conservatory area, two convenient shower rooms, each with four piece suites and a bedroom.
Upstairs, there are three spacious bedrooms, each with fitted storage and a family bathroom.
There are areas of garden to both the front and rear of the property.
Now requiring some upgrading, this property offers an excellent opportunity to create a personalised family home in a sought after location.
Early viewing is recommended.
Read moreKey Features
Semi Detached Villa
Spacious Lounge with dual aspect windows
Four Bedrooms
2 Kitchens
Bathroom & 2 Shower Rooms
Requires Modernisation and Upgrading
Front & Rear Gardens
Early Viewing is Recommended
Popular Residential Area of Kirriemuir
Countryside Views
- Council Tax: Band D
- Freehold


















