5 Bedrooms, Offers Over £485,000
Brigton House, Laurencekirk AB30 1BA
535
Features & Description
Property Description
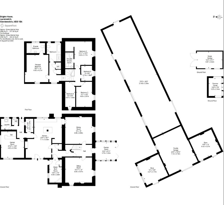
Brigton House is an exceptional country residence, rich in character and beautifully presented, offering a desirable rural lifestyle within mature garden grounds and paddocks extending to approximately 5 acres — ideal for equestrian use. Dating back to circa 1860, this handsome home blends traditional craftsmanship with sympathetic modern enhancements, including a striking Green Oak-framed garden room and oil-fired central heating.
Enjoying a south-facing position and surrounded by established gardens, the property is accessed via double gates leading to a sweeping tarred driveway with extensive parking, a detached double garage, and a substantial 120 sqm workshop — perfectly suited for equestrian storage, hobby use, or potential conversion to stabling, subject to any necessary consents.
Internally, the property offers warmth, charm, and superb functionality for family living. A welcoming utility room with WC opens into a stunning farmhouse-style dining kitchen featuring rustic beams, a range cooker, Belfast sink, central island, and French doors opening to the garden. A spacious study hallway with a log-burning stove links the kitchen to the main reception hall, which in turn leads to two elegant formal rooms: a sitting room with grand working fireplace, intricate cornicing, and timber flooring, and a formal dining room with similar period detailing. A standout highlight is the contemporary oak-framed garden room, with glazing on three sides and bi-folding doors that provide uninterrupted views across the grounds and paddocks.
The first floor is thoughtfully arranged into two wings, offering excellent family accommodation. Four charming front-facing bedrooms include the principal suite, which benefits from a working fireplace, walk-in storage, and a stylish upgraded en suite. The luxurious family bathroom features a freestanding double bath, walk-in shower, and underfloor heating.
The extensive, private grounds offer an exceptional setting for gardening, recreation, or equestrian pursuits. The paddocks provide ample space for grazing and potential stabling, making the property highly suitable for horse owners. Full fibre broadband ensures modern connectivity while enjoying peaceful countryside surroundings.
Brigton House is an exceptional country residence, rich in character and beautifully presented, offering a desirable rural lifestyle within mature garden grounds and paddocks extending to around 5 acres. Dating back to circa 1860, this handsome home blends traditional craftsmanship with thoughtful modern upgrades, including a striking Green Oak framed garden room and Oil Central Heating.
South facing and surrounded by established gardens, the property is approached through double gates onto a sweeping tarred driveway, providing extensive parking and access to a detached double garage and a substantial 120 sqm workshop, ideal for hobbies, storage or business use.
The interior combines warmth, charm and practical family living. A welcoming utility room with WC leads to the impressive farmhouse style dining kitchen, featuring rustic beams, a range cooker, Belfast sink, central island and French doors to the gardens. Adjacent is a spacious study hallway with a log burning stove. The front reception hall leads to two elegant formal rooms: a sitting room with grand working fireplace, intricate cornicing and timber floors, and a formal dining room showcasing similar period detailing. A standout feature of the home is the contemporary oak framed garden room with glazing on three sides and bi folding doors providing uninterrupted views of the grounds.
The upper floor divides into two wings, offering excellent family accommodation. Four charming front facing bedrooms include the largest with a working fireplace and stylish en suite. The luxurious family bathroom features a freestanding double bath, walk in shower and underfloor heating. The principal bedroom suite offers generous fitted walk in storage and an upgraded en suite.
The private, mature grounds are well suited to gardening, recreation or equestrian use, with paddocks extending the property’s appeal. Full fibre broadband ensures modern connectivity while enjoying peaceful rural surroundings.
HRV £540,000
Rooms
- Lounge: 15' 11" x 15' 0" (4.85m x 4.57m)
- Dining Room: 16' 0" x 16' 0" (4.88m x 4.88m)
- Kitchen: 23' 0" x 16' 7" (7.01m x 5.05m)
- Garden Room: 12' 4" x 8' 11" (3.76m x 2.72m)
- Games Room: 15' 10" x 13' 9" (4.83m x 4.19m)
- Boot Room: 13' 5" x 7' 5" (4.09m x 2.26m)
- Bedroom1: 16' 7" x 14' 0" (5.05m x 4.27m)
- Bedroom2: 13' 11" x 10' 5" (4.24m x 3.17m)
- Bedroom3 : 15' 1" x 9' 5" (4.60m x 2.87m)
- Bedroom4: 15' 0" x 6' 4" (4.57m x 1.93m)
- Bedroom5: 8' 9" x 6' 3" (2.67m x 1.91m)
Key Features
Exceptional 5-Acre Equestrian Property
Beautiful Period Country House
5 Reception Rooms
5 Bedrooms
3 Bathrooms
120 sqm Detached Workshop
Detached Double Garage
South Facing Setting
Mixed Glazing/Oil CH
Council Tax Band F
- Council Tax: Band F
- Freehold




























