2 Bedrooms, Offers over £135,000
84 Stewart Crescent, Lochgelly KY5 9PQ
211
Features & Description
Property Description
Lochgelly is a well-established town in West Fife offering a range of local amenities including supermarkets, shops, cafés, primary schooling and leisure facilities. Secondary schooling is available nearby.
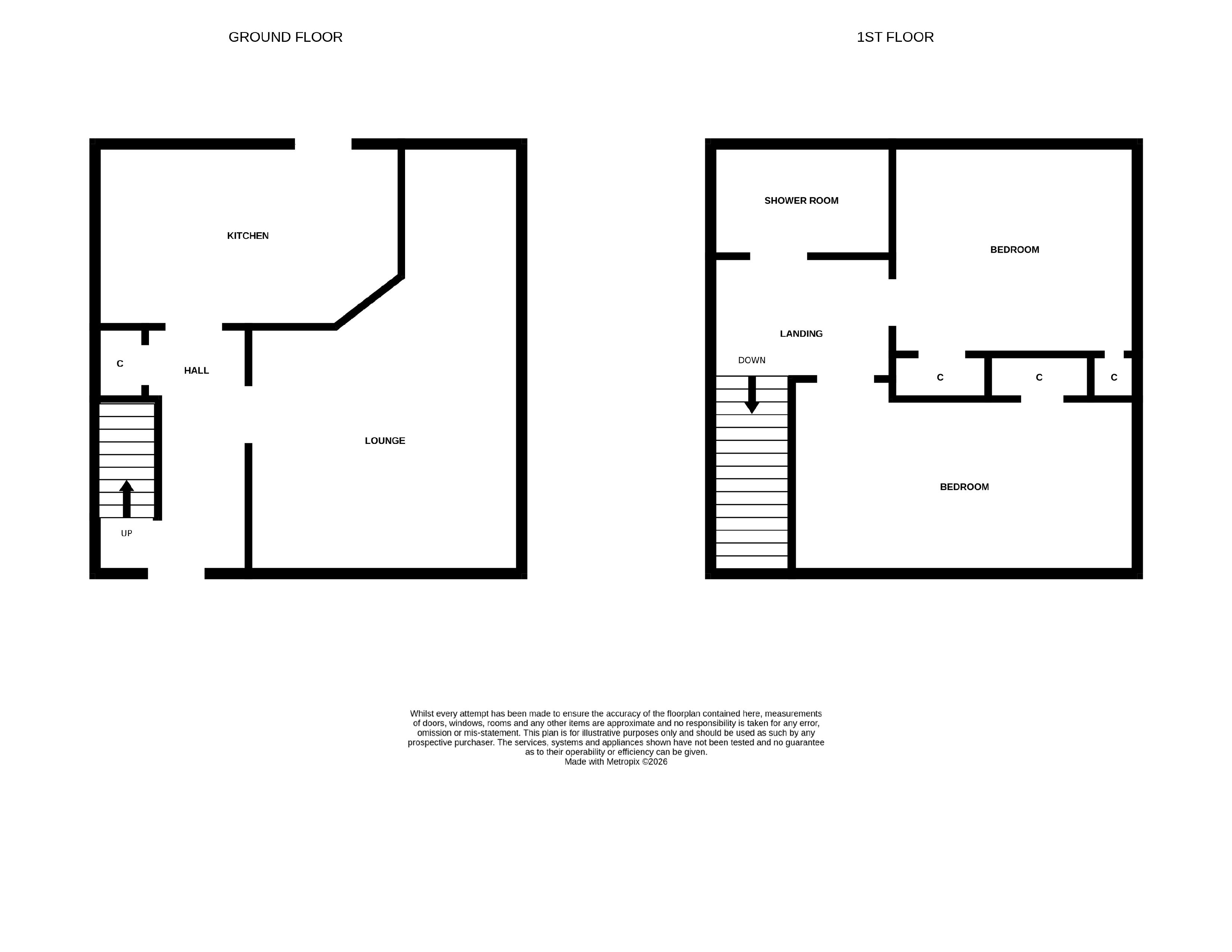
Situated within a popular residential area of Lochgelly, this well-presented semi-detached villa offers comfortable family living and comprises: bright lounge, fitted kitchen, two double bedrooms and three-piece shower room. Additional benefits include double glazing and gas central heating. Externally the property has a private driveway and enclosed rear garden. Ideal for first-time buyers, small families or buy-to-let investors.
The property is ideally positioned for commuting, with easy access to the A92, providing links to Dunfermline, Kirkcaldy, Glenrothes and beyond. Lochgelly also benefits from a railway station with regular services to Edinburgh and Dundee, making it an excellent base for commuters.
The surrounding area offers access to countryside walks, local parks and Fife’s wider coastal and recreational attractions.
Read moreKey Features
Semi Detached Villa
Bright Lounge with Gas Fire
Fitted Kitchen with Rear Garden Access
2 Double Bedrooms
3-Piece Shower Room
GCH; DG; EPC - D
Monobloc Driveway
Enclosed Low-Maintenance Rear Garden
Popular Residential Location
Excellent Commuter Links
- Council Tax: Band B
- Freehold













