Panmure Street, Monifieth DD5 4EA
New Build Apartments in Monifieth
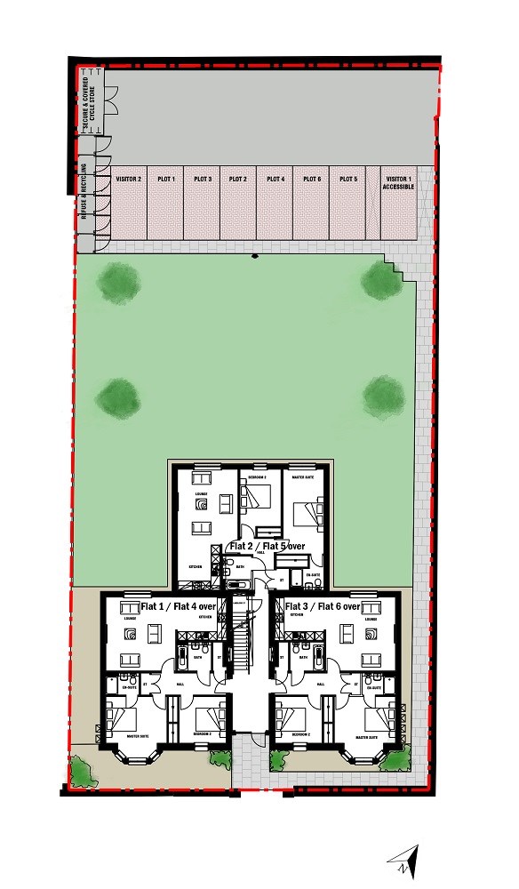
Thorntons is delighted to present a new development of six high-quality two-bedroom apartments, thoughtfully designed for modern living and convenience. These apartments are located on the site of the former Monifieth Church and church hall, offering a prime location close to the heart of Monifieth.
Key Features:
Modern Living Spaces: Each apartment boasts generous internal dimensions, creating a comfortable and spacious environment.
Energy Efficiency: Heated by gas-fired central heating, complemented by modern insulation and double glazing for energy efficiency.
Fully Equipped Kitchens: Integrated kitchen appliances include a hob, oven, extractor, fridge/freezer, and washing machine.
Stylish Bathrooms: Bathrooms and ensuites feature tiling in wet areas and heated towel rails for added comfort.
Private Parking: Each apartment includes a designated private car parking space.
Secure Access: A secure door entry system ensures peace of mind for residents.
Prime Location:
Convenient Amenities: Monifieth town centre is within walking distance, offering a supermarket, bank, doctor’s surgery, library, and a variety of shops.
Excellent Transport Links: The development is on a main commuter bus route and a short walk from Monifieth rail station, providing seamless connections to Dundee and beyond.
Proximity to Nature and Leisure: The nearby beach is perfect for walking and leisure activities. Golf enthusiasts will appreciate the proximity to Carnoustie, just four miles away, known for hosting the prestigious Open Championship.
About Monifieth:
Monifieth, located on the eastern outskirts of Dundee, is a highly sought-after area for its blend of natural beauty and convenience. Positioned along the northern shores of the Firth of Tay, the town offers:
Excellent Connectivity: Easy access to Dundee (6 miles away) and further afield via road, rail, air, and sea.
Family-Friendly Environment: Local schools cater to both primary and secondary levels, making it an ideal location for families.
Comprehensive Amenities: While Monifieth provides a range of shopping and commercial facilities, Dundee offers more extensive options just a short distance away.
This development presents an exciting opportunity to enjoy modern, comfortable living in a desirable coastal town with excellent amenities and transport links.
These interior images are AI-generated for illustrative purposes only and may not reflect the actual layout, condition, or finishes of the property. Please view in person to verify details.
Read moreNew Build Essentials
Whether you're a first time buyer or you're looking to move on Help to Buy could be the answer.
Secure a New Build Home at an agreed Fixed Price from Plan
Where to look for New Build Property and advertise houses & sites for sale.

