3 Bedrooms, Offers over £265,000
2 Glenogil Gardens, Anstruther KY10 3ET
312
Features & Description
Property Description
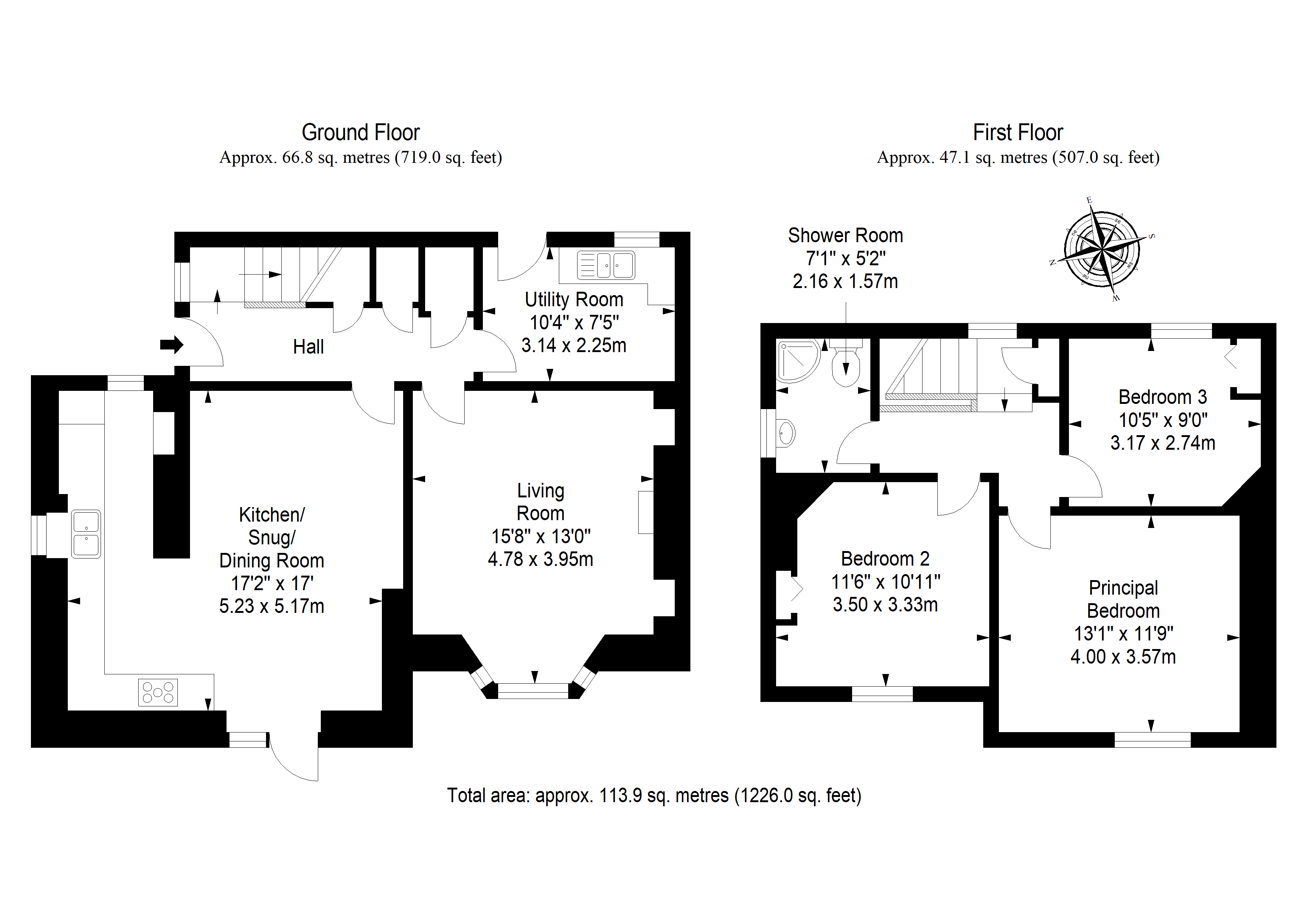
This beautifully presented three-bedroom semi-detached home offers bright, stylish accommodation over two levels, extending to approximately 113.9 sq. metres (1,226 sq. feet). Newly refurbished throughout, the property is finished in a fresh, neutral palette and complemented by new décor and flooring, creating a true walk-in home that blends character with modern comfort.
At ground-floor level, a welcoming hall leads to a generously proportioned open-plan kitchen/snug/dining room, forming the sociable heart of the home. The kitchen is a standout feature — a bespoke installation by “East Neuk Kitchens”, offering sleek cabinetry, quality finishes, and excellent workspace, with ample room for dining and relaxed family living. A separate bay-windowed living room provides a cosy yet elegant retreat, filled with natural light.
A particularly useful feature is the utility room, which provides excellent storage/laundry space and offers potential to create a downstairs WC (subject to the usual consents and planning requirements).
Upstairs, the home continues to impress with three well-sized double bedrooms, each presented in tasteful new décor, and a contemporary shower room. Externally, there is a fully enclosed rear garden with a neat lawn and a sizeable paved patio, perfect for outdoor dining and summer gatherings, plus a large timber store/garden shed. The property’s traditional stone construction and smart frontage complete an appealing family home in move-in condition.
Read moreKey Features
Semi Detached Villa
Utility Room
Kitchen / Snug / Dining Room
Living Room
3 Bedrooms
Shower Room
GCH; DG; EPC - C
Fully enclosed rear garden
Timber Garden Store
- Council Tax: Band D
- Freehold















