5 Bedrooms, Offers Over £400,000
Billowness Villa, 7 Burnside Terrace, Anstruther KY10 3EJ
532
Features & Description
Property Description
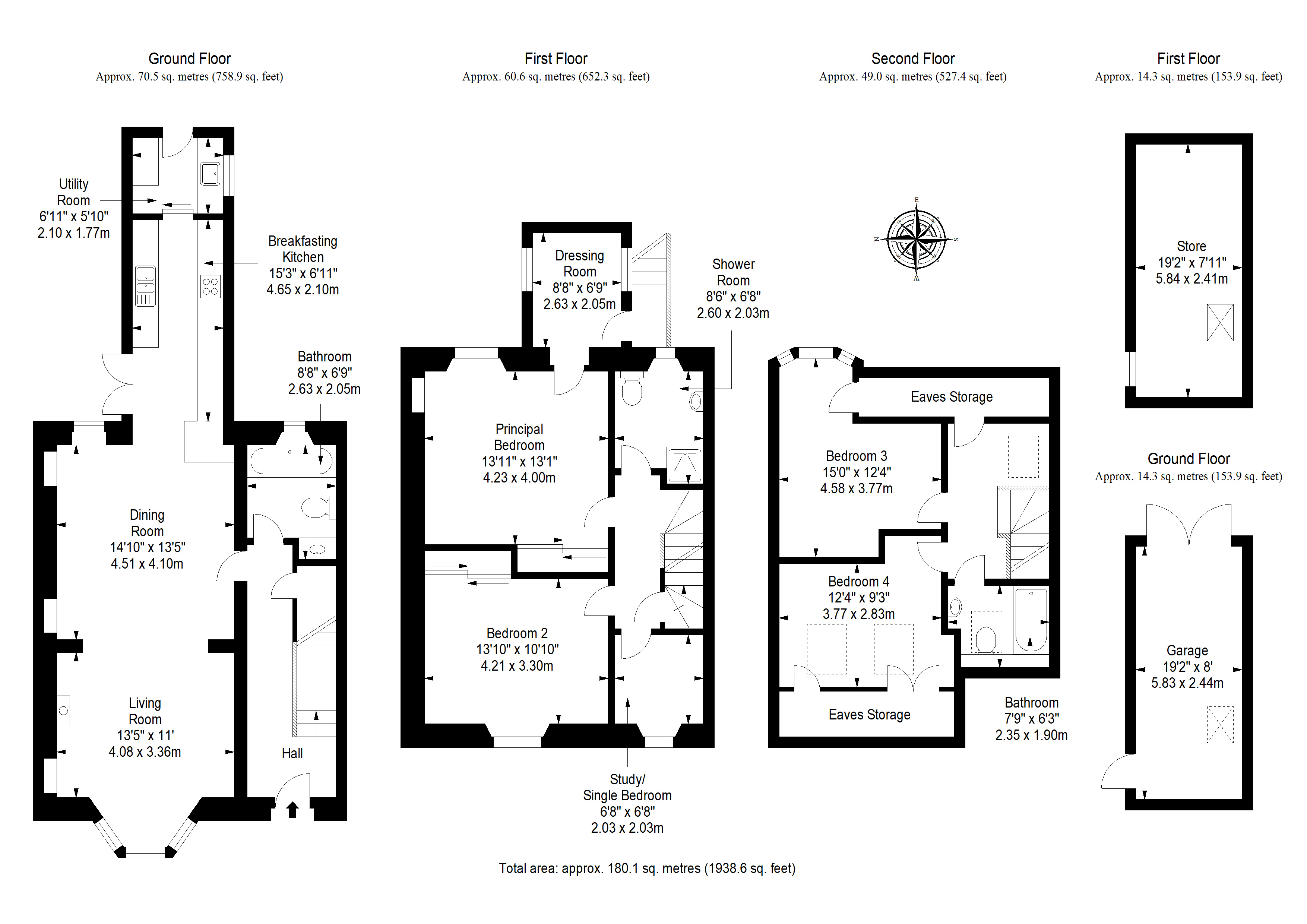
This surprisingly spacious mid-terrace family home in the attractive coastal village of Cellardyke stretches over three floors with beautifully presented interiors and sea views. The ground floor offers a generous open plan social space, flowing from a living room at the front, through a dining room, to a stylish integrated kitchen and utility room at the rear, as well as a bathroom. The first floor has one single and two double bedrooms, plus a shower room, and the second floor features two more double bedrooms and another bathroom. To the rear of the house are an enclosed patio garden and a two-storey outbuilding, with a garage, a store room, and development potential, subject to consents. Extras: All fitted floor and window coverings and light fittings are included.
Read moreKey Features
Three-storey mid-terrace family home
Bay-fronted living room open to:
Formal dining room, open to:
Stylish integrated kitchen with breakfast bar
Four double bedrooms with storage
Single bedroom/ home office
Two bathrooms and a shower room
Enclosed patio garden
Detached single garage with storage
GCH; DG; EPC - C
- Council Tax: Band C















