4 Bedrooms, Offers Over £280,000
Wester Gyles, 1 The Gyles, Pittenweem, Anstruther KY10 2NG
421
Features & Description
Property Description
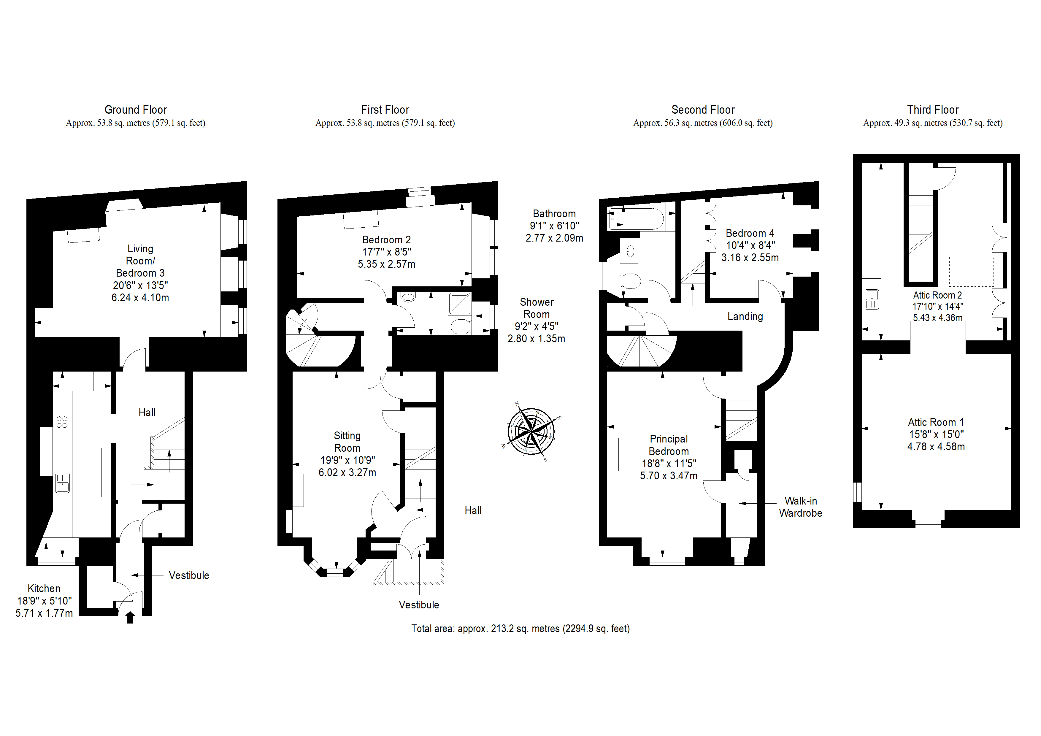
Wester Gyles is a distinctive four-bedroom historic townhouse thought to date back to the 1700s, positioned at the harbour head in the sought-after East Neuk village of Pittenweem. Arranged over four levels, the property offers spacious and flexible accommodation including a living room with exposed beams and fireplace, sitting room, kitchen, four bedrooms, bathroom and shower room, together with two useful attic rooms. The property retains traditional features and offers excellent potential for modernisation to create a characterful coastal home.
Pittenweem is a picturesque fishing village in the East Neuk of Fife centred around its historic harbour. The property enjoys a prime position at the harbour head, close to the waterfront, shops, cafés and galleries. Nearby coastal towns include Anstruther, St Monans and Crail, while St Andrews lies approximately 10 miles away.
Read moreKey Features
Historic townhouse thought to date from the 1700s
Close to harbour and coastal walks
Sitting Room
Kitchen
Four bedrooms
Bathroom, Shower Room
Two attic rooms
Mixed glazing (single and double glazed units)
Electric heating (no gas supply), EPC G
- Council Tax: Band F
- Freehold







