4 Bedrooms, Offers Over £725,000
The Steading, Kilry, Blairgowrie PH11 8JA
434
Features & Description
Property Description
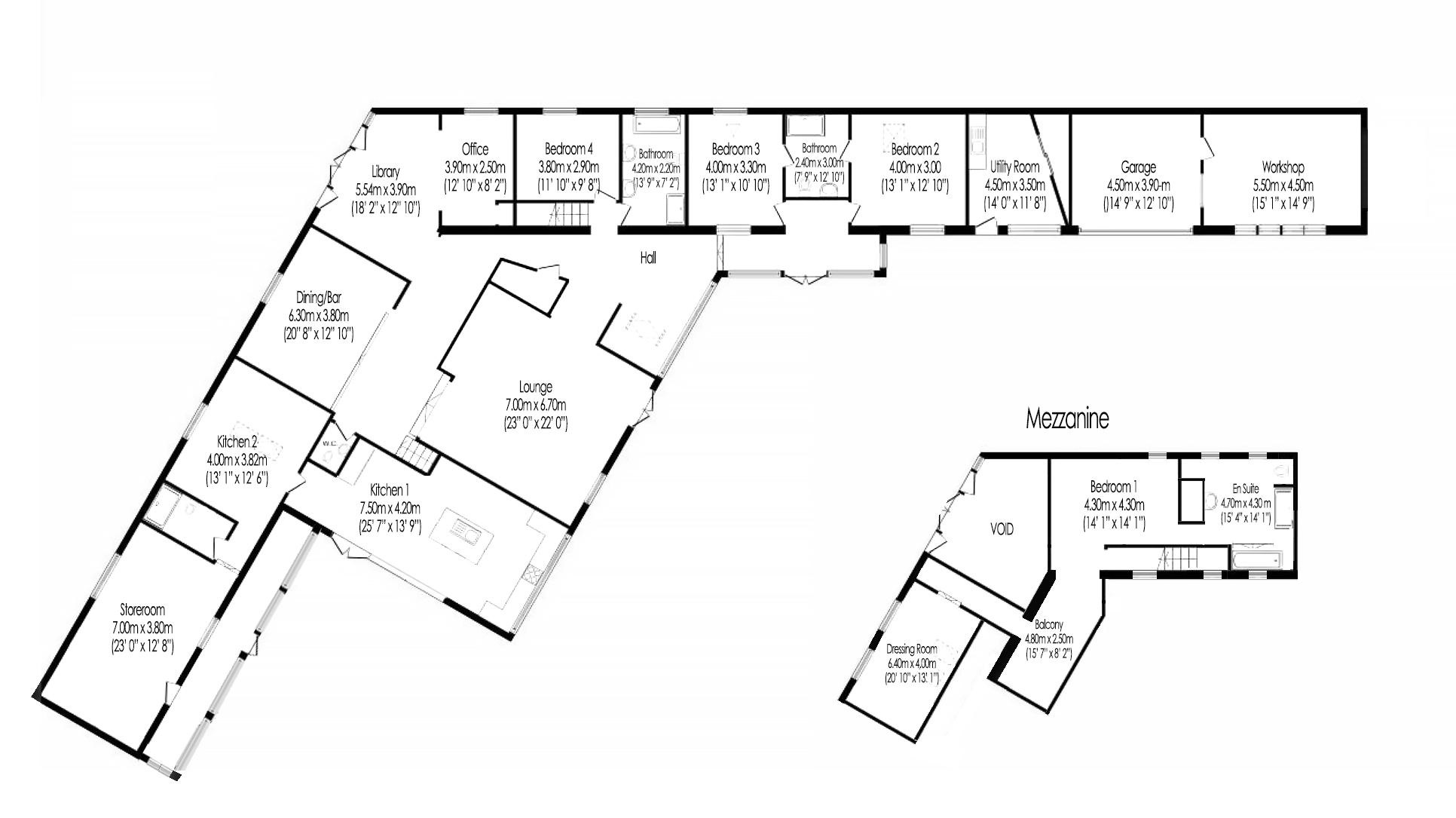
Set in the stunning Angus countryside, The Steading is a distinctive converted barn offering spacious accommodation with four double bedrooms, set within approximately 2.5 acres of garden grounds. The property combines traditional character with generous modern living spaces and enjoys panoramic views across surrounding farmland and hills.
At its heart is an impressive open-plan lounge, filled with natural light and ideal for relaxing or entertaining. This flows into a large dining area with bespoke hand crafted bar, creating a sociable central living space. The property also features a substantial principal kitchen with central island, along with a second kitchen providing additional flexibility for larger households or multi-generational living.
The ground floor includes a library, office, three well-proportioned bedrooms, bathroom facilities, and useful storage and utility areas. Above, a striking mezzanine level forms a private principal bedroom suite with generous en-suite bathroom, dressing room, and access to an internal balcony.
Externally, the grounds extend to around 2.5 acres and include a raised timber deck ideal for outdoor dining while enjoying the surrounding countryside view. Additional features include a garage, workshop, and generous storage.
The Steading offers a rare opportunity to acquire a unique country home combining character, space, and breathtaking rural surroundings.
Kilry - Situated approximately four miles north of the town of Alyth and close to the border with Perth and Kinross. Set at the foot of the Angus Glens and near Glen Isla, the area enjoys a picturesque and tranquil setting characterised by rolling farmland, wooded glens and open countryside.
Read moreKey Features
Detached unique converted barn
Approx. 2.5 acres of garden grounds
Four generous double bedrooms, Master Ensuite
Three reception rooms and office space
Bedroom two and three with Jack and Jill ensuite
Family bathroom with three piece suite
Possible to create an internal annex for multi-generational living
Elevated position taking in outstanding countryside views
Sought after rural location close to Alyth and Glenisla
Solar panels, triple and double glazing; EPC - C
- Council Tax: Band E
- Freehold



























