4 Bedrooms, Offers Over £300,000
1a, Muirdrum, Carnoustie DD7 6LE
422
Features & Description
Property Description
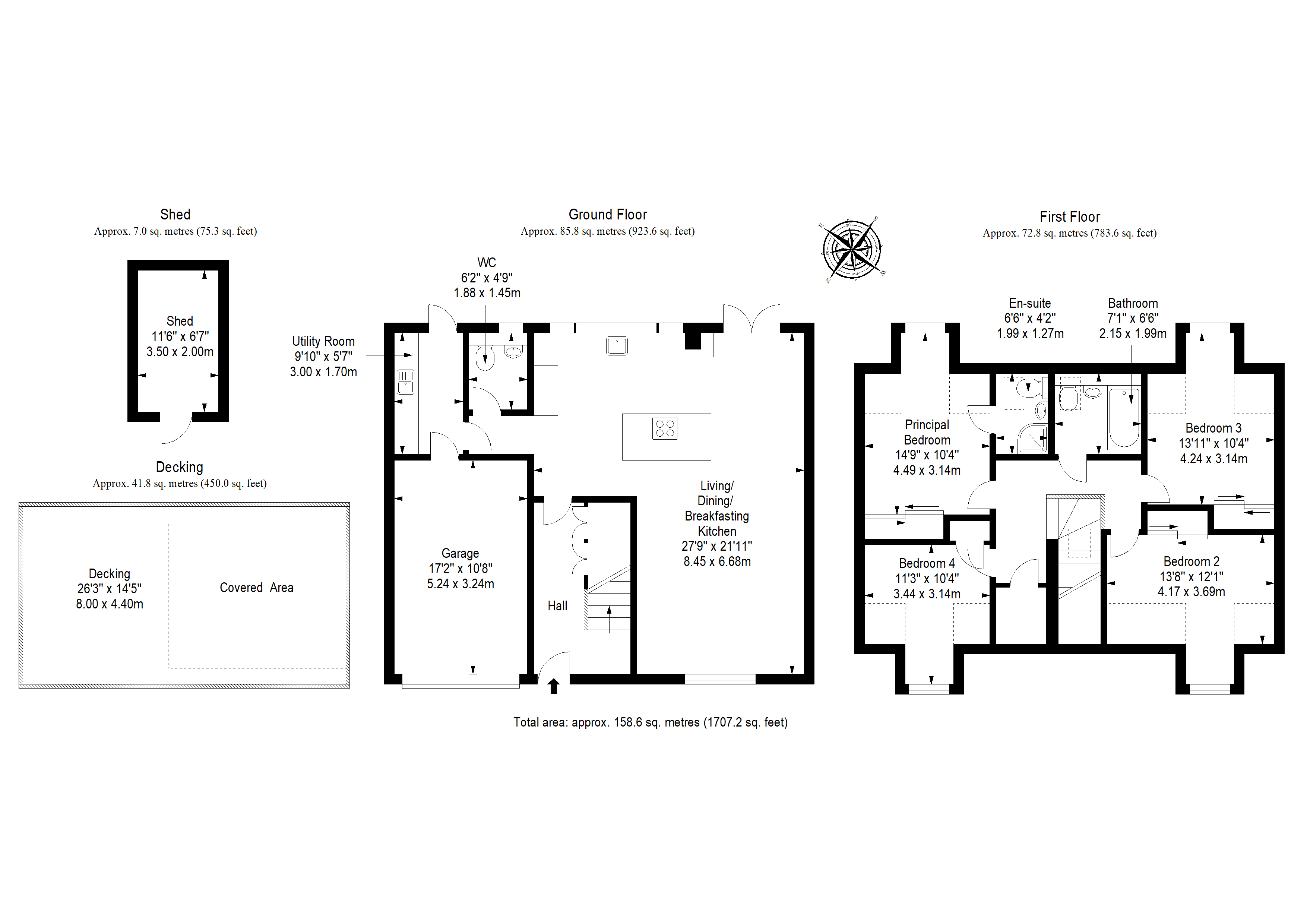
With its sought-after rural village setting, within easy reach of Carnoustie, this generous detached house represents an ideal family home. The home includes four bedrooms and a carpeted living room open to an ultra- modern breakfasting kitchen with space for seated dining and French doors to the garden. It also benefits from a family bathroom with an overhead shower, an en- suite shower room and a utility room with a guest WC. Outside, the property comes with ample private parking, including a paved driveway with space for up to three cars, a single garage and an enclosed rear garden with a south easterly aspect, a spacious, covered wooden deck and a shed for storage.
Extras: All fitted floor and window coverings, light fittings and kitchen appliances are included in the sale.
Read moreKey Features
Detached house in Muirdrum
Entrance hall with built-in storage
Sunny open-plan living/dining/breakfasting kitchen
Sun-facing main bedroom with a wardrobe & ensuite
Three more bedrooms with wardrobes
Modern family bathroom
Convenient utility room and WC
Private rear garden with shed, covered deck
Multi-vehicle driveway and garage parking
Oil-fired central heating and double glazing; EPC C
- Council Tax: Band E
- Freehold





















