3 Bedrooms, Offers Over £255,000
15 Braes of Gray Place, Dundee DD2 5FU
321
Features & Description
Property Description
HOME REPORT VALUE £260,000
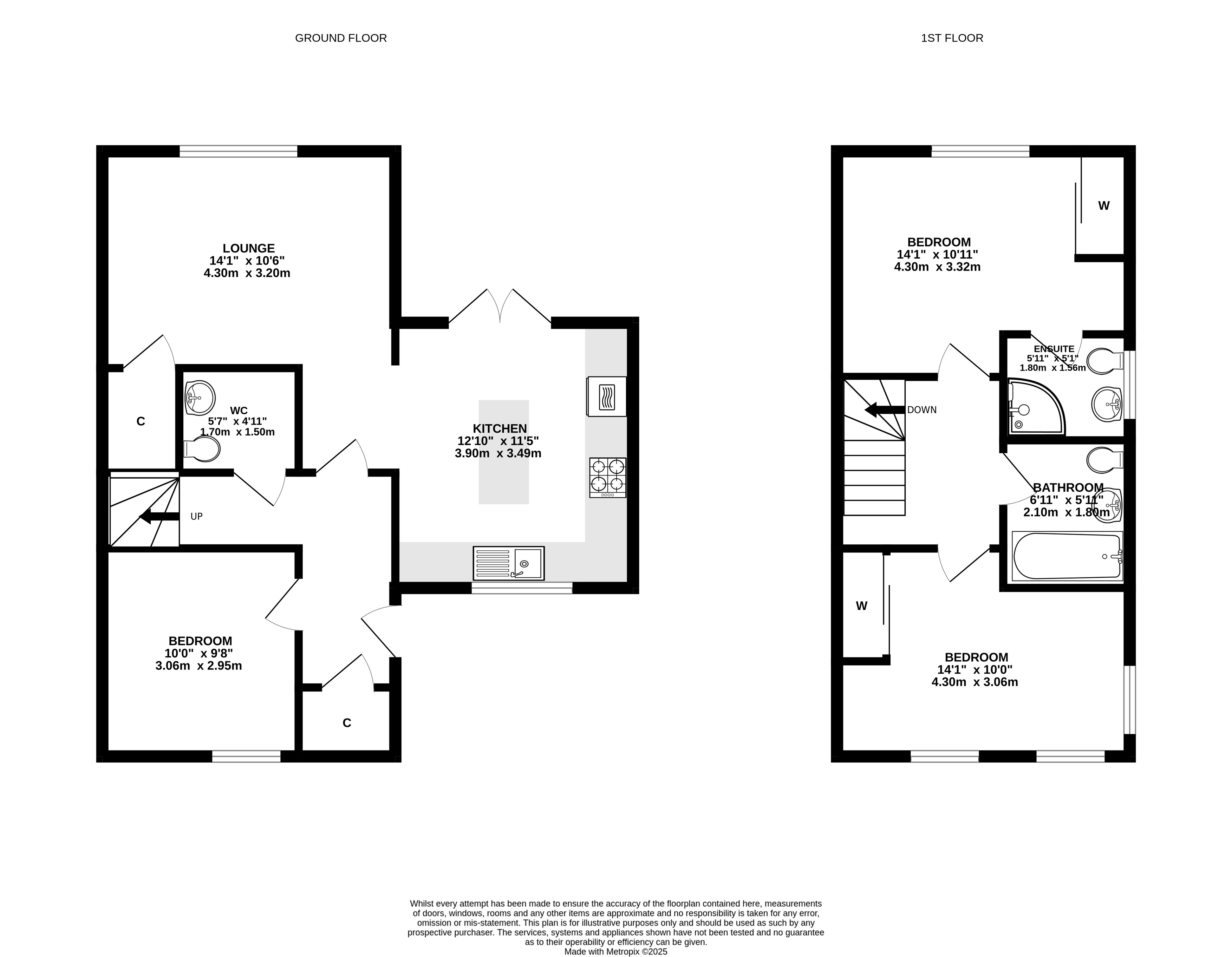
Located in a popular and well-established residential development, this beautifully presented modern link-detached villa offers spacious and stylish accommodation ideally suited to families and professionals alike. The property is maintained to an immaculate standard throughout, showcasing a bright and welcoming lounge, a contemporary breakfasting kitchen, and three well-proportioned bedrooms.
Externally, the home benefits from allocated parking spaces to the rear, ensuring convenience for residents and visitors. The fully enclosed rear garden provides a safe and private outdoor space, perfect for children, pets, or entertaining. Situated in a desirable part of Dundee with excellent local amenities and transport links nearby, this superb home offers comfort, space, and modern living in equal measure.
Read moreKey Features
Link-Detached Villa
New Development
Lounge
Breakfasting Kitchen
Three Bedrooms
En-suite
Family Bathroom and Downstairs WC
GCH; DG; EPC - B
Fully enclosed rear garden
Two allocated parking spaces to rear
- Council Tax: Band D
- Freehold























