1 Bedroom, Offers Over £70,000
2/l, 50, Provost Road, Dundee DD3 8AH
111
Features & Description
Property Description
This is an excellent opportunity to purchase a second-floor apartment in a popular residential location. Provost Road is ideally placed for a wide range of amenities including shops, schooling, leisure facilities and excellent commuter transport links.
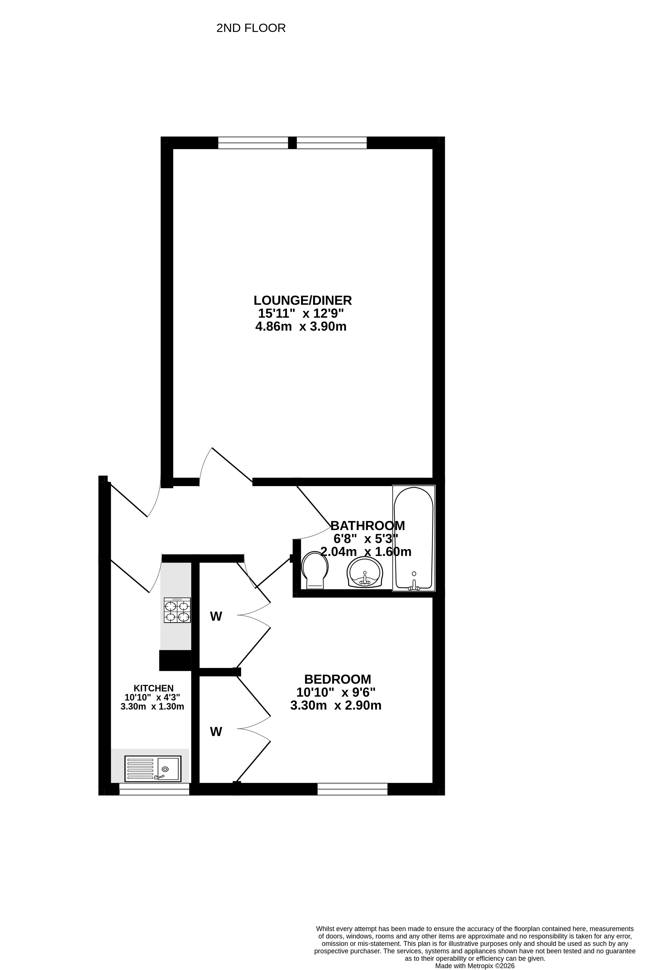
The subject property has been fully renovated and offers comfortable accommodation which comprises: bright spacious lounge with traditional features, modern kitchen with a range of wall and base units, bathroom with three-piece suite and well-proportioned double bedroom.
Practical attributes includes double glazing, electric heating and ample storage facilities.
Externally the property benefits from on-street parking and communal garden grounds.
This is an ideal buy-to-let investment or first time buy and early viewing is highly recommended.
Read moreKey Features
Second Floor Apartment
Popular Location
Lounge
Kitchen
Modern Bathroom
Double Bedroom
DG & ECH
Shared rear garden
On- Street Parking
EPC D
- Council Tax: Band A
- Freehold








