1 Bedroom, Offers over £75,000
3/1, 1, Thornbank Street, Dundee DD4 6HT
111
Features & Description
Property Description
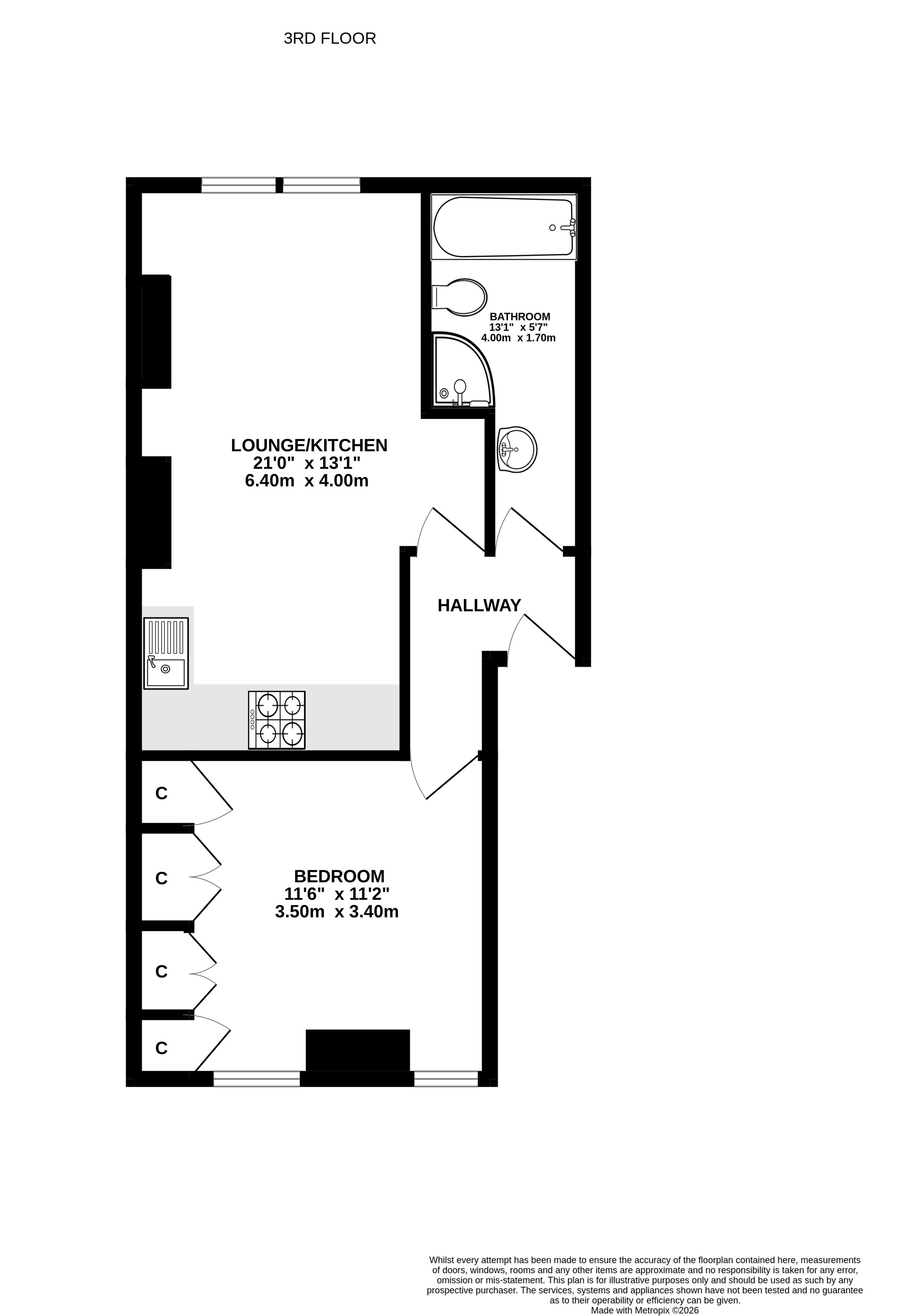
Attractive Top Floor Flat situated within a popular residential area, convenient for a wide range of local amenities including public transport with direct access to the city centre, schools, shopping facilities and Baxter Park.
The property which benefits from double glazing and gas central heating ,enjoys views from the front elevation towards River Tay, Broughty Ferry Castle and Fife hills beyond. Accommodation comprises hall, open plan lounge/ dining kitchen with views over the Tay, wall mounted and base units, contrasting work surfaces, oven, hob, extractor, ample space for occasional furniture and dining table, double bedroom located to the rear with fitted wardrobes, bathroom with three piece suite, additional shower area.
Viewing is highly recommended to appreciate this well presented home.
Read moreKey Features
Top Floor Apartment
River Views Towards Broughty Ferry
Popular Residential Area
Convenient For Local Amenities
Open Plan Lounge/Dining Kitchen
Double Bedroom, Fitted Wardrobes
Bathroom With Separate Shower Area
Double Glazing, Gas CH
Viewing highly recommended
EPC C
- Council Tax: Band A
- Freehold
















