3 Bedrooms, Offers Over £170,000
11 Ashkirk Gardens, Dundee DD4 0TL
311
Features & Description
Property Description
This modern, semi-detached property is located in a popular development of similar yet varied style of homes. Ideally located for public transport, educational amenities and shopping facilities.
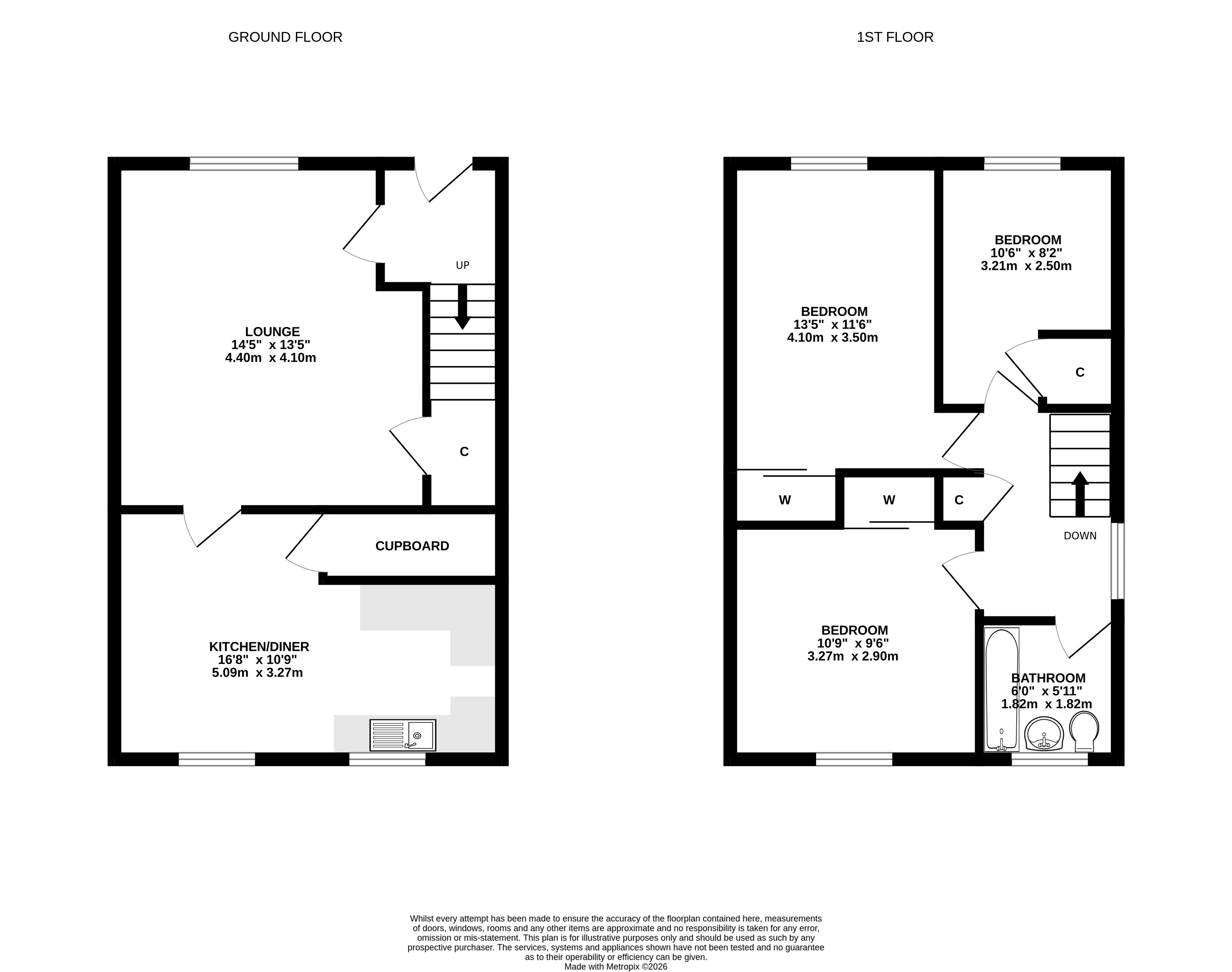
The property which benefits from gas central heating offers accommodation over two levels comprises hall with stairs leading to upper floor, bright spacious lounge with ample space for occasional furniture, window overlooking garden, newly installed modern kitchen with ample space for dining table, door leading to rear garden, upper hall with side facing window and storage cupboard, two double bedrooms, one single bedroom and family bathroom.
There are gardens to both the front and rear, the latter offers a spacious enclosed area, driveway to front.
The property is considered suited to a variety of buyers and viewing is highly recommended.
Read moreKey Features
Spacious Semi Detached Villa
Popular Residential Area
Hall; Lounge
Dining Kitchen
Three Bedrooms
Bathroom
GCH; EPC - D
Gardens Front & Rear
Driveway To Front
Viewing highly recommended
- Council Tax: Band D
- Freehold














