3 Bedrooms, Offers Over £115,000
9 Lewis Terrace, Dundee DD4 9SR
311
Features & Description
Property Description
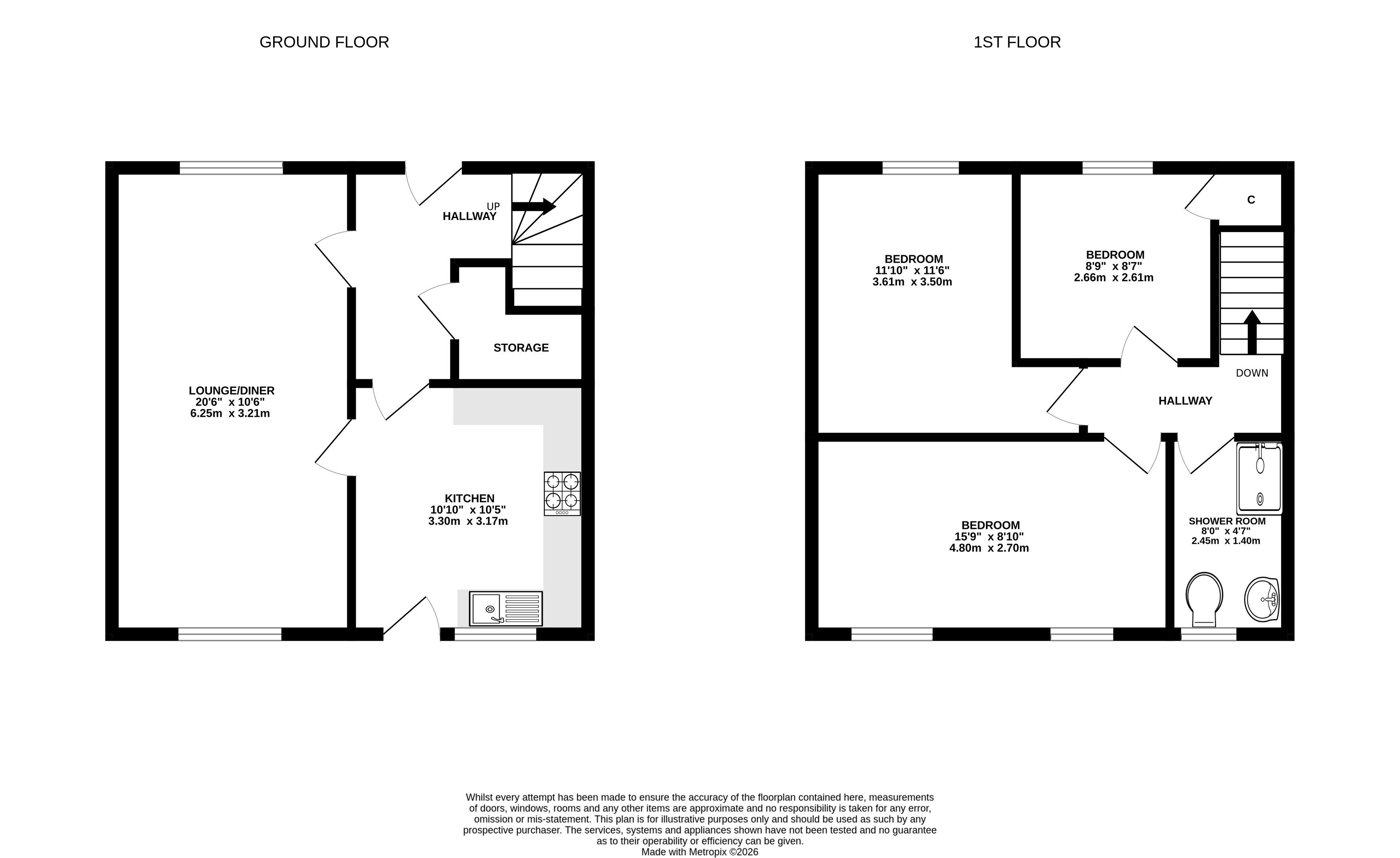
Spacious end-terraced villa located within a in a popular residential area, convenient for a wide range of local amenities including schools, public transport and shopping facilities.
This property which benefits from double glazing and electric heating comprises: hall with stairs leading to upper floor with storage cupboard below, bright spacious lounge/dining room with windows to both the front and rear, ample space for both occasional furniture and dining table, door leading to kitchen, kitchen with a range of wall and base units, oven hob, extractor, access to garden, upper hall with access to three well appointed bedrooms and shower room.
Externally the property benefits from well maintained gardens to both the front and rear.
Viewing is highly recommended.
Read moreKey Features
End Terraced Villa
Popular Residential Area
Convenient For Local Amenities
Hall. Lounge/Dining Room, Kitchen
3 Bedrooms, Shower Room
Electric Heating; DG; EPC - F
Gardens Front & Rear
Ideal first time purchase
Viewing Highly Recommended
- Council Tax: Band B
- Freehold













