5 Bedrooms, Offers Over £550,000
13 Duntrune Terrace, Broughty Ferry, Dundee DD5 1LF
523
Features & Description
Property Description
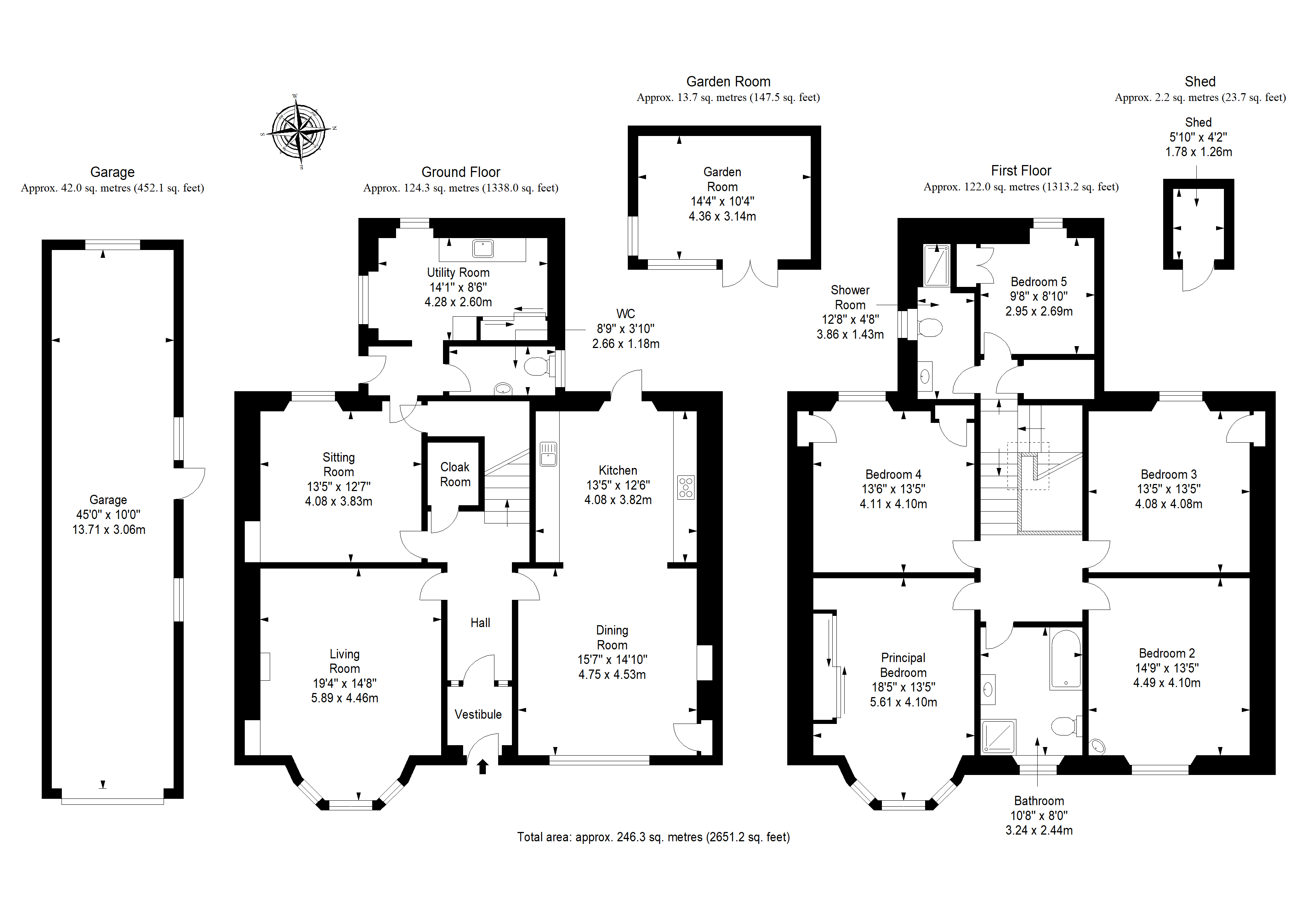
Set within generous grounds with attractive gardens and gated private parking, this imposing Victorian villa in the highly sought-after coastal suburb of Broughty Ferry offers an exceptionally well-proportioned family home. Filled with natural light and retaining authentic charm, the beautifully modernised interiors provide five bedrooms and three reception rooms, one open-plan to the kitchen which flows onto the secure rear garden. Catering to everyday needs and busy schedules, the accommodation includes a four-piece bathroom, a shower room, a guest WC, and a utility room. A stylish garden room and large garage, both with power and light, offer flexible multi-use spaces ideal for a relaxing retreat, gym, or quiet home office.
Magnificent period family home in coastal Broughty Ferry
The stone-built semi-detached residence lies within the leafy West Ferry Conservation Area, close to well-regarded schools, open green space, local shops, and Broughty Ferry train station, all reachable on foot. Rail services into central Dundee take less than ten minutes, while the scenic sandy beach lies under two miles away, offering an appealing balance of coastal living and city convenience.
A characterful entrance to the home
A vestibule opens into a bright, inviting hallway complete with a cloakroom. The home’s sense of space and classic character is immediately apparent, with crisp white décor, wall panelling, soft damask wallpaper, stained glass detailing, and warm timber flooring. A cohesive muted palette and naturally toned finishes continue throughout the interior.
Sociable reception spaces
Three versatile reception rooms cater comfortably to family life and entertaining. The elegant bay-fronted living room features a decorative cornice and a contemporary Contura 310G log-burner, flanked by a shelved display recess. To the rear, the sitting room provides a relaxed family space with built-in storage, a further shelved recess, and garden access. Open to the kitchen, the generous dining room forms a natural hub for gatherings and everyday meals, centred around a charming cast-iron fireplace.
Light-filled kitchen opening onto the garden
The wide galley kitchen is stylishly finished in white, pairing contemporary cabinetry with luxury Corian work surfaces, open shelving, and a sink with a boiling water mixer tap. Appliances include a gas range cooker with metro-tiled splashback and chimney-style hood, an integrated microwave, and a semi-integrated American-style fridge freezer, with space for an under-counter dishwasher.
An attractively tiled ground-floor utility room with garden access provides a discreet laundry area with extensive fitted units, a Belfast sink, ceiling-mounted clothes pulley, and space for freestanding appliances.
Beautiful bedrooms
Five spacious bedrooms are arranged across the first floor, reached via a naturally lit landing with built-in storage. Carpeting features throughout, with the exception of the impressive principal bedroom, which boasts oak-style flooring, a wide bay window, and elegant bird-motif wallpaper. Storage includes a fitted wardrobe in the principal bedroom, built-in cupboards in two further doubles and the rear-facing single, plus a wash basin in the fourth double bedroom.
Multiple bathroom conveniences
The first floor is served by a contemporary shower room with a digital rainfall shower, and a traditional-style family bathroom featuring a bath and a separate digitally controlled, remote-operated shower. A bright ground-floor WC completes the accommodation.
Generous gardens with a powered garden room
The extensive three-sided grounds include neatly lawned gardens with mature borders. To the enclosed rear, a pergola-topped deck creates an inviting outdoor dining space, alongside a timber garden room with power and light, ideal as a home office or sheltered retreat.
Outstanding private parking
A gated tarmac driveway leads to a long detached single garage, offering excellent private parking and a versatile powered space currently arranged as a home gym.
Extras
The sale includes fitted flooring, window coverings, light fittings, and kitchen appliances, excluding the dishwasher. The bespoke dining table is available by separate negotiation.
Area Broughty Ferry, Dundee Some four miles east of Dundee on the north bank of the Firth of Tay, Broughty Ferry promises the best of both worlds: a coastal lifestyle with the vibrant city on its doorstep. During the Industrial Revolution, when Dundee established its wealth in ‘jute, jam and journalism’, the former fishing and whaling village of Broughty Ferry was transformed into one of the most affluent suburbs in Europe, which accounts for its rich stock of grand detached villas and mansion houses. The seaside resort remains a popular tourist attraction today, with visitors drawn to its long, sandy beach and esplanade, 15th-century Broughty Castle, and its array of fashionable eating and drinking spots. Broughty Ferry enjoys all the local amenities you would expect of a small town, which are supplemented, of course, with world-class shopping, culture, and heritage in Dundee. The UK’s first UNESCO City of Design, Dundee was also named Best Place to Live in Scotland 2019 by The Sunday Times. In addition to excellent road (and public bus) links for local and national travel, Broughty Ferry station operates regular services to Dundee and further afield to Aberdeen, Arbroath, and Edinburgh. Daily flights and direct trains to London are also available from Dundee Airport and Dundee train station, respectively. Broughty Ferry offers education at all levels, with nursery schools, three primary schools, and a secondary school. Independent schooling and childcare options are also available nearby, including the prestigious High School of Dundee.
Read moreKey Features
Substantial Victorian semi-detached villa
Light-filled contemporary interiors retaining period charm
Prestigious West Ferry Conservation Area address
Within walking distance of schools, local shops, and the train station
Scenic sandy beach under two miles away
Elegant bay-fronted living room with decorative cornice and log-burning stove
Relaxed rear sitting room with built-in storage and garden access
Generous dining room open to the kitchen, featuring a period fireplace
Stylish high-end galley kitchen with garden access
Bright utility room with garden access
- Council Tax: Band G




























