2 Bedrooms, Offers Over £250,000
12 Bughtlin Market, Edinburgh EH12 8XP
211
Features & Description
Property Description
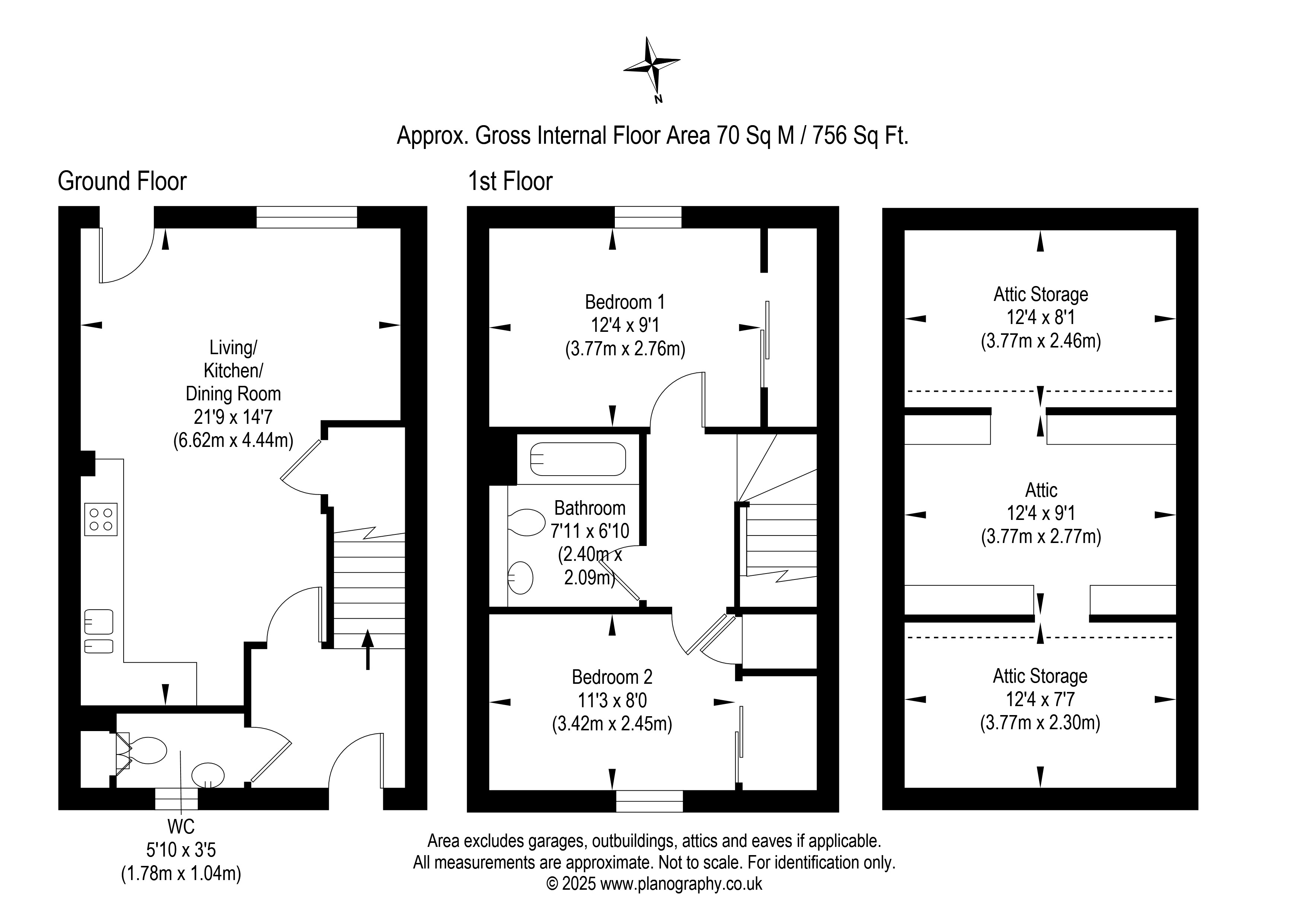
Nestled in a quiet residential setting in the sought-after East Craigs area of Edinburgh, this beautifully presented two-bedroom home offers contemporary comfort, flexible accommodation, and excellent local amenities. The property features a spacious open-plan living/kitchen/dining area on the ground floor offering direct access to an attractive, and easily maintained south facing garden. A welcoming hallway and handy WC completes the ground floor accommodation. Upstairs, there are two generously sized bedrooms and a well-appointed family bathroom. The attic level provides excellent additional space for storage with further benefits including gas central heating, double glazing and an allocated parking space.
East Craigs is a well-established residential suburb in west Edinburgh, popular with families and professionals for its peaceful atmosphere, convenient amenities, and excellent connectivity. The area benefits from several local shops, cafés, and supermarkets, while The Gyle Shopping Centre is just a short drive away. Nearby schools include East Craigs Primary and Craigmount High School, both well-regarded. Outdoor lovers can enjoy nearby Corstorphine Hill, Cammo Estate, and local parks. For commuters, the area is extremely well-served by public transport with regular bus services to the city centre, easy access to the City Bypass and M8, and close proximity to Edinburgh Park and Edinburgh Gateway train stations, offering swift connections across the city and beyond.
Read moreKey Features
Terraced villa with attractive south facing garden
Popular East Craigs location
Quiet residential setting
Walking distance to schools, parks, and shopping facilities
Welcoming hallway with WC off
Spacious open-plan living/kitchen/dining
Two comfortable double bedrooms
Contemporary family bathroom
Excellent storage throughout including attic space
GCH; DG; EPC - B
- Council Tax: Band E
- Freehold















