3 Bedrooms, Offers over £175,000
Westmount Villa, Hillside, Montrose DD10 9JW
311
Features & Description
Property Description
This is a rare opportunity to acquire a spacious detached villa located in the highly sought-after residential area of Hillside, Montrose. Ideally positioned, the property offers convenient access to a wide range of local amenities including schools, shops, leisure facilities, and excellent transport links via both bus and train.
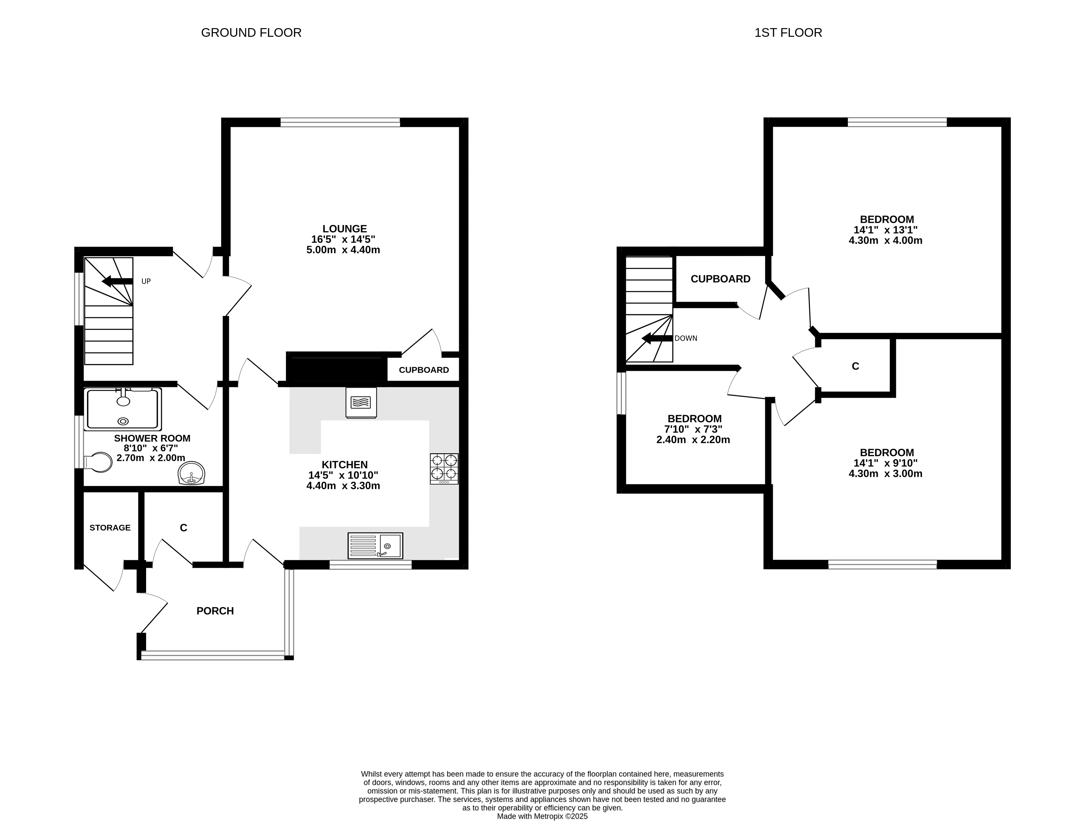
Westmount Villa provides generous and flexible accommodation, with scope for modernisation to suit individual tastes. The layout comprises a welcoming entrance hallway, a rear porch, a bright and airy lounge with open views to the front, and a kitchen/dining area fitted with both wall and base units. The ground floor also includes a wet room with wet-wall fittings and a separate WC. Upstairs, there are three well-proportioned bedrooms offering comfortable living space.
Additional features include gas-fired central heating, double glazing, and attractive wood-panelled doors throughout.
Externally, the property enjoys well-maintained garden grounds with a lawn, drying area, patio, and an external store. A private driveway and single garage provide ample off-street parking.
This home will appeal to a wide range of buyers, and early viewing is strongly recommended to fully appreciate the potential on offer.
Read moreKey Features
Detached Villa
Sought After Location
Lounge
Kitchen/Dining
3 Bedrooms
Wet Room & W/C
GCH; DG; EPC - D
Gardens
Drive; Garage
Council Tax Band C
- Council Tax: Band C
- Freehold
















