Plot 15, Downfield Development, Camperdown Road, Dundee DD3 8QZ
Thorntons is delighted to offer a newly built semi-detached three bedroom villa in the much sought-after Downfield area of Dundee. Ideally located for easy access to schools, shops and bus routes.
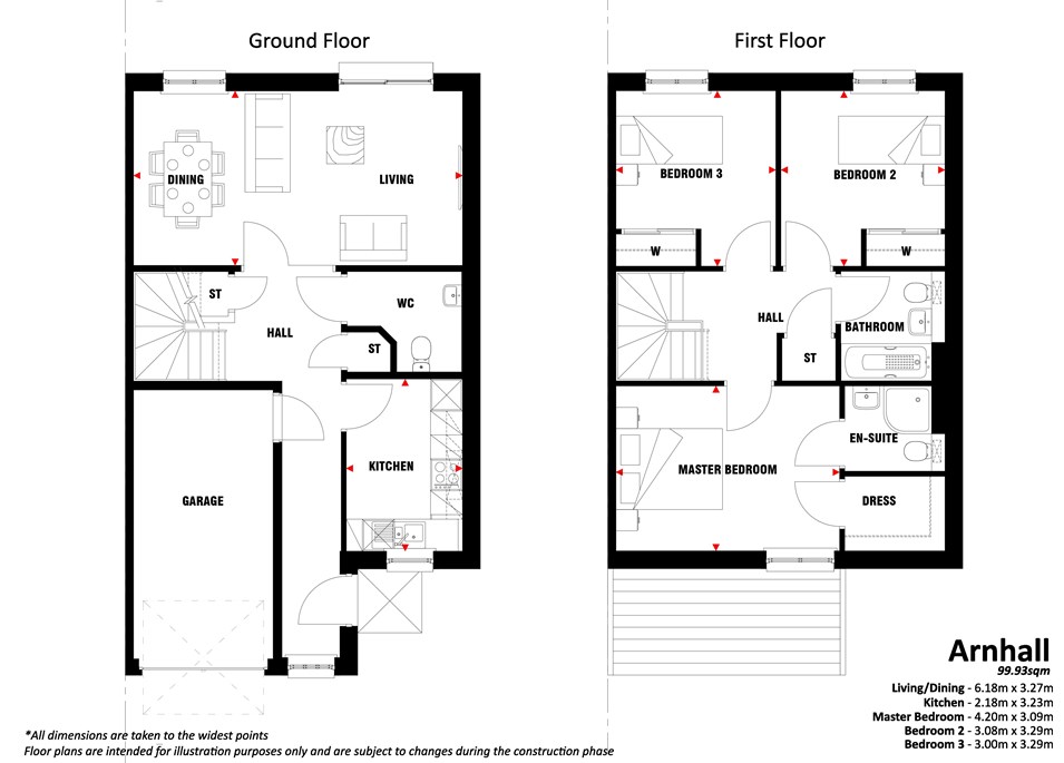
Built by H&H Developers a well-respected and established developer firm with over 30 years of experience in building quality houses. Features include a spacious Lounge/ dining room, fitted kitchen, en-suite shower room, family bathroom and ground-floor level WC. wardrobes in all bedrooms.
There is a spacious garden, a car parking drive and integral garage.
Read more
New Build Essentials
Help to Buy
Whether you're a first time buyer or you're looking to move on Help to Buy could be the answer.
Find out more
Whether you're a first time buyer or you're looking to move on Help to Buy could be the answer.
Reservation from Plan
Secure a New Build Home at an agreed Fixed Price from Plan
Find out more
Secure a New Build Home at an agreed Fixed Price from Plan
Marketing New Build Homes
Where to look for New Build Property and advertise houses & sites for sale.
Find out more
Where to look for New Build Property and advertise houses & sites for sale.

