6 Bedrooms, Offers Over £750,000
7 Ellice Place, St Andrews KY16 9HU
621
Features & Description
Property Description
CLOSING DATE - FRIDAY 24TH APRIL AT 12.00
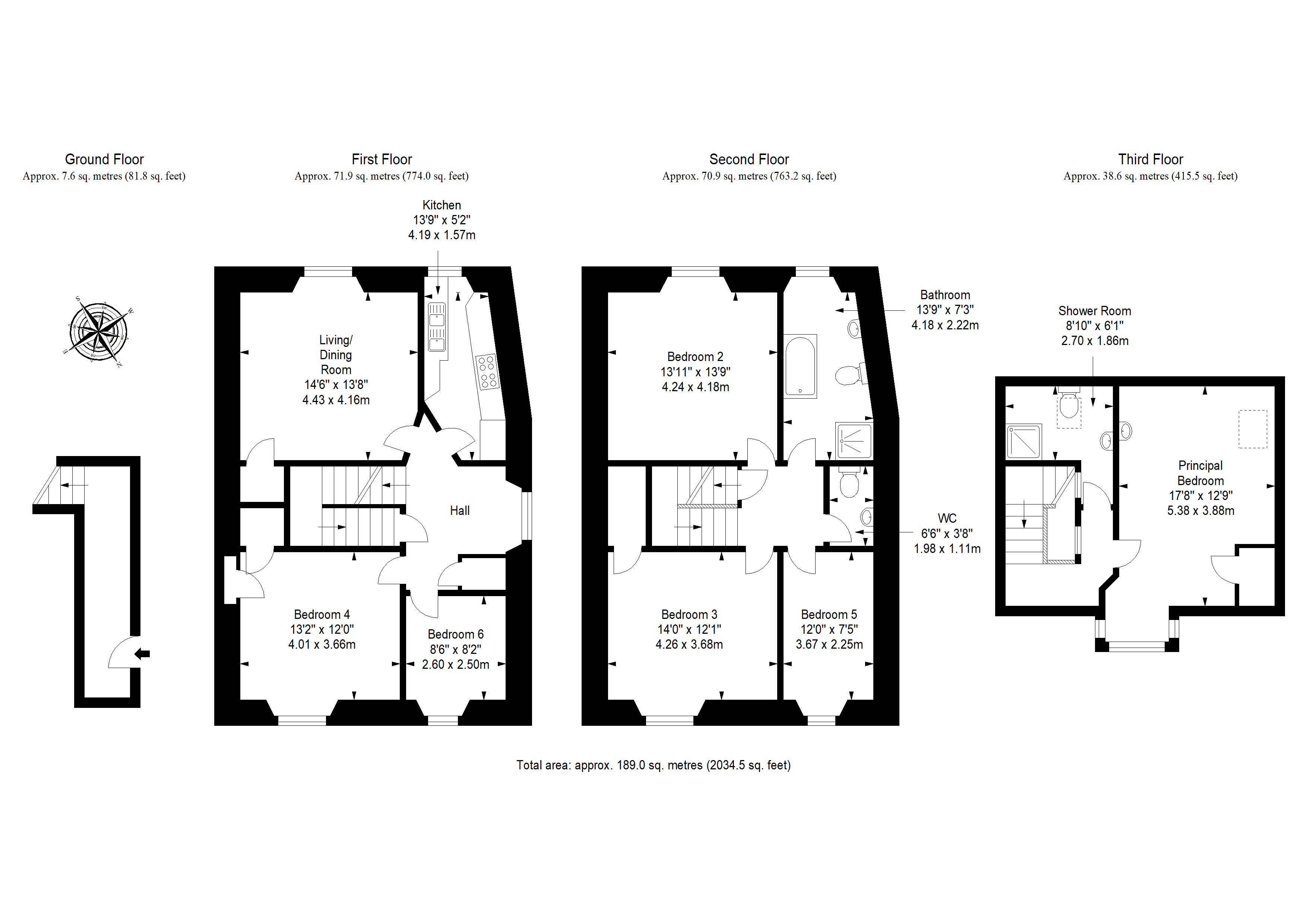
Situated in the heart of historic St Andrews, this spacious upper villa, with a current HMO licence for 6 persons, forms part of a traditional stone building and offers characterful interiors over three floors. The home features an elegant living and dining room with period cornicing, a compact galley kitchen, and six bedrooms, including an impressive principal suite on the top floor, all served by a shower room, a bathroom and a WC. With its central location close to shops, cafés, the university, and the famous beaches and golf courses, the property represents a superb opportunity for family living, investment, or student accommodation.
Extras: All fitted floor and window coverings and light fittings are included, whilst most of the furniture and contents are available through separate negotiation.
Read moreKey Features
Three-storey upper villa in sought-after St Andrews
Prime central location close to shops, cafés, university, and beaches
Current HMO licence for 6 persons, expiring 2027
Elegant living and dining room
Contemporary galley kitchen with storage
Secluded principal bedroom with adjoining shower room
Five further bedrooms of which 3 are doubles and 2 single
Family bathroom and convenient guest WC
GCH, DG and EPC - C
Regulated parking on surrounding streets
- Council Tax: Band F
- Freehold






















