4 Bedrooms, Offers Over £80,000
12 & 12B, Brothock Bridge, Arbroath DD11 1NG
423
Features & Description
Property Description
Development Opportunity – Two Spacious Period Flats Sold as One Project
This is a rare and exciting opportunity to acquire two generously proportioned period flats as part of a full development project, located in a popular residential area with excellent access to local amenities, public transport including a nearby train station, and recreational facilities.
Both properties offer characterful accommodation with scope for upgrading, making this an ideal investment for developers, buy-to-let investors, or buyers seeking a multi-unit home.
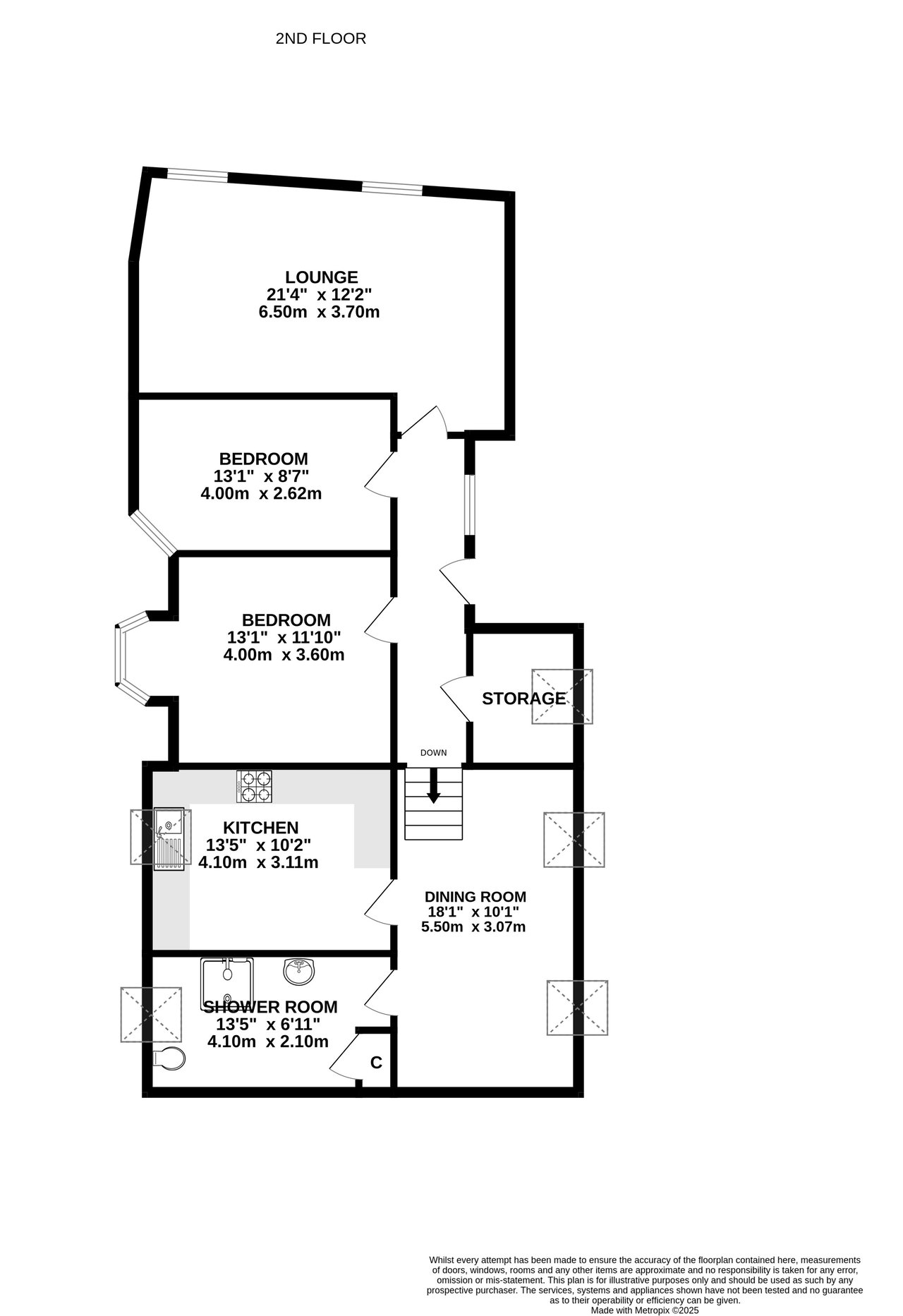
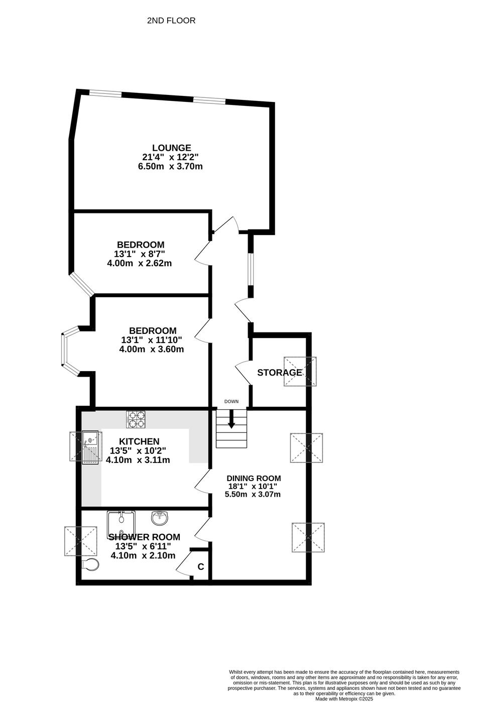
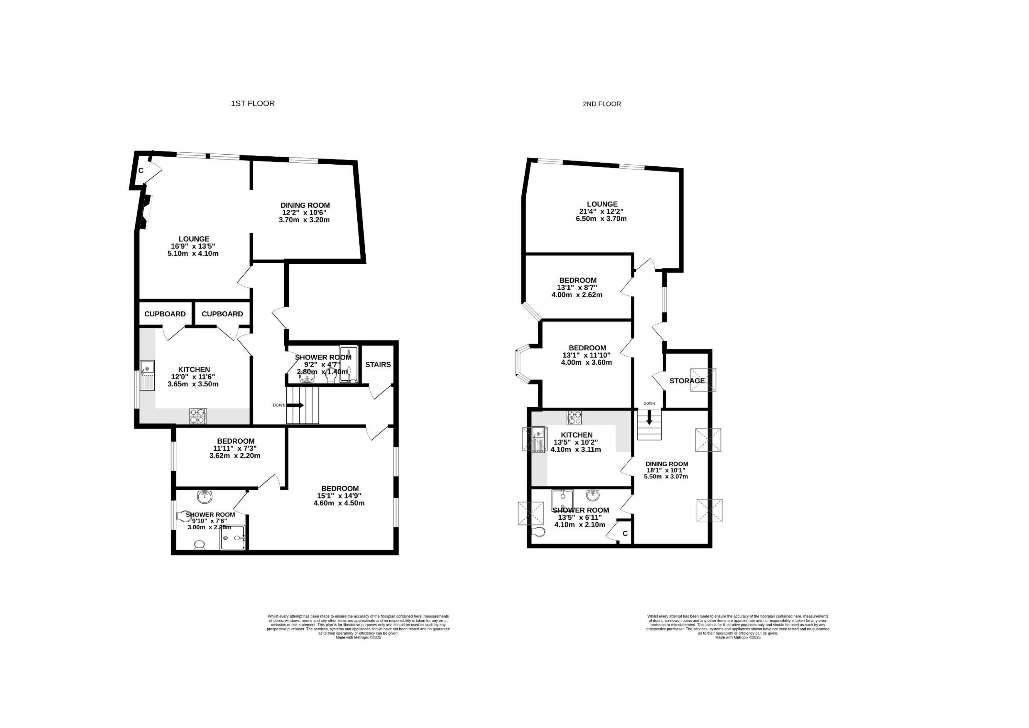
The attic apartment features an entrance hallway with storage, a bright lounge, a kitchen fitted with wall and base units, a family room, two carpeted bedrooms, and a partially tiled shower room. The upper apartment comprises an entrance hallway, a spacious lounge with feature cornicing, a kitchen with wall and base units, a dining room, a shower room with heated towel rail, and two well-proportioned bedrooms, including a master with en-suite facilities.
Shared benefits across both flats include double glazing, gas central heating, wood panelled doors, excellent storage throughout.
This development offers flexibility and strong investment potential, whether you're looking to renovate and resell, rent out both units, or occupy one while letting the other. Early viewing is highly recommended to appreciate the scope and value of this unique offering.
Rooms
- Lounge: 16' 9" x 13' 1" (5.11m x 3.99m)
- Dining Room: 11' 1" x 11' 1" (3.38m x 3.38m)
- Kitchen: 11' 9" x 11' 8" (3.58m x 3.56m)
- Shower Room: 8' 4" x 4' 2" (2.54m x 1.27m)
- Bedroom: 15' 4" x 14' 0" (4.67m x 4.27m)
- Bedroom: 12' 0" x 7' 8" (3.66m x 2.34m)
Key Features
Two spacious period flats sold together as one development project
Ideal for developers, investors
Popular Central Location
Upper Apartment & Attic Flat
DG GCH
Council Tax Band B
Each Apartment has 2 Bedrooms
No Home Reports
- Freehold





















