Offers in Region of £395,000
Development Opportunity Slade Farm, Carmyllie, Arbroath DD11 2RE
Features & Description
Property Description
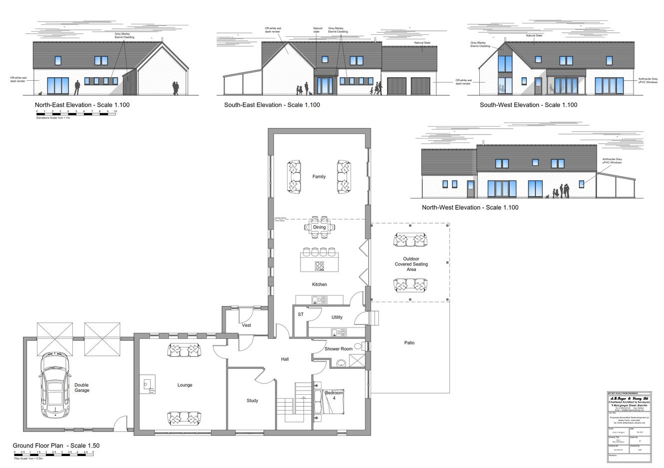
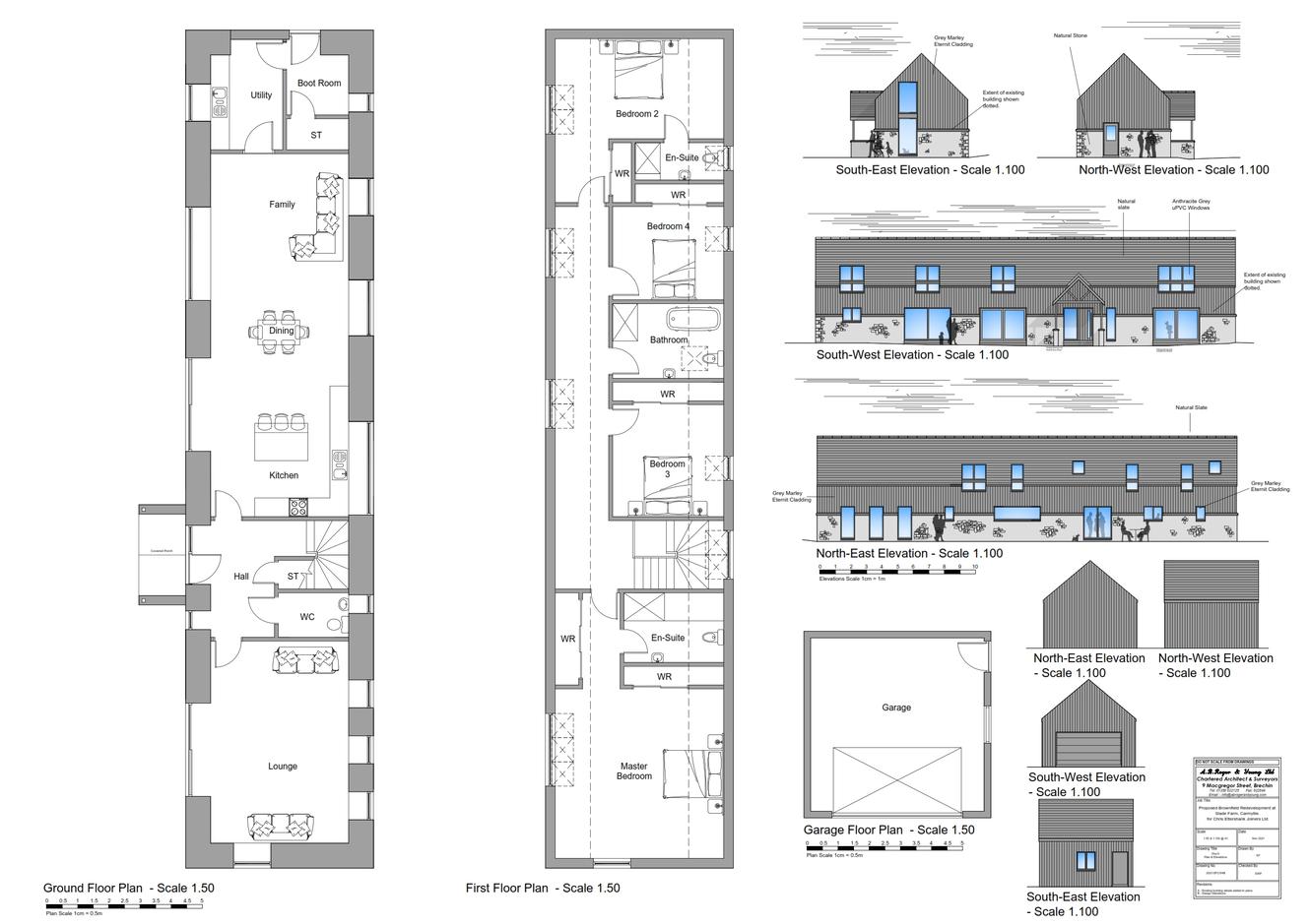
5 LUXURIOUS BUILDING PLOTS WITH FULL PLANNING
Thorntons are pleased to offer to the market for sale an exclusive development opportunity with planning approval in place for the erection of five large individual and unique, detached dwellings each set within generous-sized plots. An additional benefit for developers or investors to consider is the access road to the site has been recently upgraded with passing places installed, in addition, each plot drive and the plot areas are established, and the plot location is now clearly identifiable. QR codes are available to view on site and the website each showing the street view and where the individual dwellings sit in the development. Utility quotes and plans have been obtained by the current owner and are available on request.
Please copy & paste this link to access the virtual tour - https://webobook.com/tour/B_fK545qsda_dTrs-zH5EUfbMWgS5IJT/d_gf9mBlYBXfQOyQVIbICOHcd9x0OO7b
The plot areas are from 1400m² up to 4525m² whilst the five houses range in size from 249m² up to 293m² with an average garage size of around 30m². Electricity and water are located nearby, drainage is via a SUDS pond and septic tanks that are required to be installed.
Located in an idyllic rural setting with private woodland, Carmyllie is a 10-minute drive northwest of the town of Arbroath. Carmyllie is also within an approximately 15-minute drive to the larger towns of Brechin, Forfar, and the City of Dundee.
Within the surrounding Angus townships, there are mainline railway stations that all provide main links to Dundee, Aberdeen, Edinburgh, and Glasgow as well as further afield.
For further information or to arrange a viewing contact Thorntons New Homes Team at newhomes@thorntons-law.co.uk or telephone 01382 200099 and ask to be transferred to Natalie or Tracy in the New Homes Team.
Important Notice: These sale particulars were prepared based on information provided to us by our clients and/or our local knowledge. Whilst we make every reasonable effort to ensure that they are correct, no warranty or guarantee is given, and any prospective purchaser should not rely upon them as statements or representations of fact. Furthermore, neither Thorntons LLP nor its partners or employees assume any responsibility, therefore. Any photographs included in these particulars are for general information. Some images may be computer-generated and are for illustration purposes only. Any descriptions, measurements, or dimensions quoted are approximate only and references to conditions, planning permissions, services, usage, construction, fittings and fixtures, and moveable items are for guidance only.
Read moreKey Features
5 substantial Detached dwellings
Angus Council Planning Ref: 21/00889/FULL
Generous Sized Plots
Development Site 1.69 Acres
Whole Site Area 4.63 Acres
Services With Water and Electricity Supply
- Freehold




















