6 Bedrooms, Offers Over £600,000
Brucefield Cliffburn Road, Arbroath DD11 5BS
673
Features & Description
Property Description
Introducing Arbroath’s only 5-star Gold boutique B&B: an incredible six-bedroom manor house built-in the 1920s, which blends traditional character with stylish contemporary interiors that are designed to offer the very best.
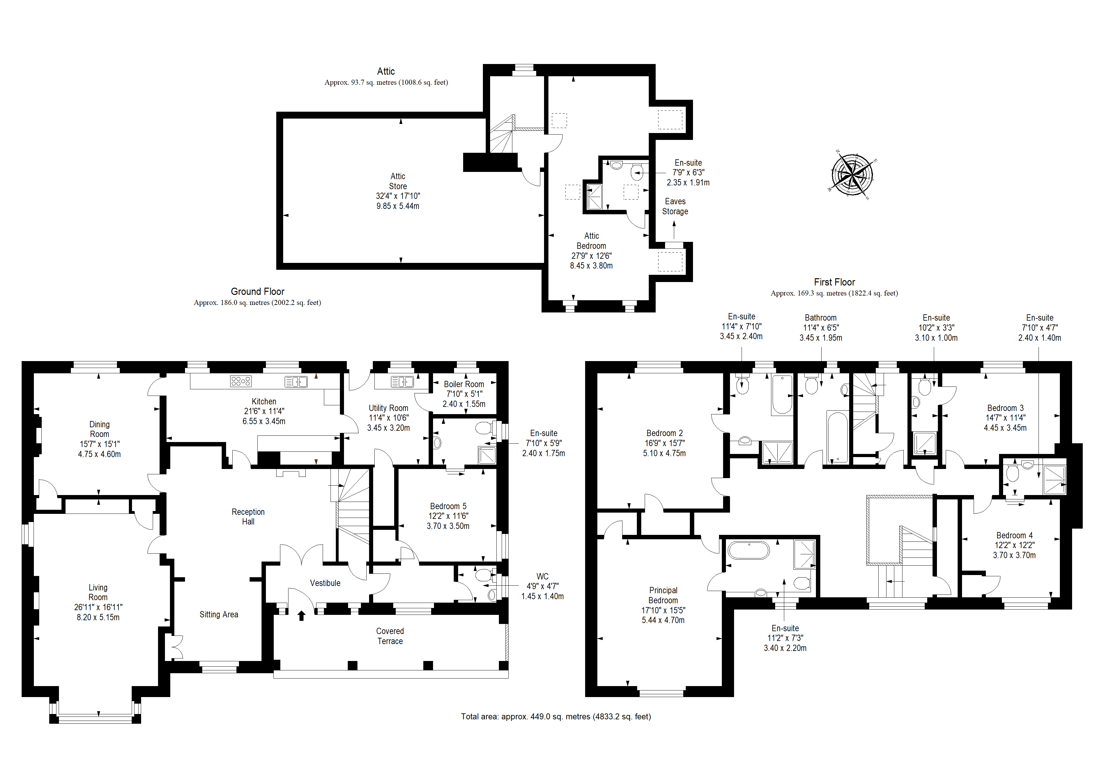
Covering over 4833 square feet, Brucefield Boutique B&B is a truly stunning commercial property that offers a tremendous amount of space, with three reception areas, six bedrooms, and seven bathrooms (plus a WC). The large, light-filled rooms enjoy high ceilings and a host of original details, all impeccably presented to exceptionally high standards with sumptuous interior design and luxurious finishings. Every attention to detail has been catered to, ensuring it maintains its 5-star Gold approval rating. In addition, it further boasts fully-enclosed wraparound grounds which incorporate generous private parking and a huge, suntrap garden. Just a stroll from the town centre and important historical sites, like Arbroath Abbey, the B&B has a highly convenient (and coveted) setting that is ideal for holidaymakers. Beautiful sandy beaches are within walking distance and the countryside is practically around the corner, further increasing the appeal of this rarely available and exclusive property. This lucrative business is being sold by the current owners due to retirement and is sold fully furnished (minus a select few items) to provide a true turn-key opportunity. Occupancy rates and accounts can also be provided to interested parties at the request of their solicitor.
Entrance – Welcome to Brucefield Boutique B&B
Inside the B&B, you are greeted by a naturally-lit vestibule where double doors make a grand entrance into the spacious reception hall. Characterised by stylish decoration, ornate 1920s details, and oak flooring, it offers an unforgettable welcome and a taste of the exceptional accommodation to follow.
Reception rooms – Three highly inviting and sophisticated reception areas
There are three reception areas for guests to enjoy: an expansive living room with a box bay window and a handsome open fireplace; an elegant dining room with traditional-inspired styling; and a relaxed sitting area for unwinding with casual drinks. All three have built-in storage and all continue the oak floor. The spaces are characterful, highly inviting, and sophisticated, each adding to the regal charm of the property.
Kitchen – Superb practicality and style
The kitchen is generously appointed with wood-toned cabinets and solid granite worktops, providing superb practicality and style. It has room for an office area and comes very well equipped with a wide range of appliances, including a new gas range cooker (only one year old), an integrated dishwasher, and all freestanding white goods. It is supplemented by a separate utility room with further storage, a rear porch, and a boiler room.
Bedrooms – The ultimate in comfort and luxury
Offering the ultimate in comfort and luxury, the six bedrooms are all wonderfully large, accommodating super-king size, king size, or twin beds. They are beautifully presented too, pairing attractive neutral styling with thick carpets to ensure elegant sleeping environments that invite you to sit back and relax. Allowing guests to make the most of their stay, the rooms feature large flat-screen TVs, DVD/CD players, wireless broadband, and in-room fridges. In addition, every room boasts a modern en-suite shower room, except the expansive principal and second bedrooms which each have their own opulent four-piece en-suite bathroom, including a double-ended freestanding bathtub and separate shower cubicle. These two bedrooms (and bedroom five) also have built-in storage for added convenience.
The B&B has an excellent layout too. Four bedrooms are located on the first floor (off a galleried landing with ornate stained-glass windows), there is a room that is easily accessible on the ground floor, and, finally, a multi-aspect attic bedroom which is perfect as a space for the owners. There is also a substantial fully-floored attic store and eaves storage as well.
Bathrooms – Six luxurious en-suites, a communal bathroom, and a WC
In addition to the six en-suites, there is a ground-floor WC near the entrance and a first-floor communal bathroom, equipped with a quality three-piece suite and overhead shower.
Gas central heating and double-glazed windows ensure year-round comfort.
Garden & Parking – Impressive garden and parking space
Outside, a secure gated driveway leads to the B&B, where there is an extensive private parking area to the rear for several vehicles. The grounds are fully enclosed for safety and they include a massive front garden laid with a sprawling lawn fringed by mature plants and trees for a scenic ambience. Boasting a suntrap, southwest-facing aspect, this garden is a natural haven. The B&B also has a covered terrace for enjoying the outdoors all-year round.
Extras: the B&B is being sold fully furnished, including all fitted floor and window coverings, light fittings, gas range cooker, integrated dishwasher, and all freestanding white goods. Please note, only a select few items will not be included, such as the hall’s grandfather clock, the dining room clock, and certain sideboards.
Area
Arbroath, Angus
This historic estate of Letham Grange offers an idyllic rural setting just a short drive from the largest town in Angus, coastal Arbroath - home to the famous Arbroath Abbey, where the Declaration of Arbroath was signed in 1320, and the Bell Rock Lighthouse, Britain’s oldest offshore lighthouse. The town’s rich history and picturesque setting make it an attractive location for both tourists and residents alike. A wealth of amenities can be found in Arbroath, from independent retailers, boutiques, coffee shops, cafes, hairdressers, barbers, and beauty salons, to High Street stores, family-friendly restaurants, takeaways, and bars, and several large supermarkets. The town is also home to essentials such as a medical centre, pharmacies, dentists and a Post Office. Lovers of the outdoors are spoilt for choice in Arbroath, with the picturesque seafront on the doorstep, as well as a number of scenic parks, including Victoria Park, with paths leading out to the cliffs, boasting stunning views over the North Sea and as far as The Bell Rock Lighthouse on the horizon. Golfers can play at Arbroath Golf Links, while for those who prefer keeping fit indoors, there are several gyms in the town offering swimming facilities, fitness classes, well-stocked gyms, and sports pitches. Schooling is well-catered for, with several primary schools and High Schools, as well as Dundee & Angus College. Arbroath is very well connected to the rest of the county and further afield with its own train station, excellent bus links, and nearby major road links.
Read moreKey Features
An incredible 1920s manor house covering 4833 sq. ft.
Arbroath’s only 5-star Gold boutique B&B
Being sold fully furnished as a turn-key opportunity
Three Reception rooms
Well-appointed kitchen with granite worktops
Utility room with rear porch and boiler room
Six Bedrooms
Six en-suites; Bathroom; WC
Substantial floored attic store and eaves storage
GCH; DG; EPC - E
- Freehold



























