4 Bedrooms, Offers Over £175,000
47 Earl Matthew Avenue, Arbroath DD11 5JU
421
Features & Description
Property Description
This is a fantastic opportunity to purchase a well presented mid terraced townhouse located within a popular residential area, close to local shopping, public transport links and a range of recreational facilities. The property benefits from double glazing and gas central heating and offers spacious, bright accommodation throughout.
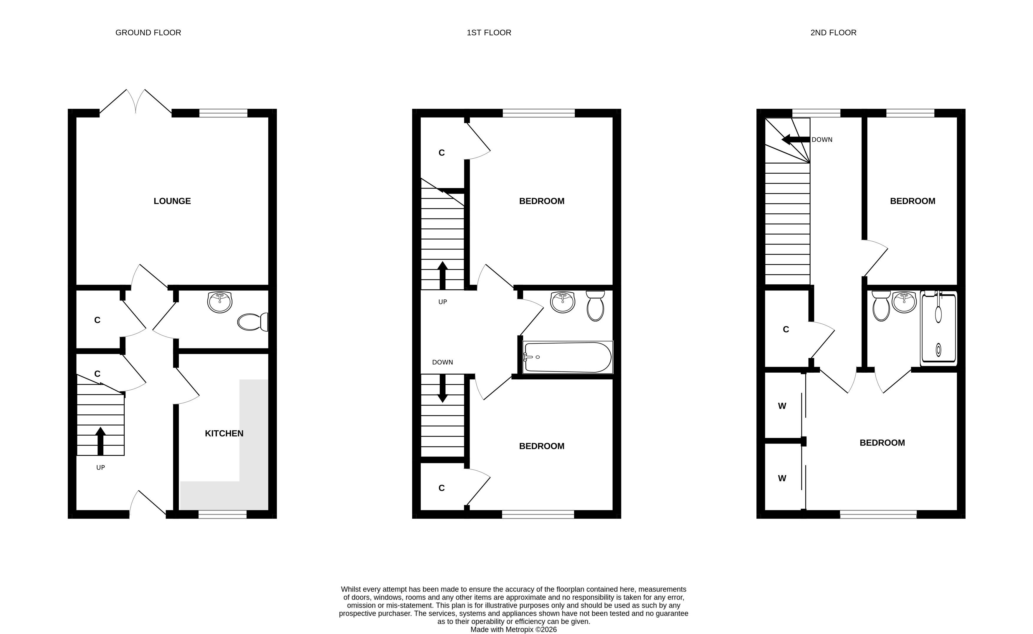
The entrance hallway provides useful storage and leads to a convenient W/C with a modern two piece suite. The attractive lounge enjoys an abundance of natural light and features patio doors opening directly onto the rear garden. The dining kitchen is fitted with quality wall mounted and base units, complete with oven, hob, extractor hood and integrated fridge freezer. The family bathroom is fitted with a three piece suite, and there are four carpeted bedrooms all benefitting from integrated storage. The master bedroom is further enhanced by its own en suite shower room. All floor coverings and blinds are included in the sale together with the Dishwasher and Washing/Dryer machine & Fridge Freezer.
Externally, the property benefits from designated parking for two cars. The front garden is laid to lawn, while the spacious rear garden is fully enclosed, mainly laid to lawn and includes a garden shed.
Viewing is highly recommended to appreciate the quality and presentation of this lovely home.
Rooms
- Lounge: 13' 5" x 12' 5" (4.09m x 3.78m)
- Kitchen: 10' 8" x 6' 6" (3.25m x 1.98m)
- W/C: 5' 9" x 3' 3" (1.75m x 0.99m)
- Family Bathroom: 9' 5" x 5' 6" (2.87m x 1.68m)
- Bedroom 1: 11' 5" x 11' 3" (3.48m x 3.43m)
- En Suite: 6' 2" x 5' 6" (1.88m x 1.68m)
- Bedroom 2: 11' 5" x 10' 8" (3.48m x 3.25m)
- Bedroom 3 : 11' 5" x 9' 8" (3.48m x 2.95m)
- Bedroom 4: 10' 8" x 9' 5" (3.25m x 2.87m)
Key Features
Mid Terraced Town House
Popular Residential Area
Lounge
Kitchen
4 Bedrooms (1 En-suite)
Bathroom & WC
GCH; DG; EPC - C
2 Parking Spaces,
Private Gardens
Council Tax Band D
- Council Tax: Band D
- Freehold




























