3 Bedrooms, Offers Over £115,000
3 Glenogil Terrace, Forfar DD8 1NF
311
Features & Description
Property Description
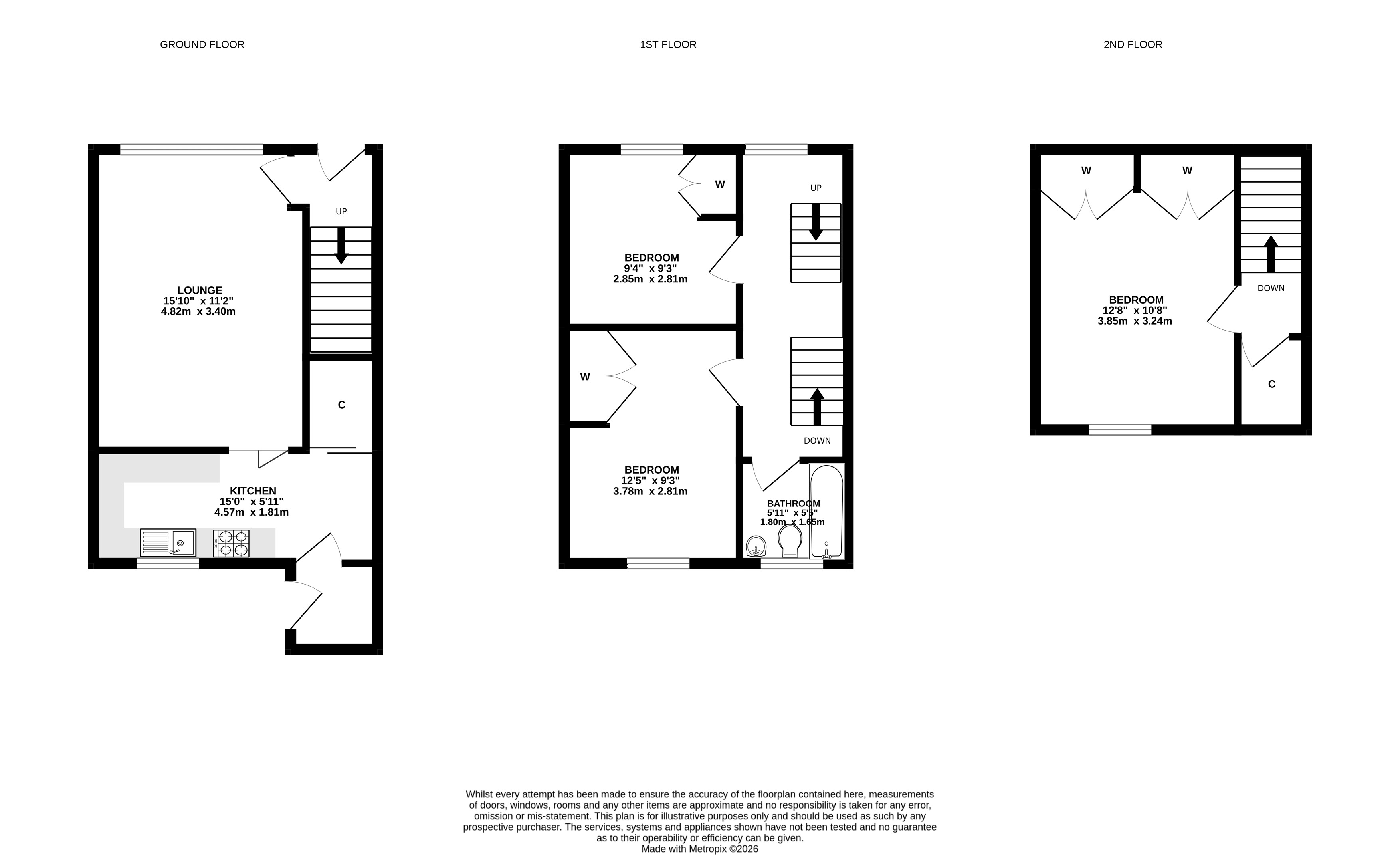
Thorntons are delighted to bring to the market No. 3 Glenogil Terrace, a semi-detached villa situated within a popular residential area of Forfar. The property offers spacious and versatile accommodation over three levels, including an attic conversion. The accommodation comprises on the ground floor: entrance hallway, bright lounge with feature electric fire and a spacious fitted dining kitchen. On the first floor there are two double bedrooms, both benefiting from fitted storage and bathroom with three-piece suite and shower over bath. The second floor attic conversion provides a further double bedroom with fitted storage. The property benefits from gas central heating and double glazing throughout.
Externally, both the front and rear gardens are laid out for ease of maintenance. The front garden features various shrubs, while the rear garden includes a drying green and timber shed.
Read moreKey Features
3 bedroom Extended Semi Detached Villa
Lounge with feature electric fire
Breakfasting Kitchen
Bathroom with 3 piece suite and shower over bath
Utility Area
Attic Conversion
Front & Rear Gardens
Early Viewing is Highly Recommended
Ideal 1st purchase
GCH; DG; EPC - D
- Council Tax: Band A
- Freehold













