OFFERS OVER £70,000
Building Plot, Academy Lane, Arbroath DD11 1AJ
Features & Description
Property Description
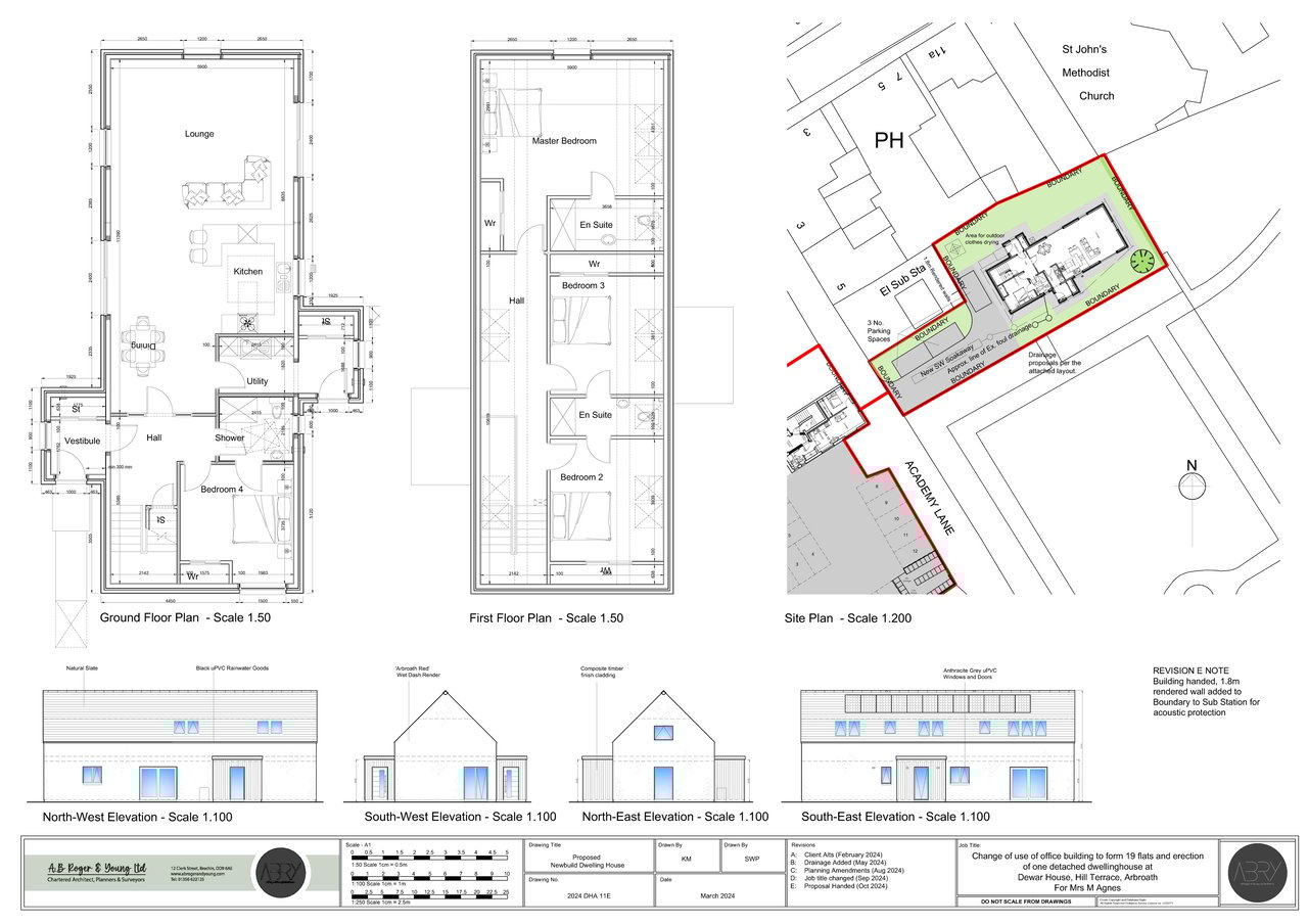
Ideal opportunity to purchase this centrally located plot which has planning in principle for one dwelling house. The plot has an ideal central location within walking distance to all local amenities and will appeal to many buyers .The building plot presents a rare opportunity to create a custom home tailored to your exact specifications. Whether you're looking to build a family home, a retirement retreat, or an investment property, this plot provides the perfect canvas.
*Investment Potential: The plot offers excellent investment potential, with the area experiencing steady growth and high demand for new homes.
*Eco-Friendly Options: Opportunity to incorporate eco-friendly and sustainable building practices, including solar panels, rainwater harvesting systems, and energy-efficient materials.
*Proximity to Nature: Close to parks, and the Beach, providing ample opportunities for outdoor activities and a healthy lifestyle.
*Transport Links: Excellent transport links, including nearby bus stops, train stations, and major roadways, making commuting and travel convenient.
*Local Amenities: Easy access to shopping centers, restaurants, healthcare facilities, and entertainment options, enhancing your quality of life.
*Educational Institutions: Within the catchment area of highly-rated schools and educational institutions, making it an ideal location for families with children
Angus Council Planning Ref - 24/00312/FULL
Images are for illustration purposes only.
Read moreKey Features
Building Plot
Full Planning for 4 Bed Det Property
Ideal Central Location
Investment Opportunity
Close to Local Amenities
- Freehold




















