1 Bedroom, Offers Over £129,995
3/l, 10, Bellefield Avenue, Dundee DD1 4NQ
111
Features & Description
Property Description
HOME REPORT VALUE £135,000
This is a superb top floor apartment situated in a prestigious West End location. Bellefield Avenue is located in the desirable West End of Dundee, one of the city’s most sought-after residential areas. It offers convenient access to Dundee University, Ninewells Hospital, and the city centre. Local amenities include independent cafes, bars and supermarkets along Perth Road. Excellent transport links are available with frequent bus services operating along nearby roads, while Dundee railway station is just a short distance away.
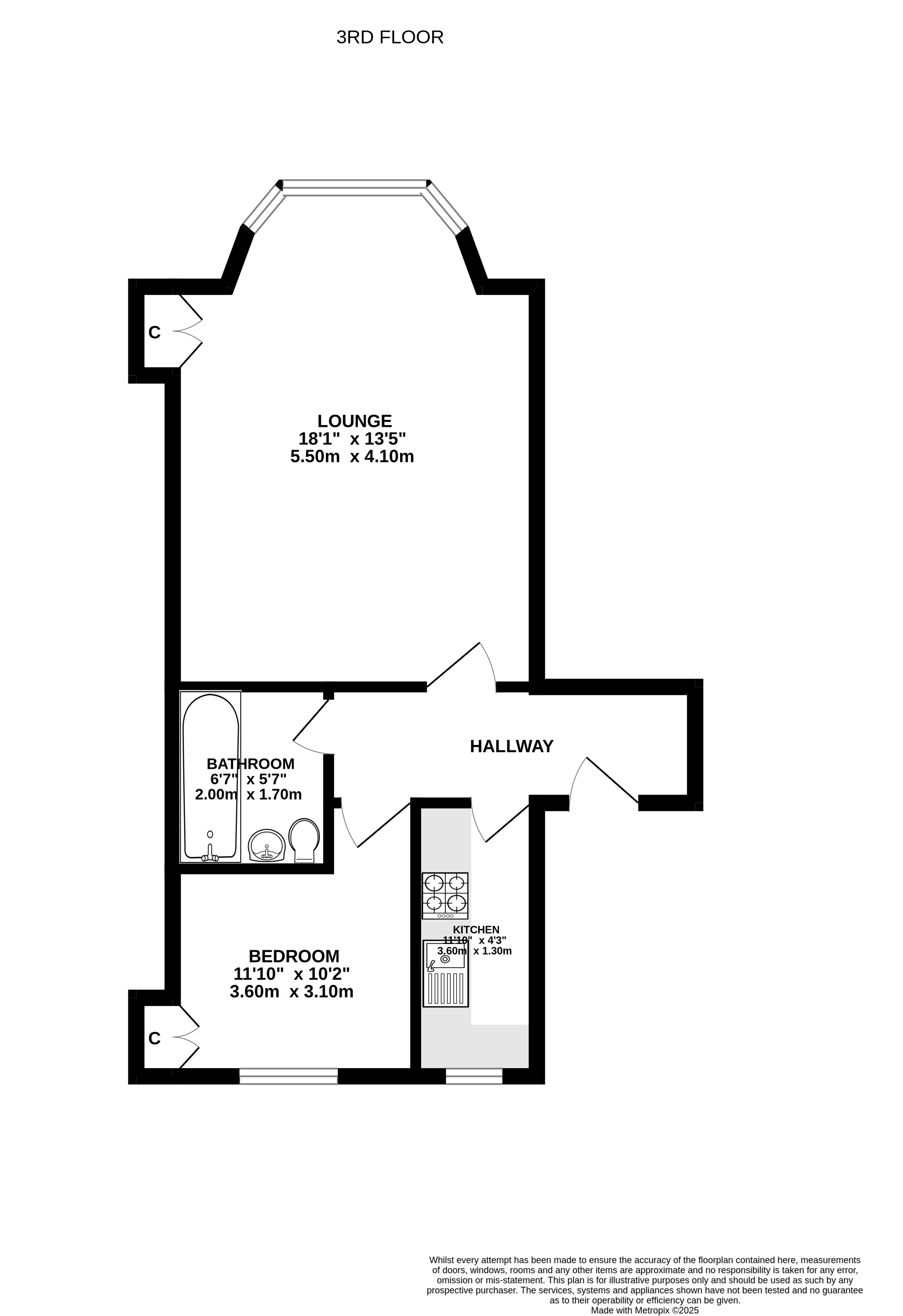
The accommodation comprises hall with hatch giving access to attic space, bright attractive lounge/ dining room with ample space for both occasional furniture and dining table, bay window, ornate cornice and ceiling rose, fitted kitchen with both wall mounted and base units, oven, hob, extractor, space for fridge , freezer, plumbing for washing machine, rear facing window, well appointed double bedroom with shelved recess, and bathroom with shower over bath. The property benefits from gas central heating, double glazing, and a shared garden to the rear. Additional storage in attic, accessed by built-in loft ladder.
Ideal for first-time buyers or as a buy-to-let investment.
Viewing is highly recommended.
Read moreKey Features
Attractive Top Floor Flat
Home Report Value £135,000
West End Location
Close To Dundee University & Ninewells Hospital
Hall, Lounge/Dining Room
Kitchen
Double bedroom
Bathroom
GCH; DG; EPC - C
Communal Garden To Rear
- Council Tax: Band B
- Freehold














