2 Bedrooms, Offers over £240,000
Flat 29, 1, Regents House Smillie Court, Dundee DD3 6TP
221
Features & Description
Property Description
This is an excellent opportunity to purchase a first-floor apartment located within a beautiful Victorian building. The property is located within easy walking distances of Dundee City Centre services, including colleges, universities, shops, restaurants and provides excellent commuter links.
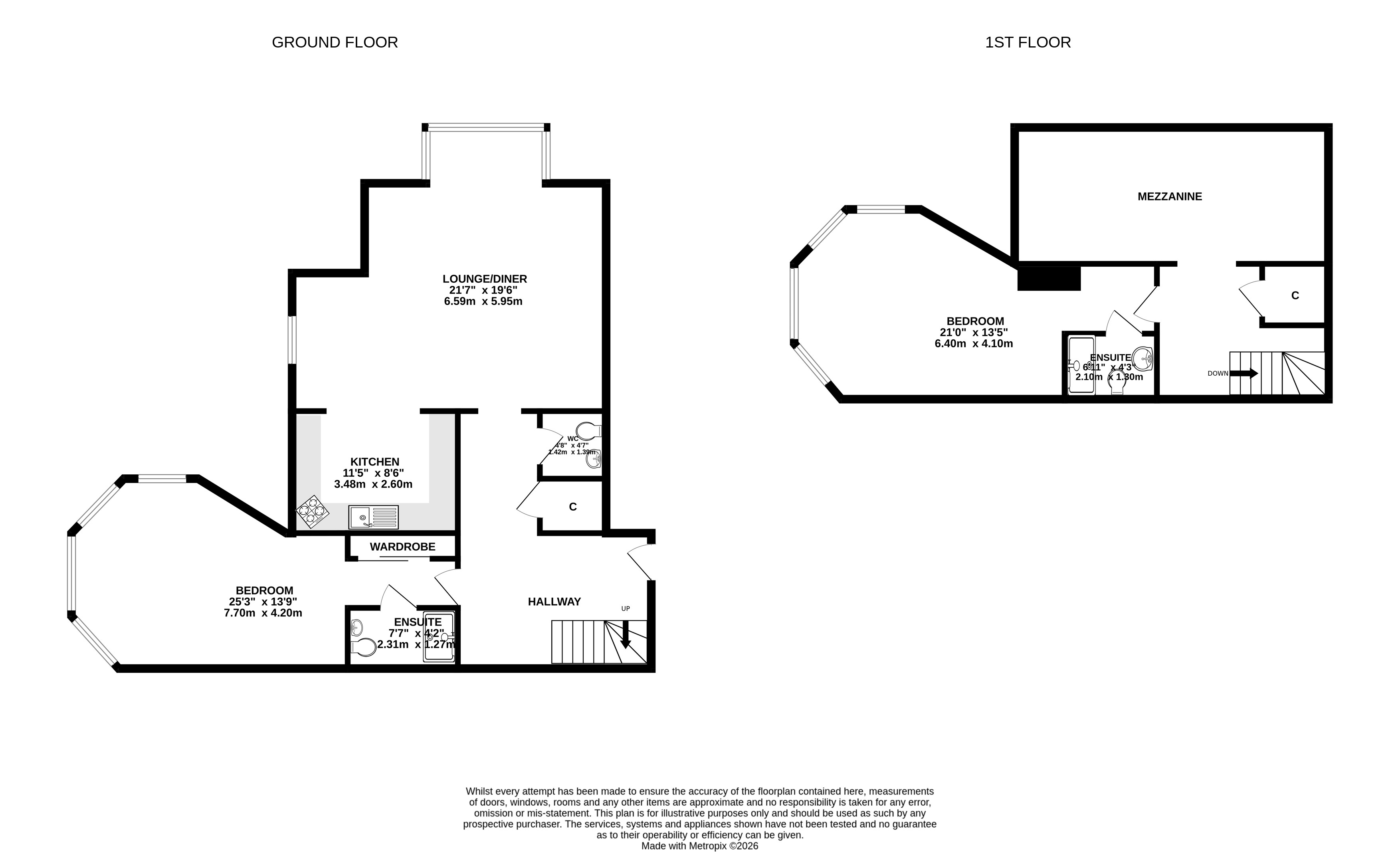
The property offers spacious accommodation which comprises: spacious open plan lounge/ kitchen/ dining room, WC, two double bedrooms both enjoying en-suite facilities and built in storage.
The mezzanine level overlooking the lounge can be adapted to meet the individual purchasers needs including a third bedroom, dining room or study.
Practical attributes include gas fired central heating system, double glazing, lift access, ample storage and a secure entry system. Kitchen appliances include integrated fridge, freezer, gas hob, oven, extractor fan, washing machine and dishwasher.
Externally the property enjoys well maintained communal garden grounds and private parking facilities.
This property will appeal to a number of buyers and early viewing is recommended.
Read moreKey Features
First-floor apartment
Popular Location
Maisonette reception area
Open plan lounge/kitchen and dining area
Second-floor apartment
2 bedrooms both en-suite shower rooms
WC
Secure Entry
Private Parking
GCH; DG; EPC - B
- Council Tax: Band E
- Freehold














