3 Bedrooms, Offers Over £240,000
28 Lochinver Crescent, Dundee DD2 4UA
323
Features & Description
Property Description
This is a fantastic opportunity to purchase a well-presented semi-detached villa situated within a highly sought-after and established residential area. Lochinver Crescent enjoys a convenient setting just a short distance from an excellent range of local amenities including shops, supermarkets, primary and secondary schools, leisure facilities, and Ninewells Teaching Hospital. The property is also ideally positioned for commuting, with regular public transport links nearby and straightforward access to main arterial routes.
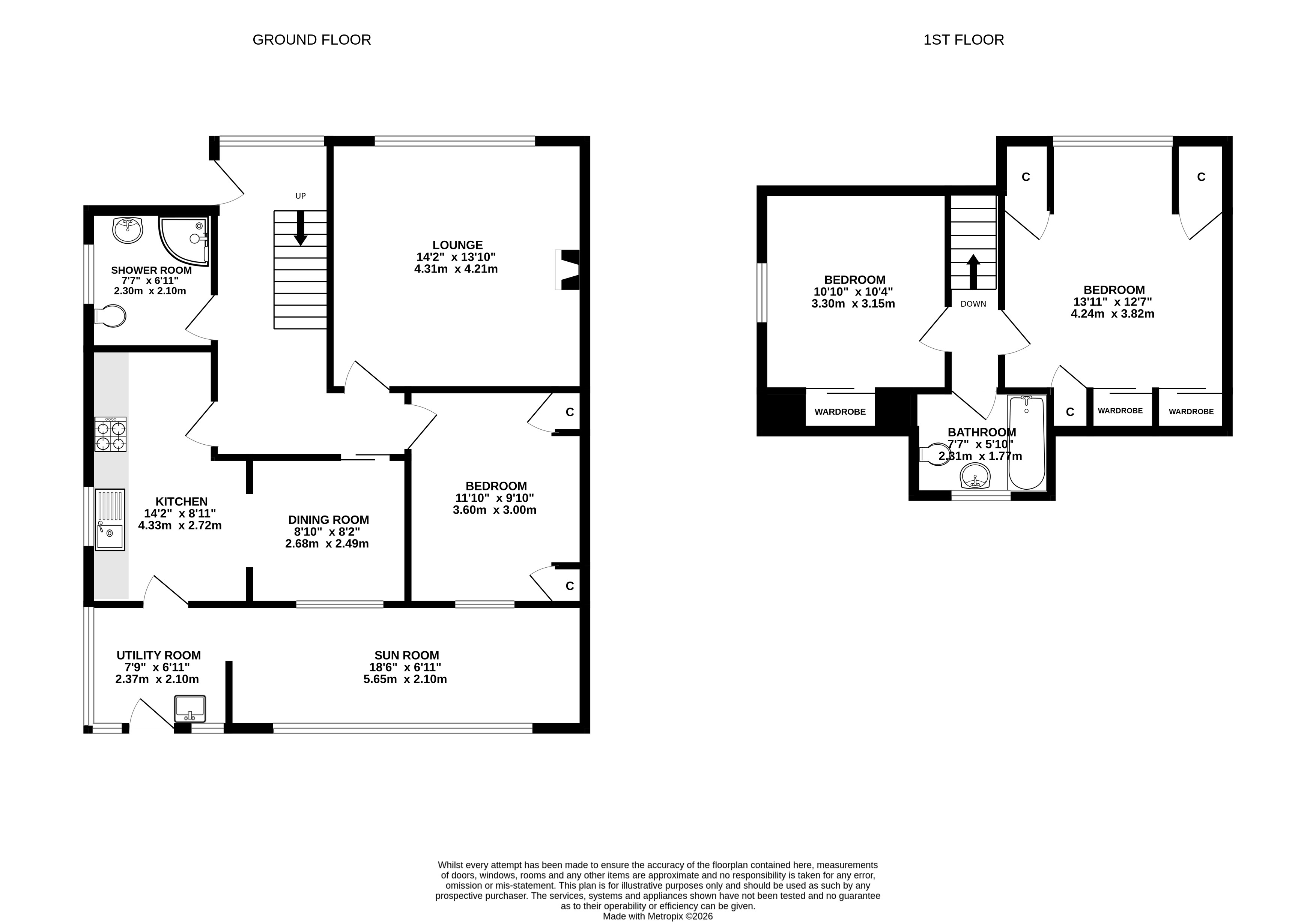
The subject property offers comfortable accommodation which comprises bright and spacious lounge with fireplace, kitchen/dining with a range of fitted units, sunroom with utility area, shower room with three-piece suite, bathroom and three well-proportioned double bedrooms.
Practical attributes include gas fired central heating, double glazing, and ample storage throughout the property.
Externally the property benefits from well-maintained front, rear and south facing side gardens, with garage and driveway.
This property will appeal to several buyers and early viewing is highly recommended.
Proximity to public bus transport for local and outstation travels.
Read moreKey Features
Semi-detached Villa
Popular Location
Spacious Lounge
Kitchen/Dining
Sun Room with utility area
3 Bedrooms
Shower Room
Bathroom
GCH; DG; EPC - C
Garage & Driveway
- Council Tax: Band E
- Freehold

























