4 Bedrooms, Offers Over £235,000
37 Sutherland Crescent, Dundee DD2 2HP
411
Features & Description
Property Description
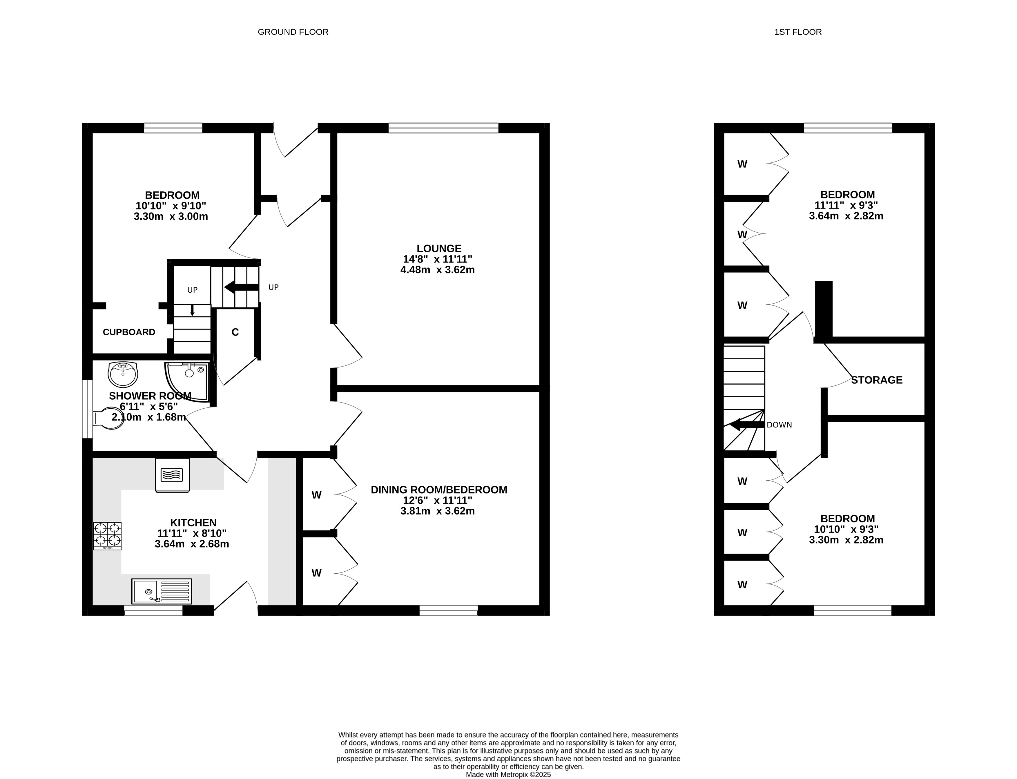
Thorntons are pleased to bring to the market 37 Sutherland Crescent which is a detached four-bedroom villa with generous scope for refurbishment and redesign. The property offers a well-proportioned layout across two levels. On the ground floor you will find a welcoming lounge, a kitchen, two double bedrooms and a shower room, while two further double bedrooms are arranged upstairs along with a large walk-in cupboard which could be converted into a bathroom. Although the house requires upgrading and modernization, its classic proportions and potential make it an ideal canvas for a new owner. Externally, the villa is complemented by both front and rear garden areas, providing private outdoor space ripe for landscaping. A driveway leads to a single garage, offering secure parking and additional storage. The footprint and external features afford opportunities to reimagine the gardens, extend, or refresh the elevations in line with modern tastes.
Sutherland Crescent lies approximately 4 km west of Dundee city centre, affording both suburban calm and relatively easy access to urban amenities. The area falls within the Lochee ward and is part of the Dundee City local authority. It is well served by local shops, schools, and everyday conveniences, with larger retail and leisure offerings in nearby areas. The proximity to Camperdown Country Park, Dundee’s largest public park, is a key asset, offering expansive green space, walking paths, picnic areas and wildlife. Transport links are reasonable: bus routes pass through surrounding roads connecting to the city centre and suburbs.
Rooms
- Lounge: 3.67m x 4.43m (12' 0" x 14' 6")
- Kitchen: 2.54m x 3.45m (8' 4" x 11' 4")
- Bedroom: 3.38m x 4.42m (11' 1" x 14' 6")
- Bedroom: 3.13m x 3.34m (10' 3" x 10' 11")
- Bedroom: 2.91m x 3.34m (9' 7" x 10' 11")
- Bedroom: 2.95m x 3.13m (9' 8" x 10' 3")
- Shower Room: 1.73m x 2.01m (5' 8" x 6' 7")
Key Features
Detached Villa (Betts Leven)
Requires some upgrading
Lounge
Kitchen
Four Bedrooms
Shower Room
Option to add upstairs bathroom
Front and Rear Gardens
Driveway and Garage
DG & GCH. EPC C
- Council Tax: Band E
- Freehold

















