3 Bedrooms, Offers over £155,000
7 Graham Court, Dundee DD4 9DF
311
Features & Description
Property Description
Impressive end terraced villa which is located in a popular residential area to the North of Dundee, convenient for educational amenities, public transport and recreational facilities.
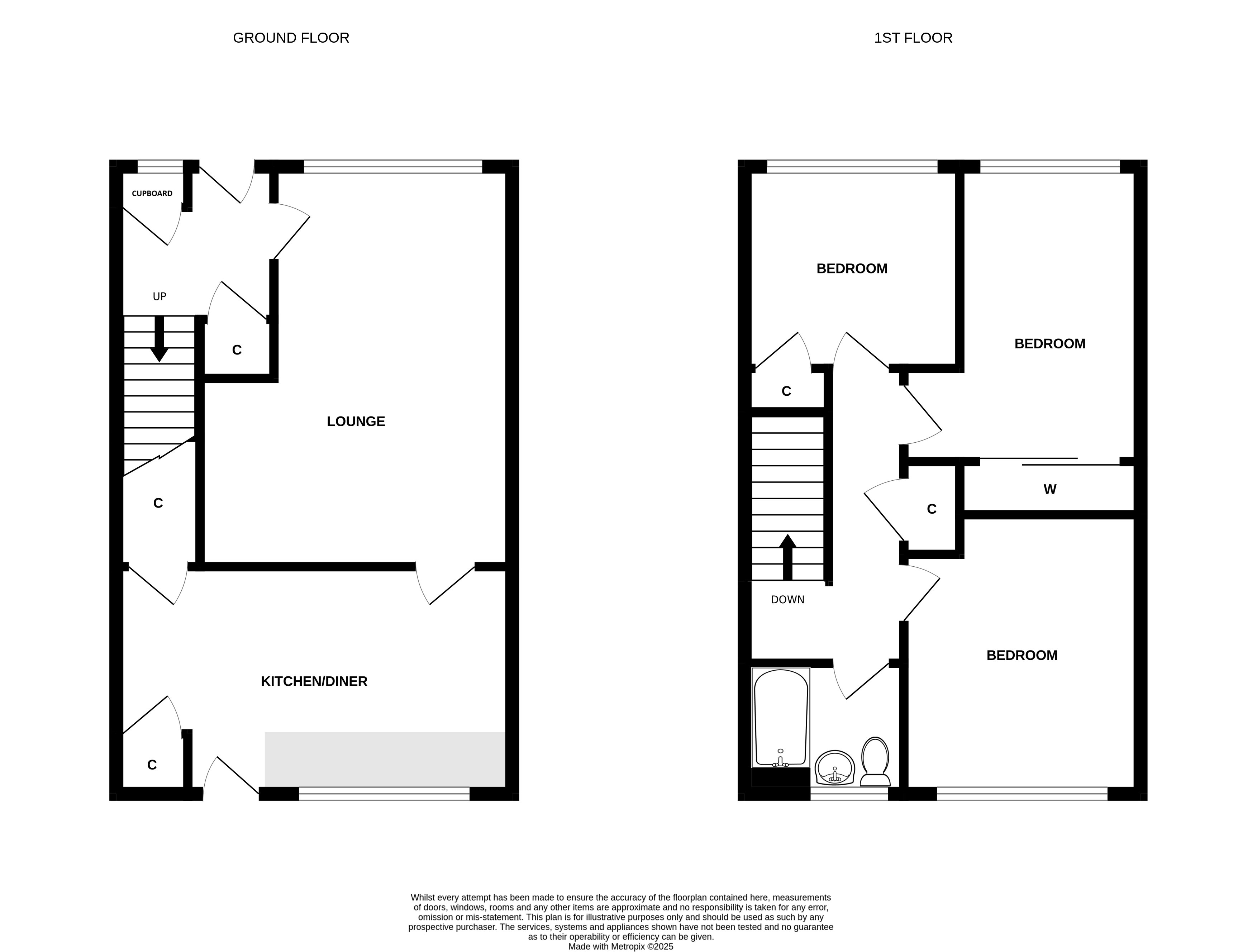
The attractive accommodation comprises: hallway with stairs leading to upper floor, bright spacious lounge/dining room with ample space for both occasional furniture and dining table, dining kitchen with a wide range of fitted units, space for breakfasting table, door leading to the rear garden, upper hall with three well appointed bedrooms and family bathroom. Benefits include double glazing and gas central heating.
There are well maintained well stocked gardens to both the front and rear the latter with timber shed.
Viewing is highly recommended to appreciate this well presented family home.
Read moreKey Features
Spacious End Terraced Villa
Popular Residential Area
Hall, Lounge / Dining Room
Kitchen
Three Bedrooms
Family Bathroom
GCH; DG; EPC - C
Gardens To Front & Rear
Ideal Family Home
Viewing Highly Recommended
- Council Tax: Band C
- Freehold


















