2 Bedrooms, Offers over £230,000
9 Ogilvie Court, Broughty Ferry, Dundee DD5 1LR
221
Features & Description
Property Description
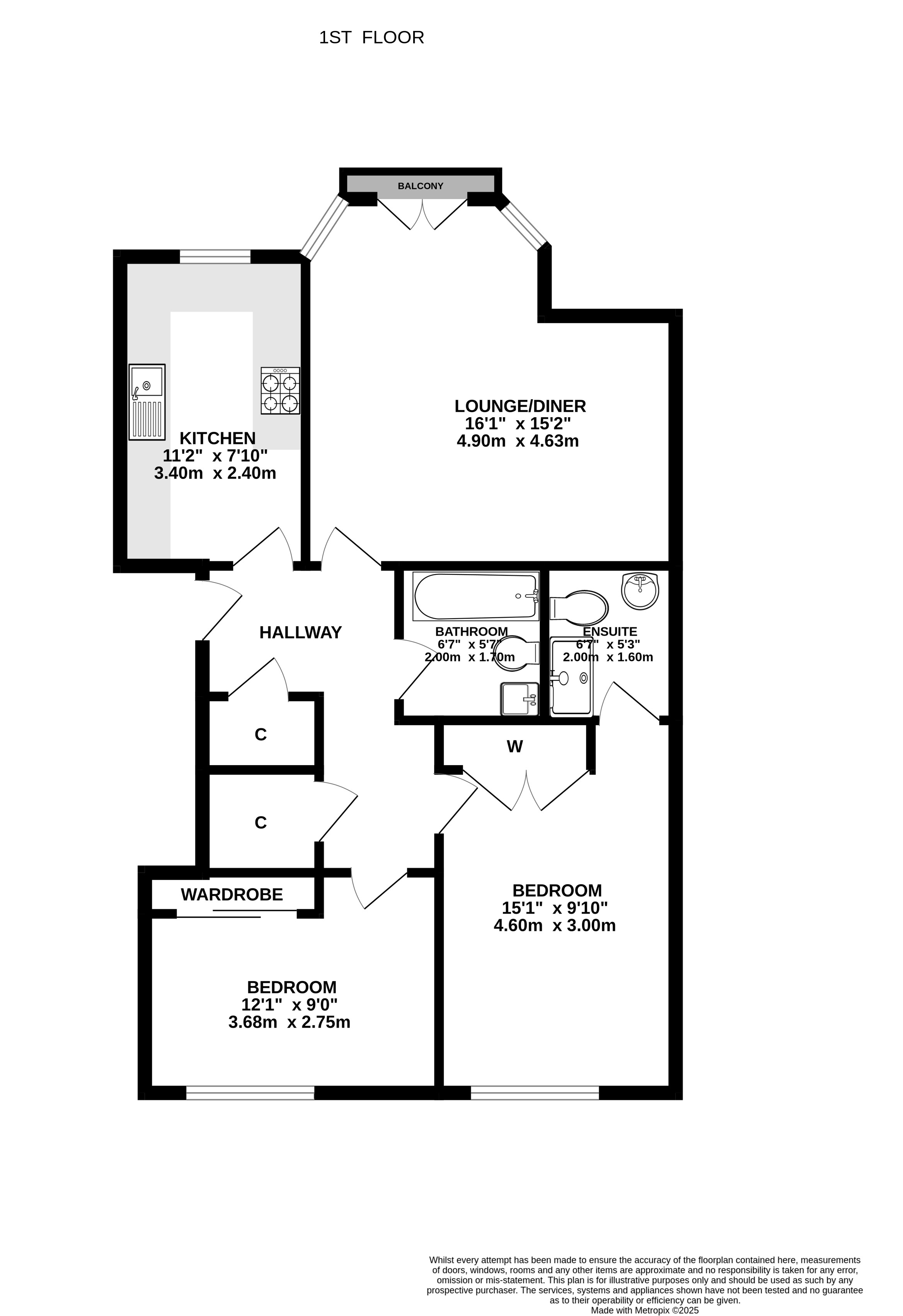
We are delighted to offer to the market this first floor apartment situated in a most sought after area of Broughty Ferry. This is a wonderful location is close to the yacht club with uninterrupted views of the river and beyond. The property enjoys uninterrupted views of the River Tay, estuary and Fife hills and the south facing position ensures ample natural light.
The accommodation comprises hallway with two storage cupboards, well proportioned lounge/ dining room with French doors opening to the magnificent views, fitted kitchen with small breakfast bar at the window, again enjoying the views, master bedroom with en suite shower room, second double bedroom and bathroom, both have fitted wardrobes. Although in need of some modernisation benefits include double glazing and gas central heating. There is a security entry system giving access to the well kept building.
Outside there are attractive communal grounds and there is an garage with storage space and parking in front. A nearby railway crossing over the railway gives access to a very pleasant flat walk along the riverside to Broughty Ferry. This is a wonderful location close to the yacht club with uninterrupted views of the river and beyond.
Viewing is highly recommended.
Travelling east along Dundee Road, turn right into Ogilvie Road and left into Ogilvie Court.
Read moreKey Features
First Floor Apartment
Magnificent River Views
Lounge /Dining Room
Fitted Kitchen and Appliances
Family Bathroom
2 Bedrooms,1 En Suite
Secure Entry
Integral Garage
Viewing Highly Recommended
GCH; DG; EPC - C
- Council Tax: Band E
- Freehold















