2 Bedrooms, Offers Over £130,000
Glen Kerse, 2 Castle Street, Friockheim, Arbroath DD11 4TE
211
Features & Description
Property Description
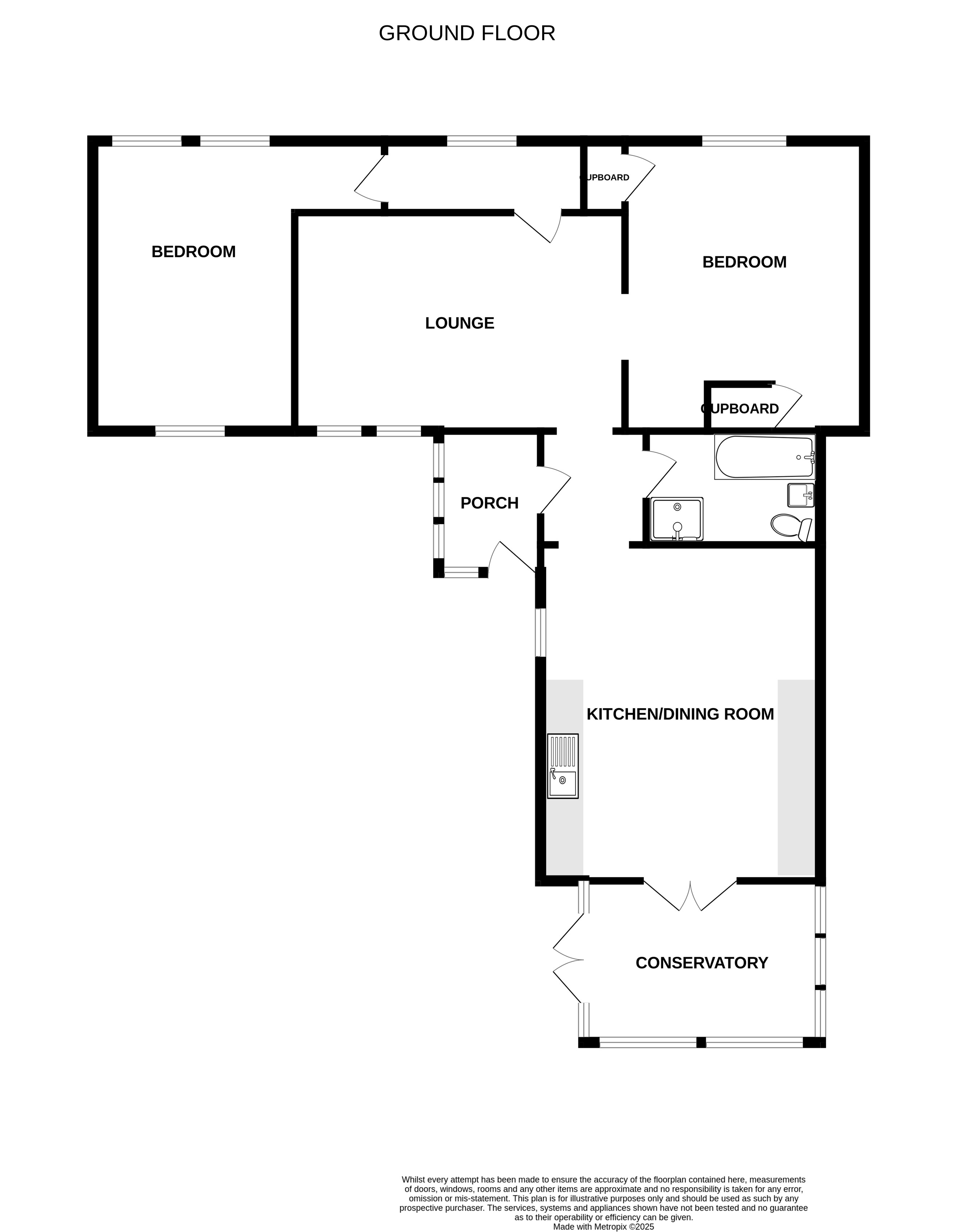
This generously proportioned semi-detached bungalow offers comfortable single-level living in a quiet village setting. The property features two well-sized double bedrooms, a bright lounge, a spacious kitchen with dining area, and a conservatory that enjoys a sunny aspect and garden views. The layout is practical and inviting, making it ideal for downsizers, couples, or small families.
The entrance porch leads into a central hallway. The lounge sits at the heart of the home and benefits from excellent natural light thanks to its dual-aspect position. The kitchen and dining area are well arranged for everyday living and entertaining, with direct access to the conservatory—creating a seamless indoor-outdoor flow.
Both bedrooms are generously sized, with the second bedroom including a built-in storage cupboard. The bathroom is fitted with a bath, WC, wash hand basin, and a separate shower enclosure, offering both convenience and functionality. Additional storage is provided by a hallway cupboard and the porch area.
The property benefits from double glazing and electric heating, with all blinds, curtains, and floor coverings included in the sale price.
Externally, there is a driveway leading to a detached garage, and the generously sized rear garden features two sheds and a lawn bordered by trees and plants. Friockheim is a well-served Angus village, offering local amenities including shops, primary schooling, and community facilities.
Rooms
- Lounge: 13' 0" x 12' 11" (3.96m x 3.94m)
- Kitchen/Dining: 19' 9" x 13' 9" (6.02m x 4.19m)
- Bathroom: 8' 8" x 8' 1" (2.64m x 2.46m)
- Bedroom: 17' 6" x 12' 6" (5.33m x 3.81m)
- Bedroom: 16' 1" x 9' 6" (4.90m x 2.90m)
- Conservatory: 9' 6" x 8' 9" (2.90m x 2.67m)
Key Features
Semi - Detached Bungalow
Popular Residential Area
Spacious Accommodation
Kitchen/Dining
Lounge & Conservatory
2 Bedrooms
Bathroom
Electric Heating; DG; EPC - G
Drive, Garage, Gardens
Council Tax Band C
- Council Tax: Band C
- Freehold





































