3 Bedrooms, Offers Over £130,000
500 Charleston Drive, Dundee DD2 4AA
311
Features & Description
Property Description
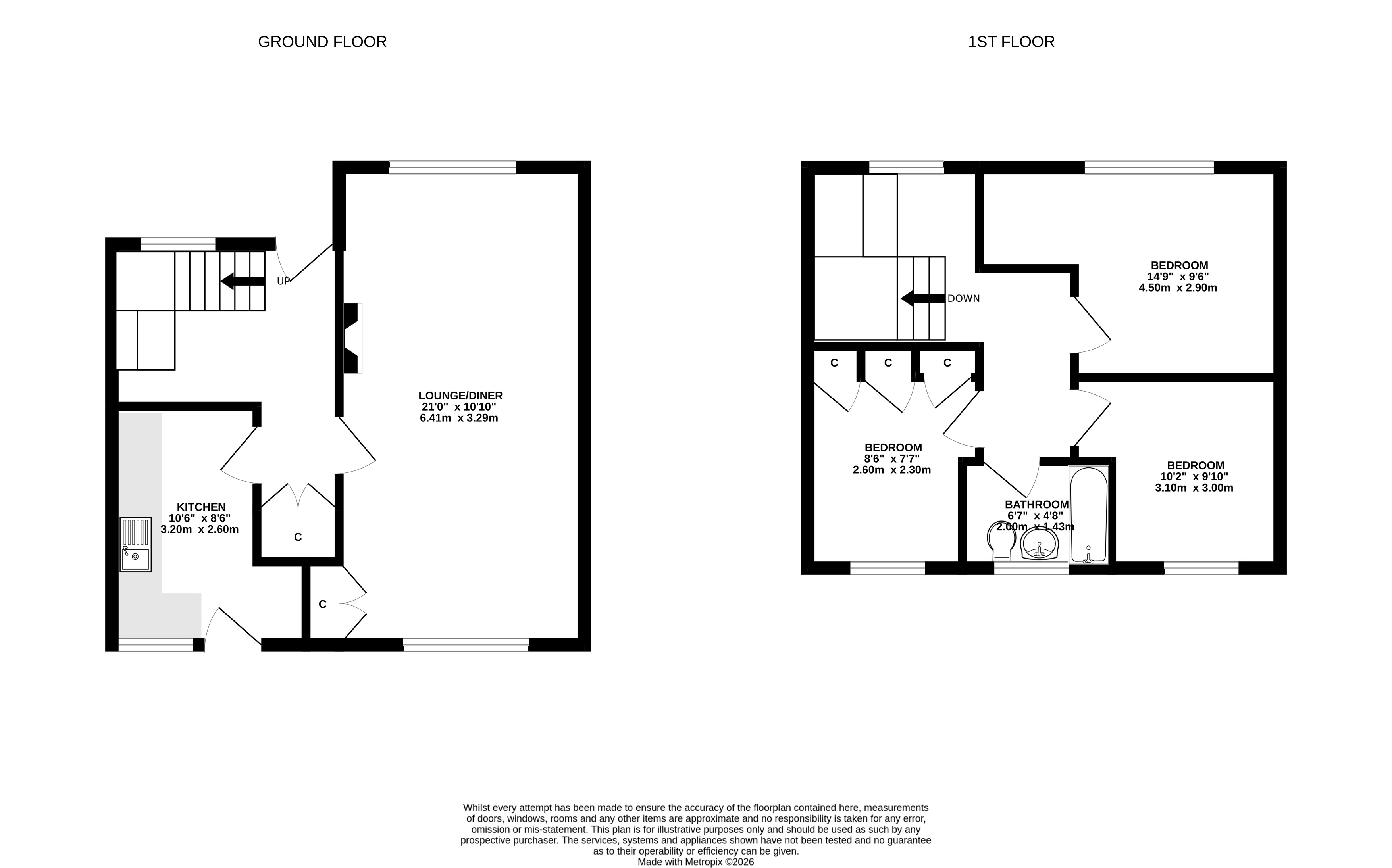
Enjoying an excellent position within easy reach of Ninewells hospital this three bedroom terrace villa is well placed for accessing local shopping amenities, schools and a frequent bus link can be found near by.
The property which benefits from double glazing and electric heating offers accommodation over two levels, comprising hallway with stairs leading to upper floor, storage cupboard, spacious bright lounge/dining room with front and rear facing windows, ample space for occasional furniture and dining suite, fitted kitchen with door leading to garden, upper hall with window on half way landing, hatch leading to attic space, three bedrooms, one with built in wardrobes and a family bathroom with shower over bath.
Externally the property offers low maintenance front and rear gardens
Viewing is highly recommended.
Read moreKey Features
Attractive Terraced Villa
Popular Residential Area
Convenient For Local Amenities
Hall. Lounge/Dining Room, Kitchen
3 Bedrooms & Bathroom
D/G & Electric Heating
Gardens Front & Rear
Ideal Family Home
EPC E
- Council Tax: Band B
- Freehold














